查看完整案例

收藏

下载
项目名称:北京香厂新市区文化街区建筑
位置:北京
设计公司:超城建筑
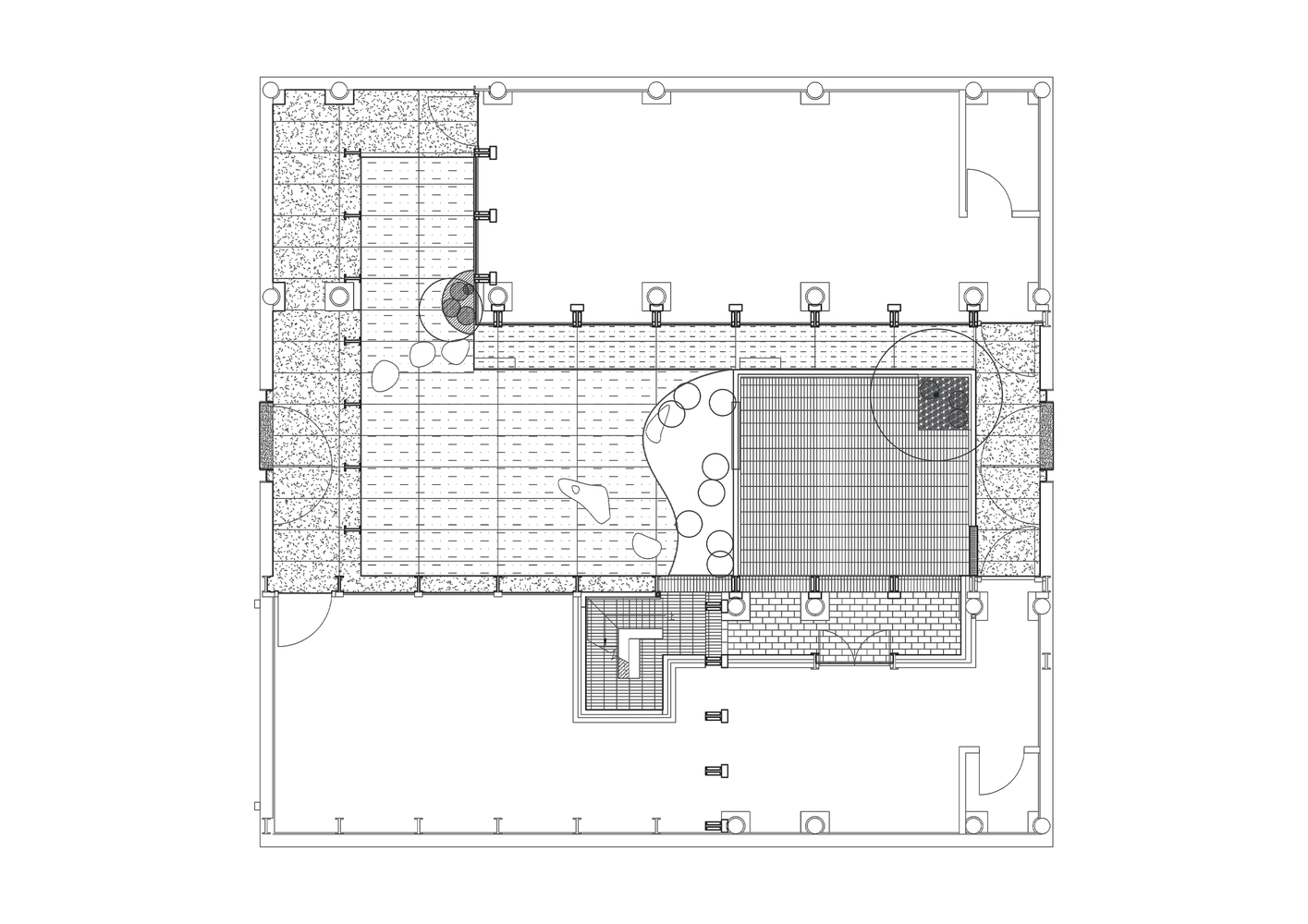
本项目位于北京香厂新市区历史文化街区之中,原有建筑为两层平顶现代砖混结构建筑。原有建筑属于危房,因此将其完全拆除后进行此次更新设计。该建筑南北两侧为北京传统四合院式建筑,西侧则是刚刚经过更新的北京民国时期的里弄式建筑“华康里”,东侧是一个小胡同,而胡同的东侧是天桥集市。由于项目地点处于古都风貌保护区之中,因此部分建筑采用传统北京民居的木结构古建方式。而连廊与可上人屋面的部分则采用现代平屋顶的形式。平屋面的现代形式主要分布在东西两侧,以连接“华康里”和天桥集市。而传统坡屋面则分布在南北两则与紧邻的传统四合院式建筑连为一体。在这里两个传统被共同呈现:香厂新市区的现代化建筑与天桥的传统建筑。整个场地是一个接近15米乘15米的正方形地块。北京传统的四合院式建筑的出入口通常分布在南北向,而这个项目由于南北两侧都是与邻居的共用墙,因此出入口只能分布在东西向。
这也刚好对应了其未来作为的胡同博物馆的使用功能。在南北向上,居主体位置的是古建做法的北房,南房则是一座尺度稍小的古建。传统的南北轴线得以体现,一个稳定而静止的空间体现了超越时间的永恒性。在东西向上,主要的出入口被设置在东侧,西侧的出入口因外部条件所限暂时未被启用。在东西向上分布有一个由砖建成的院落和一个以水池为主体的花园。形成了前院后园的格局。在这里,南北向静止的轴线被东西向流动的时间线所代替。一组连续的钢结构与落地玻璃的透明空间随着东西向的时间线而缓缓展开。砖院与水园彼此交错,公共空间的功能在时间中呈现,时间使空间具体化,并变得生机勃勃。对于到访的观者,也许空间的质量与生命无关,但是时间的质量却与其息息相关。这里既不是一个传统建筑的静态实存也不是一个现代的流动空间,而是要创造出一个传统与现代、永恒与流变的富有深意的辩证性对话。
在南北向上,这个辩证性体现在传统古建构造与现代建筑形式逻辑的彼此间离。在建构上形成当代建筑的形式逻辑与中国古典建筑柱式的若近若离的关系。木材的使用来自传统柱式,钢材的使用则受到模数的控制,砖在二者之间充当了充满哲学意味的辩证性对话的媒介。在接近木材时,砖以传统砌筑的方式建造。而在接近钢材时,砖则转变为现代幕墙的方式建造,两种砖的建筑学在建造中彼此相遇,并尽力去除对方的主导性。古典与现代彼此互为环境,并在时间线中“去构形”。在东西向上,钢柱所定义的界面空间,从东向西,由透明玻璃砖,磨砂玻璃砖,落地玻璃与空无,四种元素组成。这四种元素与钢,木构与灰砖共同建构了开放与封闭、流动与静止的时空关系。它们在空间中相遇,并在实与虚中“去构形”。
居于正位的居室与恬静的庭园风景是对中国古典园林和生活方式的致敬。一方庭与半分池共同构成了一分园,因面积刚好大约66平米,是一亩地的一分,是以得名一分园。一分园的意义也在于庭园因与建筑的关系被“分”为虚实相异又空间互补的两个部分,东侧在南北两座传统的木结构建筑之间是灰砖铺就的庭院(一方庭),较为封闭和方正,视为实的部分,但由视觉上虚的玻璃砖围合;而西侧被现代平顶建筑和钢结构走廊所包围的水池(半分池),较为开放和自由,形成虚的部分,但由实在的钢柱廊所围合。一方庭与半分池与建筑的出入口、连廊和汀步形成了不同的路径,丰富了作为胡同博物馆的小中见大的多种体验,同时从建筑内任何一个角度望向中心的一分园都是完全不同的景色:玻璃砖墙角一枝梅花,窗外地上随风漂浮的竹影,水面上木结构静静的倒影,屋角露出的枫叶等等。
北京香厂新市区文化街区建筑外部实景图
北京香厂新市区文化街区建筑外部实景图
北京香厂新市区文化街区建筑外部实景图
北京香厂新市区文化街区建筑外部实景图
北京香厂新市区文化街区建筑外部实景图
北京香厂新市区文化街区建筑外部实景图
北京香厂新市区文化街区建筑外部实景图
北京香厂新市区文化街区建筑外部实景图
北京香厂新市区文化街区建筑内部实景图
北京香厂新市区文化街区建筑内部实景图
北京香厂新市区文化街区建筑内部实景图
北京香厂新市区文化街区建筑内部实景图
北京香厂新市区文化街区建筑平面图
北京香厂新市区文化街区建筑平面图
北京香厂新市区文化街区建筑平面图
北京香厂新市区文化街区建筑剖面图
北京香厂新市区文化街区建筑剖面图
北京香厂新市区文化街区建筑剖面图
北京香厂新市区文化街区建筑立面图
北京香厂新市区文化街区建筑立面图
客服
消息
收藏
下载
最近























