查看完整案例

收藏

下载
光线创造了一个地方的氛围和感觉,以及一种结构的表达
——勒·柯布西耶
设计师对办公与生活的权衡,不仅仅是空间形式上的交叠。情绪、自然、温度,怀揣着对每件事物的好奇与热忱,从中汲取灵感与光,让变化持续发生。
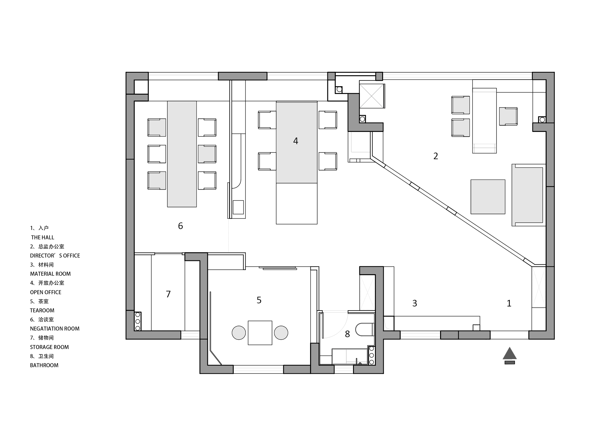
观衍上设计为团队重新定义办公空间,基于公司的
logo
造型引申布局,纵横线条尺度,搭建立体的内建筑框架,将新的功能与精神置入。于此,探寻设计与办公的新起点。
入门沿着斜切的墙体延伸,牵引着建筑构思的趣味。墙面经镂空处理,光自由穿行于三维空间,通透着每一处过道与转角。既独立内外之别,又彼此调动连接,随节奏张弛起伏。
总监办公室布局简练素雅,留白一室静谧。以光为媒介,引入深浅与明暗的层次质感,润物无声中丰盈纯粹意境。
办公桌与沙发区在黑白的雅致调和中,铺展艺术与理性的融洽。茶几由玻璃搭建一处展陈台,置一建筑模型,暖光勾勒出内里的层次格局。视线游走其间,探得一番妙趣。
光识语境
跟随路径向内延伸,以开放式视角打开空间维度。公共办公区消除传统工作室的形式主义,通过线形的设计语言,展现连贯流动的空间布局。搭配精简的硬件、灵活的功能,结构层次清晰且分明,塑造动静共生的空间形态。
自然光引入物体的表面肌理,通过温度的柔和抚触,释放柔和光泽。黑白组合的结构体仿佛拥有了生机,空间情绪在这里缓慢滋养、生长,轻逸平和。
设计将休闲置入工作,探索更生活化的办公体验。线条与体块经解构处理,使每个区块毗邻却不分离。功能组合的自由度,让这里成为办公与生活的交汇点,凝聚更真实的生活理念与独创精神。
设计希望给洽谈区营造一个轻松惬意的交流氛围,因此摒弃传统会议布局,权衡适宜的尺度,选取更低矮休闲的桌椅,塑造茶室的空间形态。
客户品茗洽谈,仿佛与好友的一场小聚,松弛自如,直抵情绪共鸣。
空间以色彩调度静谧安逸的感官,铺设低调质感。格栅移门开合间,切换半开放半独立的状态,塑造另一番自由灵动。
光影脉络
茶室区别于公共区的风格形制,人文雅韵于此交汇,形神之意愈发亘古深远。光影肌理铺展,情绪交错递进,美学意象叠加,赋予温润独特的人文质感,空间精神与生命力无尽蔓延。
此处作为更私人的交流区域,待客访友、聊以闲趣,如与世独立的天地,奚山作伴,云月为俦,徜徉于内心闲逸。生活之美,于此丛生。
入夜,变化正在发生。随着空间氛围的切换,光拥有了更具象的表达。突破物理属性,幻化空间形意,述说层次语境,滋生丰富的情绪感知。虚实、穿透,纵横交错间蕴藏着无限的精神力量,开启光的序幕。
设计灵感,源于生活。办公空间亦是设计与生活的转译,极简或丰盈、当代或人文,皆是对生活的深刻洞察。突破想象力的界限,凝为超然的场域体验。
客服
消息
收藏
下载
最近






































