查看完整案例

收藏

下载
设计单位
WBS里外工作室
项目地点
北京朝阳
建成时间
2023年3月
建筑面积
190平方米
现状与挑战
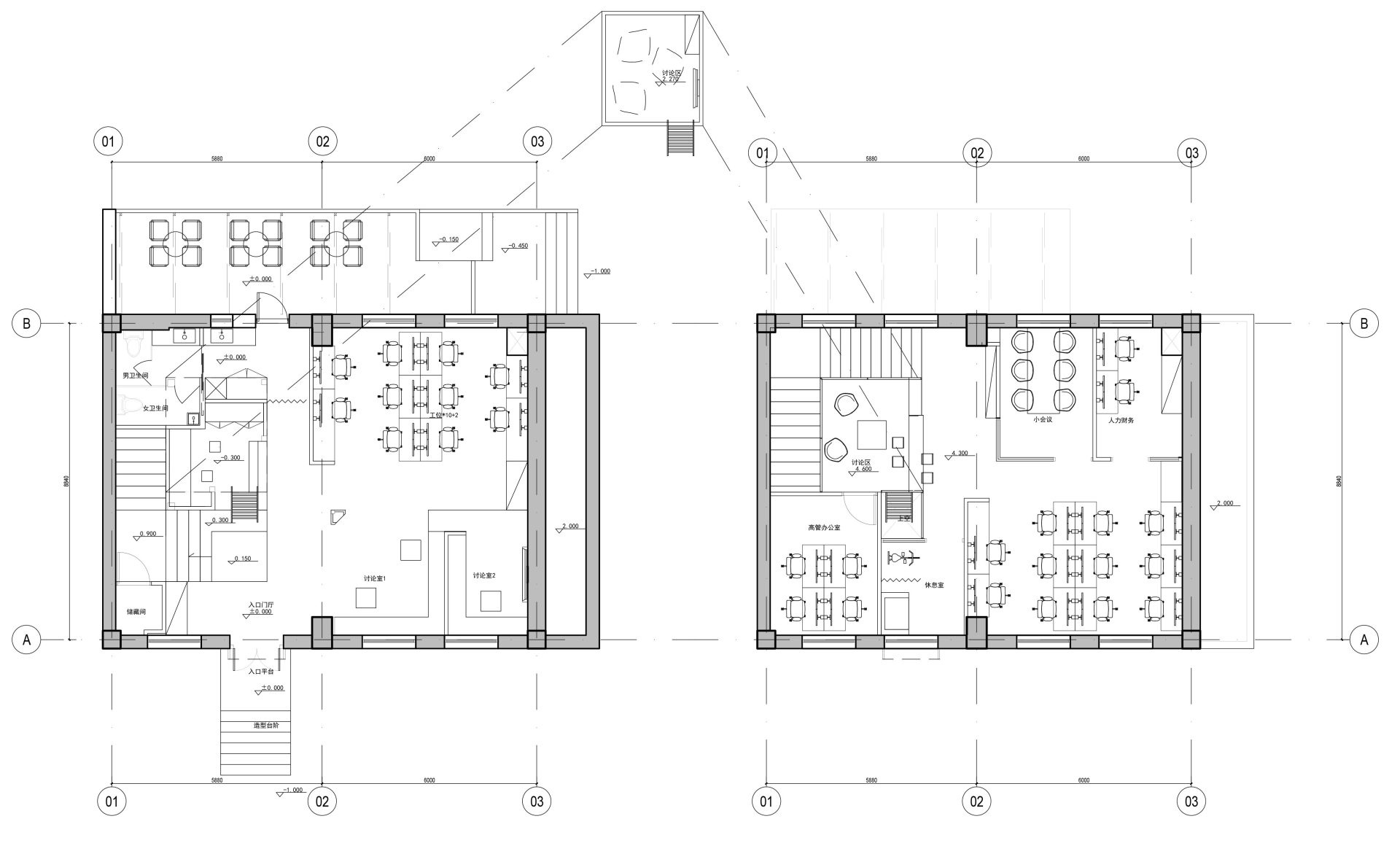
场地现状是一个190平方米的两层小楼,每层层高4.2米,两层楼之间通过一个楼梯连通。业主是一家广告公司,有着较大的会议讨论空间的诉求。我们通过功能强排,在满足基本工位数的前提下,会议空间数量无法满足任务书要求,而且无法做出舒适的公共空间。
设计策略
在空中找机会
由于场地层高较高,且地面可以局部下挖,我们将设计的焦点放在了如何充分利用层高优势,通过设置夹层的方式找到更多的面积,同时增强上下楼在空间和行为上的关联性。
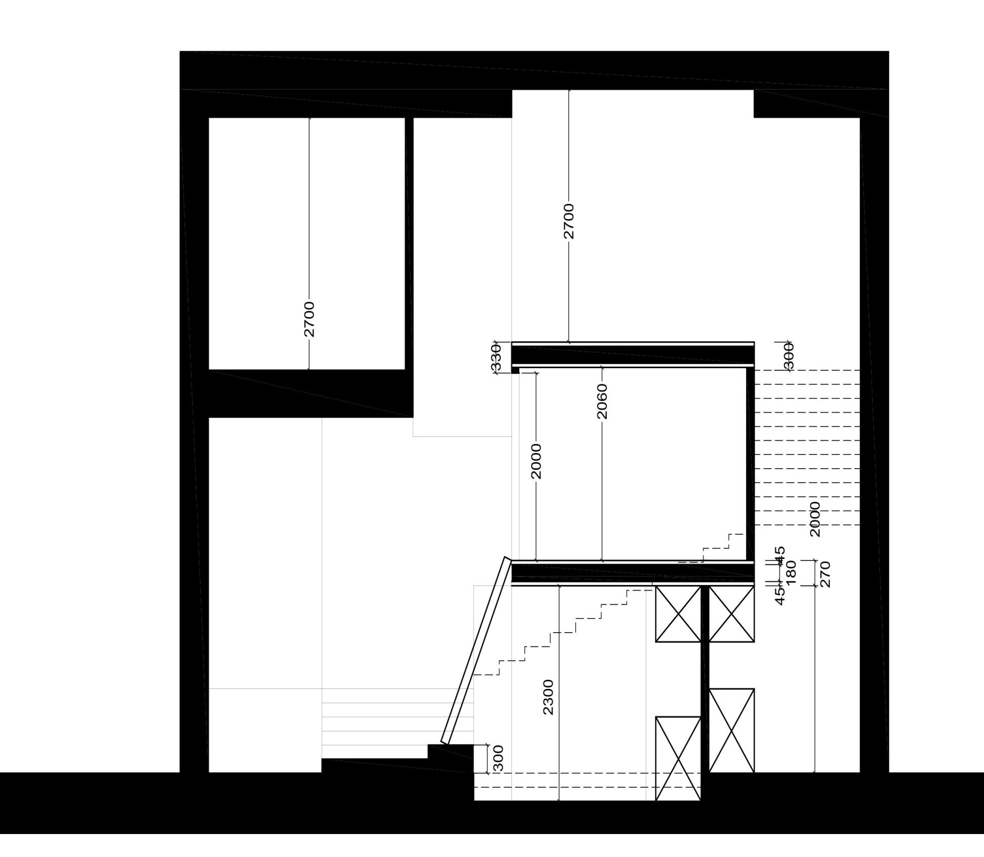
围绕楼梯,我们将楼板开洞并置入了一个悬浮的盒子,盒子下方地面下挖300毫米,形成放松的下沉式茶水间。盒子顶部高出二层地面300毫米,我们在二层创造出开阳的高台式讨论空间。盒子内部净高通过顶部和地面竖向的尺寸退让,创造出了静谧且有私密性的空中讨论间。
悬浮盒子设计示意图
悬浮盒子改造前后对比图
楼梯改造前后对比图
连接再连接
空间层面:
本项目的主旨,就是通过公共空间将有形和无形的能量连接在一起。悬浮盒子的置入,将区隔上下层的楼板打开,楼板和盒子之间设置退让关系,形成局部挑空,视觉上可以看到悬浮盒子“顽皮”地飘在空中而不是贴在楼板上,同时挑空也让上下层空间具有了流动性。
悬浮盒子与一层通过爬梯连接,与楼梯交接处我们设置了门洞,保证了一层二层于盒子的可达性,同时挑空处的二层墙面设置了轮轴装置,可作为两层之间物品传送系统。
悬浮盒子与一层通过爬梯连接
与楼梯交接处设置了门洞
公共空间分为开放、半围合、私密这三种,它们满足开放讨论,运动休闲,独处休憩和内部会议的功能诉求。
公共空间示意图
满足讨论、运动休闲、独处休憩和内部会议的功能
我们在上下层分别设置了专属的公共空间,供部门内的沟通使用。而悬浮盒子的存在,则是打破部门的界限,让人们往中间走并聚到一起形成交流。同时悬浮盒子的进入方式分为走入和爬入两种,在保证实用性的同时也为办公体验提供了趣味性。贯穿两层楼的轮轴传送系统则是通过“传送”这个动作,进一步增加了上下层员工的互动机会。
空间层面连接示意图
悬浮盒子楼梯和内部
二层空间
设计语言
整体设计语言以体块切割堆叠为主,简洁的搭积木体量形式形成了活跃而不失逻辑的空间语汇。材质是木饰面,水泥漆和白色乳胶漆,朴素干净。在局部设计上,我们使用可分可合的单元式金属A柱和多层板展示系统,为业主自主调整企业文化展示形式创造了便利性。
空间分隔
平面图
立面图
剖面图
完整项目信息
项目名称:WOW广告公司办公空间室内设计
项目类型:室内/改造
项目地点:北京市朝阳区恒通商务园B32
设计单位:WBS里外工作室
主创建筑师:张哲
设计团队完整名单:杜月、张雯
业主:北京吾傲广告有限公司
建成状态:建成
建成时间:2023年3月
建筑面积:190平方米
摄影师:UKstudio
客服
消息
收藏
下载
最近






























