查看完整案例


收藏

下载
简约
项目名称:铜川会所
项目风格:现代轻奢
项目面积:200㎡
主案设计:武登高
深化设计:方琳
本案面积 200㎡,设计师弱化会所的商务属性,融入家居理念,更能使人感到“回家”的感受,将私宅的布局搭配思路与工装相互融合,将每个角落全部利用起来,贴合业主需求打造多功能区,发挥空间价值。注重体现会所的舒适、雅致、质感、沉稳。
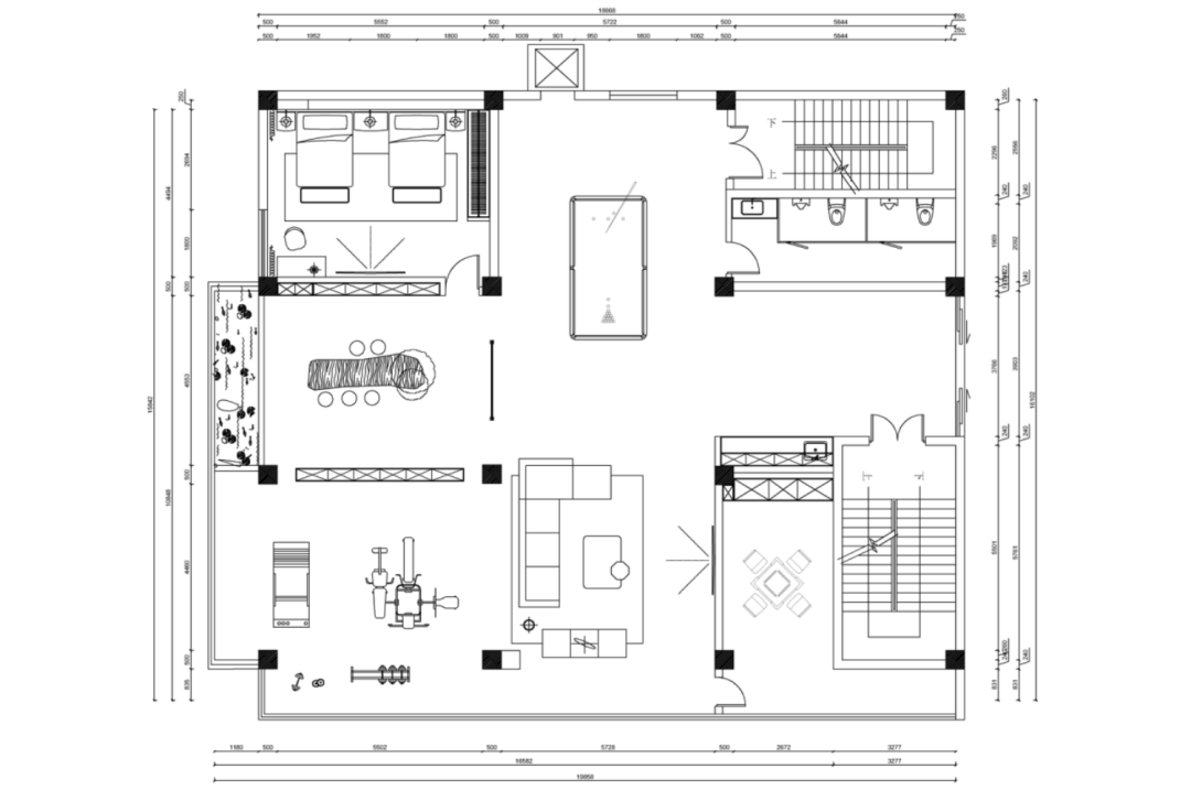
空间平面图
易高国际设计作品
一层平面设计图
▲门厅
▲门厅
弱化会所的商务属性,让客户在这里放松身心。入户色调统一,利用灯光营造氛围。利用大理石材质彰显空间质感,提升空间格调。门厅没有复杂的装饰与布局,给人开阔大气的感觉。
▲会客区
▲会客区
宾至如归,会客厅布局与家中客厅相似。柔和的灯光、素雅的色调营造与自然相符合的空间调性。
▲品茗区
简洁的线条与柔和的木质材料相互结合,空间温馨不失时尚质感,墙面壁龛巧妙地摆放产品,更好地展示。绿植摆件为整体增添了生机与活力,展现了空间独特魅力。
▲健身区
▲台球区
▲台球区
▲棋牌室
会所功能区规划是重中之重,健身区、台球区、棋牌区集合了担任、多人娱乐。空间相对独立保证了会所的社交属性与私密性。
▲卧室
卧室短暂休息,双床摆放避免了人与人之间尴尬接触,全景落地的采光窗为空间添一抹自然。空间静谧而舒适,适宜的灯光给予每个人生活的拥抱。
关于设计师
武登高
中国室内注册设计师
注册号:ZB20803174
毕业院校:西安美术学院
设计理念:用艺术的眼光雕琢生活
设计风格:中式 简约 欧式极简
从业时间:18 年
易高国际创始人、设计总监
2017 年瑞典色彩学院 色彩专业结业
2004 年--2010 年北京元洲装饰首席设计师
2011 年--2013 年陕西九朝装饰首席设计师
2013 年至 2016 年北京峰上大宅装饰专家设计师
2009 美化家居设计大赛三等奖
2011 获陕西省优秀设计称号
2012 筑巢杯设计大赛优秀设计奖
2013 住宅装饰行业优秀设计师
2014 住宅装饰行业优秀设计师
2015 第三届【锋尚·京瓷杯】新中式设计大赛最佳功能布局奖
2016 第三届中国建筑装饰设计艺术作品展获铜奖
2017 居然顶层精英设计师
2017 年中国(陕西)设计杰出青年
2017 第四届峰尚杯新中式设计大赛 最佳方案奖
2017 首届禾记万佳杯设计设计大赛优秀奖
2017 创意生活设计金蝴蝶奖
2017 商业旅游地产年度优秀住宅公寓设计师
2017 评选为亚太空间艺术大师
2018 金楠奖设计大赛优秀奖
2018 获得第二届西安建筑装饰设计“青年设计师领袖”称号
2018 设计作品《中海百贤府》获得
第二届西安建筑装饰设计别墅类银奖
2018 设计作品《龙湖香醍》获得
第二届西安建筑装饰设计样板间设计优秀奖
2019 金堂奖全国百强先锋榜百强设计师
2019 年度腾讯家居搜狐焦点家居杰出设计师
2019 德国高仪住宅精英榜 TOP108 匠
2019 蒂森克虏伯杯别墅设计大赛经典设计奖
2019 第三届西安建筑装饰设计奖“年度青年设计师领袖”
2020 中国设计新青年评选“城市举荐官”
2020 设计作品《石中木》获得陕西地区优秀住宅软装设计
2021-2022 中国新地产设计大会年度优秀别墅设计师
2021 金住奖-中国百杰居住空间设计师
2022 中国国际空间设计大赛十佳设计师
成功案例:中华世纪城紫薇臻品
白桦林居中海华庭 中海国际 紫薇融侨就掌灯 中海东郡 曲江公馆 曲江尚林苑 曲江兰亭 曲江华府 枫林意树湖城大境 中海铂宫 中海百贤府 紫汀苑紫楹台曲江和园 中海曲江大城 .....
客服
消息
收藏
下载
最近















