查看完整案例

收藏

下载
建筑师 Sunil Patil And Associates
地址 Pune, Maharastra, 印度
类别 公共建筑
主创建筑师 Architects Sunil Patil, Architect Anuja Pandit, Er. Sanajay Patil
建筑面积 19797.0 m2
项目年份 2017
摄影师 Square One
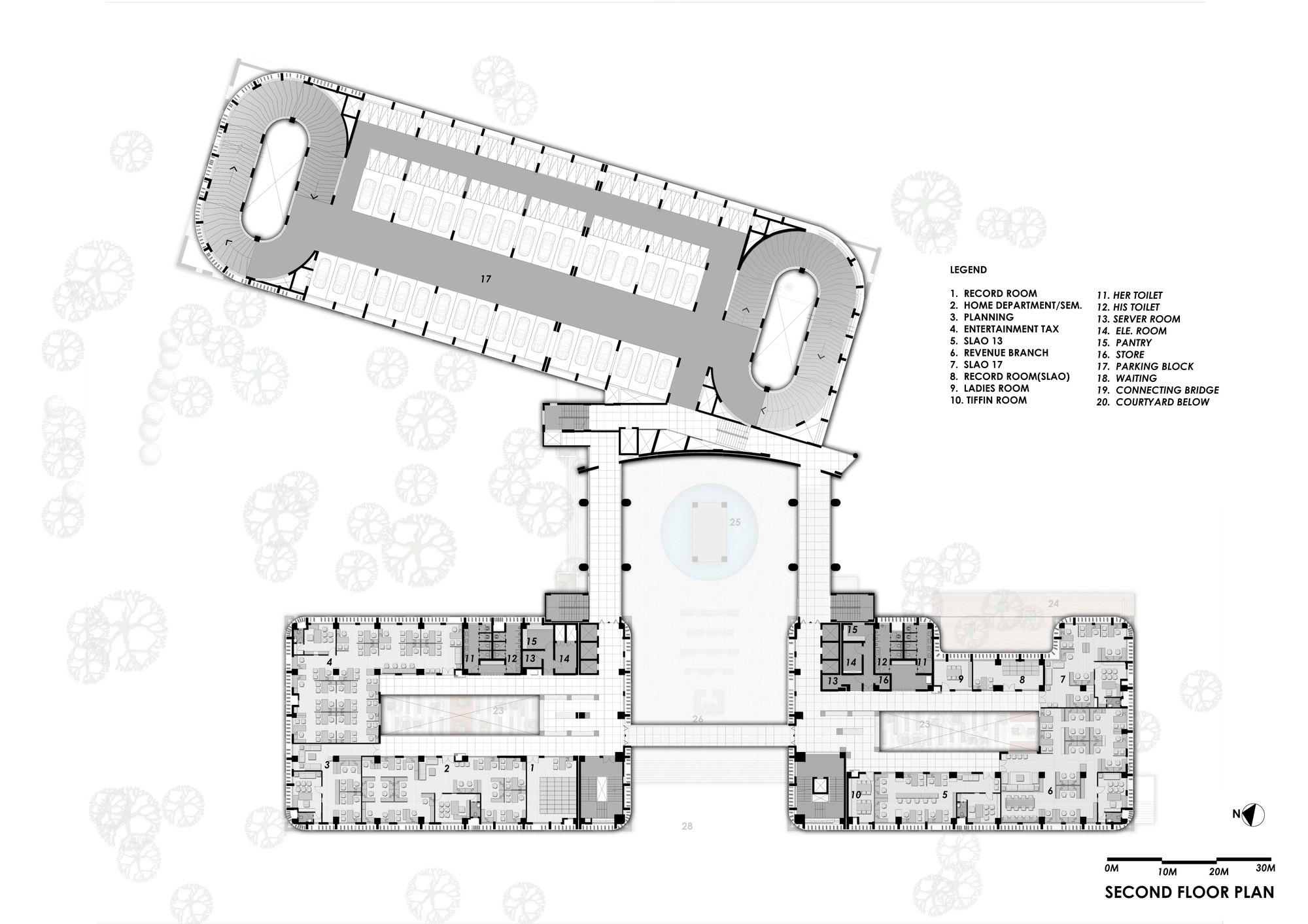
收藏家办公室是该区的行政总部。它被视为“动力之家”,因此需要设计为“纪念性建筑”。收藏家办公室是在现有站点上设计的,其目的是取代多个小型和旧式结构的集群,这些结构在功能上效率低下,无法应对不断增长的占用和建筑需求。
在收藏家办公室,访客来自整个地区,有时他们需要在校园里度过一整天。因此,就像办公楼一样,它需要有高效的公共空间,在设计收集办公室时,将两者结合起来是一项重大挑战。收藏家办公室,Pune在现有网站上设计,旨在取代一系列小型和旧式结构,这些结构在功能上效率低下,无法应对不断增长的占用和建筑需求。
该场地包含一些古老的石头结构和197棵完全成熟的树木。新收藏家办公室的设计融合了石头和旧建筑的一些建筑特色。主要的压力是保留现有的古树和植物群,而不会耗尽既定的生态系统,同时建造这个新的19,797平方米的结构。
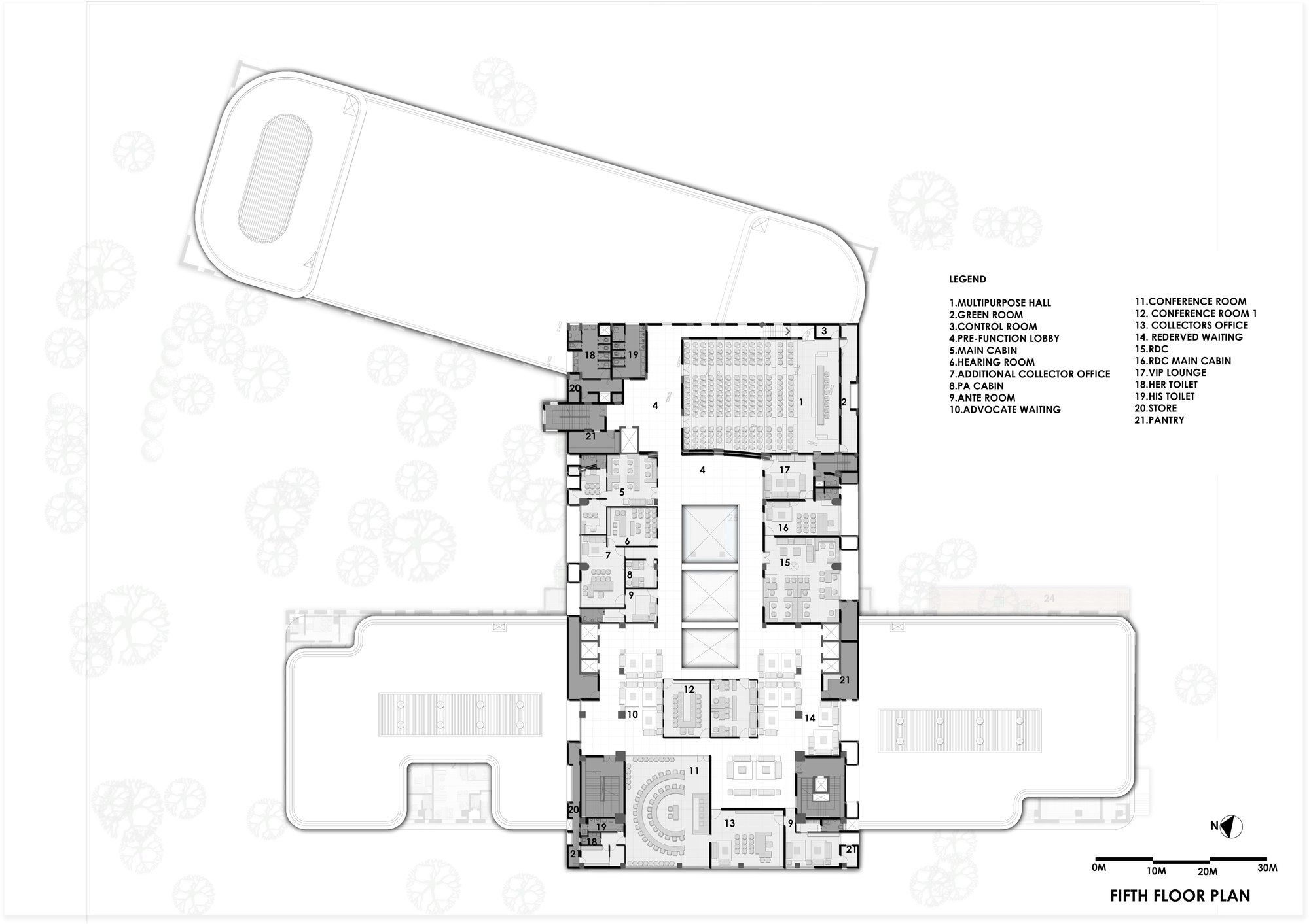
秉承现场条件,设计始于三个群众的演变 - 办公室翼A和B,以及一个相互分开的停车楼,以创建一个半开放式广场和第四个质量 - 翼C设计在顶部这三个群众完成了广场。所有的机翼通过不同层次的桥梁相互连接。每个办公室翼都设计有中央庭院,以便为空间的每个角落和角落提供自然光线和通风。多层停车场的设计不是地下停车场,以节省现有树木的数量。将停车楼连接到所有楼层允许警察将车辆停放在办公室的同一层,从而最大限度地减少电梯的使用。
客服
消息
收藏
下载
最近























