查看完整案例

收藏

下载
更多物上空间设计作品:
一道光门,隔开了外界的纷扰,拾阶而上,映入眼帘的是一头金色的熊趴在玻璃上向内窥望,这是致敬艺术家Lawrence Argent在美国Denver Convertion Center创作的蓝熊,它的趣味性打破了走廊的单调。
走廊的两条光线分别指引着两个不同区域的入口,右边的玻璃墙隐藏着工作室的LOGO,不开灯的时候,这是一堵干净的玻璃墙,丝毫看不出有什么特别;灰色的大理石地面像纽带一样,连接着两个不一样的空间。
沿着光的指引,我们首先进入左边的空间,这是属于设计部的区域。温润的原木、空旷的白、冷峻的灰,还有那一角绿色的青苔,都能让心马上平静下来;为了让办公区得到更好的视野、光线和合理的空间比例,我们提升了办公区域的地面,下面作为储物间和设备间,这样即丰富了空间的层次,又解决了收纳的问题;利用高度差,从入口到办公区域的楼梯设计成可休闲看书,可临时变成会议室的多功能区域;而办公区域上空悬吊着那条犹如艺术装置的物体,这是可根据功能需求、调节灯光色温和亮度的灯具,随着工作的心情变换工作的氛围。
右边的空间是一个完全通透纯白的空间,视觉中心是一个多功能的木盒子,它是空间挤压的产物;原本是三个独立空间打通成一个空间,暴露出结构吊顶的两根超大承重梁,这让每个功能区的空间比例受到限制。
经过反复验证,把洽谈和会议功能这个区域的地面高度降低,形成一个中转平台,并把所有的收纳功能集合在这个盒子内,用原木包裹,形成空间的枢纽中心;为了保证隐私、通风采光及安全,盒子的围挡采用矩管格栅的形式,通过格栅观看楼梯边的佛像及楼梯下行走的人,会让平静的空间产生互动的波澜。在二楼挑空的墙体上的那条缝,也是起到采光通风的作用,并避免视觉上的拥堵。
在这么安静的环境里还采用了包括智能灯光等很多科技的手段,目的是在保证空间的纯净度的同时,在使用过程中更加的便利和舒适;静界不仅仅是一种理想境界,还有对未来的感悟和憧憬。
平面布置图
一层1F平面布置图
二层2F平面布置图
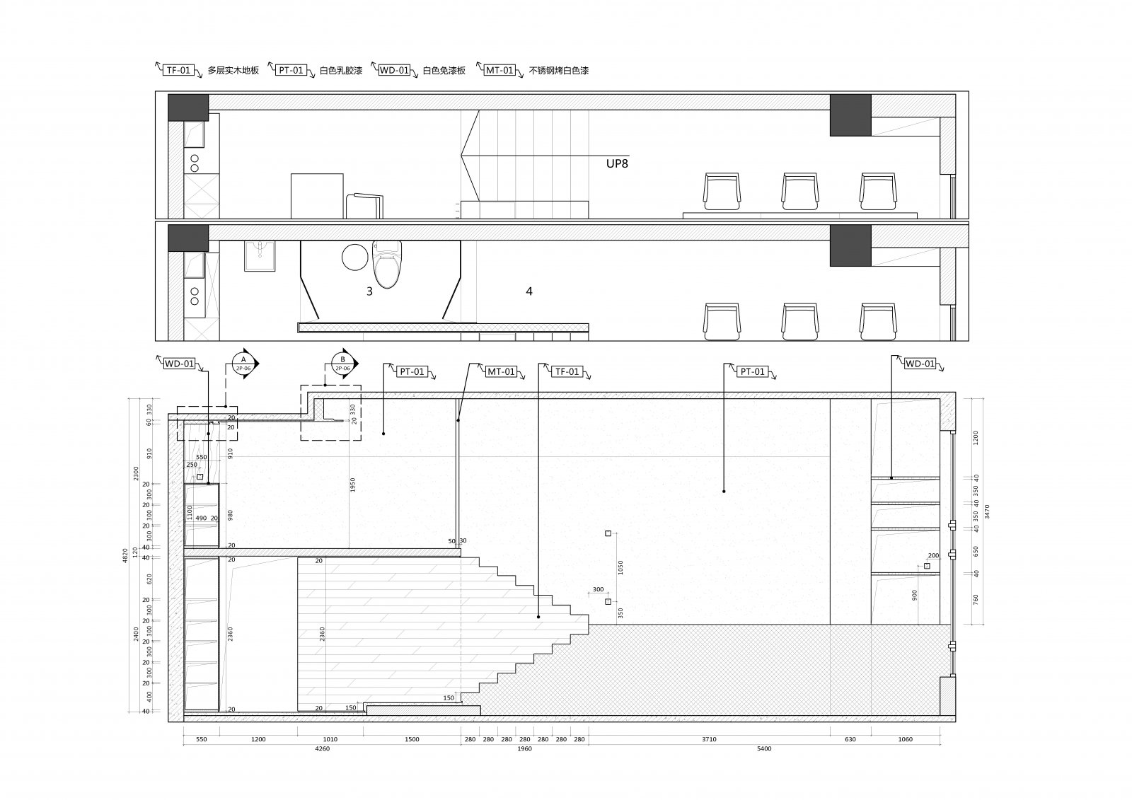
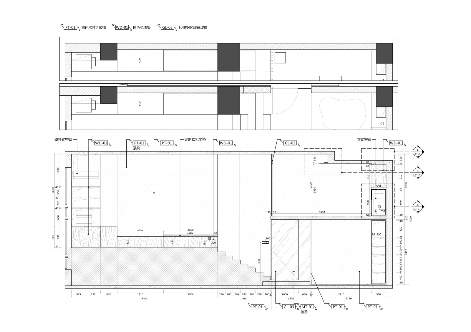
立面图
立面图
立面图
立面图
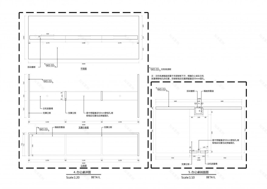
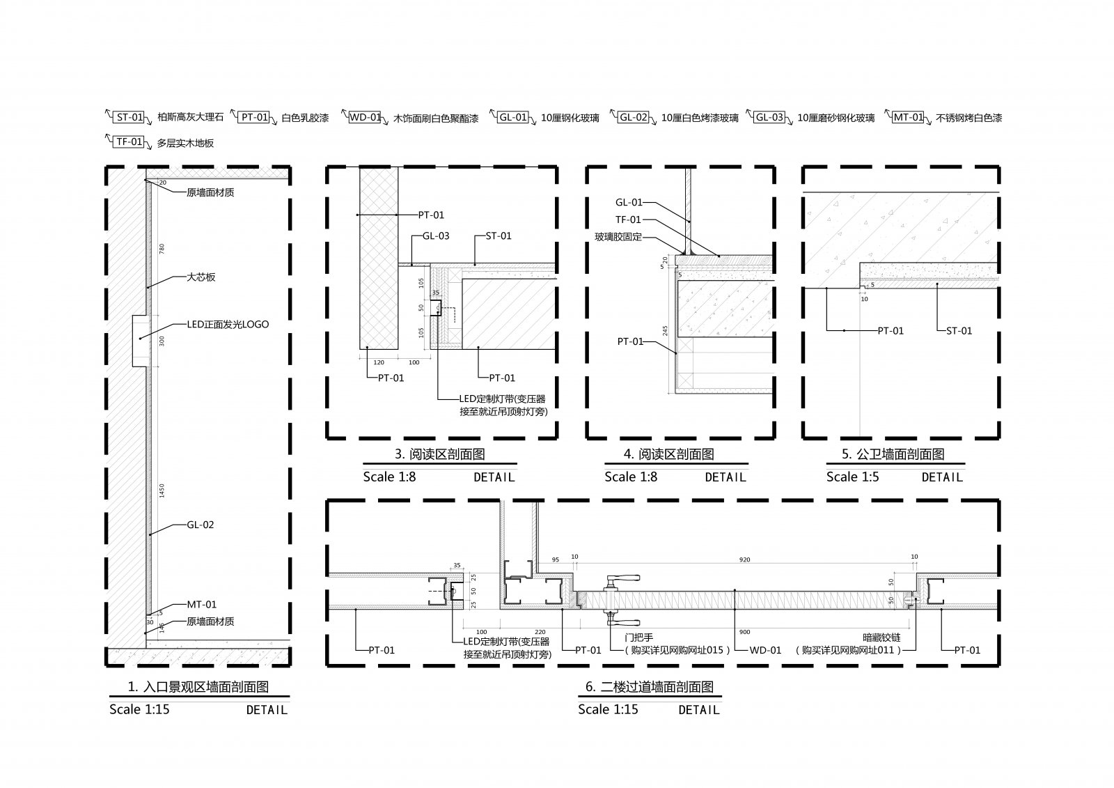
剖面图
剖面图
项目地址:福建泉州华大泰禾广场
设计单位:物上空间设计
设计主创:蔡天保、张建武
设计团队:许振良、李德娟、钟小苏
设计时间:2017.2.10-2017.6.10
开放时间:2018.3.20
项目面积:240㎡
工程造价:60万
主要材料:白色微晶石、白色乳胶漆、灰色大理石、实木地板、10mm钢化玻璃
软装团队:物色软装
施工团队:广海工程
空间摄影:陈荣坤
公司简介
蔡天保(左) + 张建武(右)
“造物,是为了使人更随心所欲的活着”
物上空间设计,秉持“造物于人,人于物上”的核心设计理念,提倡以人为本的空间定制,致力打造一个有态度的品牌。
温润的原木与空旷的白色空间相结合
能使人的内心平静下来
这个办公空间带给你什么样的感受呢
认真点评奖励10-200金币!
客服
消息
收藏
下载
最近






























