查看完整案例

收藏

下载
设计是基于本质的理念升华,经由思考的过程,让天马行空的想象,从图纸大概现实到落地状态。它源于面对未知、新生的憧憬,需要多元的灵感与支撑。宁波旷世智源,作为文化创意企业,专注于工艺家居饰品的研发、设计等系列的工作。在发展理念中,时刻强调
“品牌、创意引领市场”。为了突出艺术特性,在室内部分,设计师着重打造别具一格的设计,努力营造不受限、多可能的办公氛围。
考虑公司产品因领先潮流的设计和差异文化的定位,行销于海外主流市场,其本身所塑造的形象,也应该具有时尚、大气的国际范儿。将黑白对比的不规则元素加入到中性灰的高级感中,让空间既有工业风的冷酷沉稳,又不失现代简约的内敛个性,更能使公司的气质与品味得到展现。
设计以自然的醇色与肌理,为空间注入生机。楼梯曲折却不弯卷,用直接利落的线条,使常规楼梯多了一些新意,又不会显得过于娇柔。在办公区的过道处,抬眼可以见顶。设计师不对高挑的层高多加阻碍,而是用大间隔的短梁,对楼层进行区分,且不会在视觉上有所限制,使得空间通透、敞亮,从而避免产生压抑感。
整齐的桌椅排布和近乎统一的黑白灰主调,能够呈现办公区制度化的规矩、调理。而通过多边门框以及三角色块等几何元素的介入,又能使其氛围更具灵动性。一些大面积或细节处的鲜亮色块,有助于员工在更为轻松舒适的环境下,寻找思维突破口。
纵观整体,本案设计少有门与隔板的出现,或是以玻璃为墙,尽可能在保留必要私密空间的同时,增强工作中的流动性。使每个人都能在部分领域中,实现自我的价值,找到归属感与责任感。并且,更有效促进员工间的相互交流,以提高团队协作及凝聚力。
Design is based on the essence of the concept of sublimation, through the process of thinking, so that the imagination of the sky, from the drawing to the state of landing. It originates from the face of unknown and new visions, and needs a lot of inspiration and support. Ningbo , as a cultural and creative enterprise, concentrates on the research and development, design and other series of home decorations crafts. In the concept of development, it is always emphasized that "brand and creativity lead the market". In order to highlight the artistic characteristics of the interior, designers focus on creating a unique design, and strive to create an unlimited, multi-possible office atmosphere.
Considering that the company's products are sold in the overseas mainstream market due to their leading fashion design and different cultural positioning, its image should also have a fashionable, atmosphere of the international paradigm. The irregular elements of black-and-white contrast will be added to the high-level sense of neutral gray, so that the space has both the cold and steady industrial style, but also lose the modern simple and restrained personality, can make the company's temperament and taste to be displayed.
Design with natural color and texture, inject vitality into space. The staircase is tortuous but not curly, with direct and sharp lines, so that the conventional staircase more innovative, but not too delicate. At the aisle of the office area, you can see the top of your eyes. Designers do not hinder the height of tall floors, but with large spacing of short beams, to distinguish between the floors, and will not be visually restricted, making the space transparent, bright, thus avoiding depression.
The neat arrangement of desks and chairs and the nearly unified black-white-grey main tone can present the rules and regulations of the office area institutionalization. And through the multi-dimensional doorframe and triangle color block and other geometric elements, but also to make its atmosphere more flexible. Bright colors on large areas or details can help employees find breakthroughs in a more relaxed and comfortable environment.
Throughout the overall design, few doors and partitions appear in this case, or with glass as the wall, as far as possible while retaining the necessary private space, enhance the fluidity of work. So that everyone can achieve their own value in some areas, and find a sense of belonging and responsibility. Moreover, it is more effective to promote mutual communication between employees, so as to enhance teamwork and cohesion.
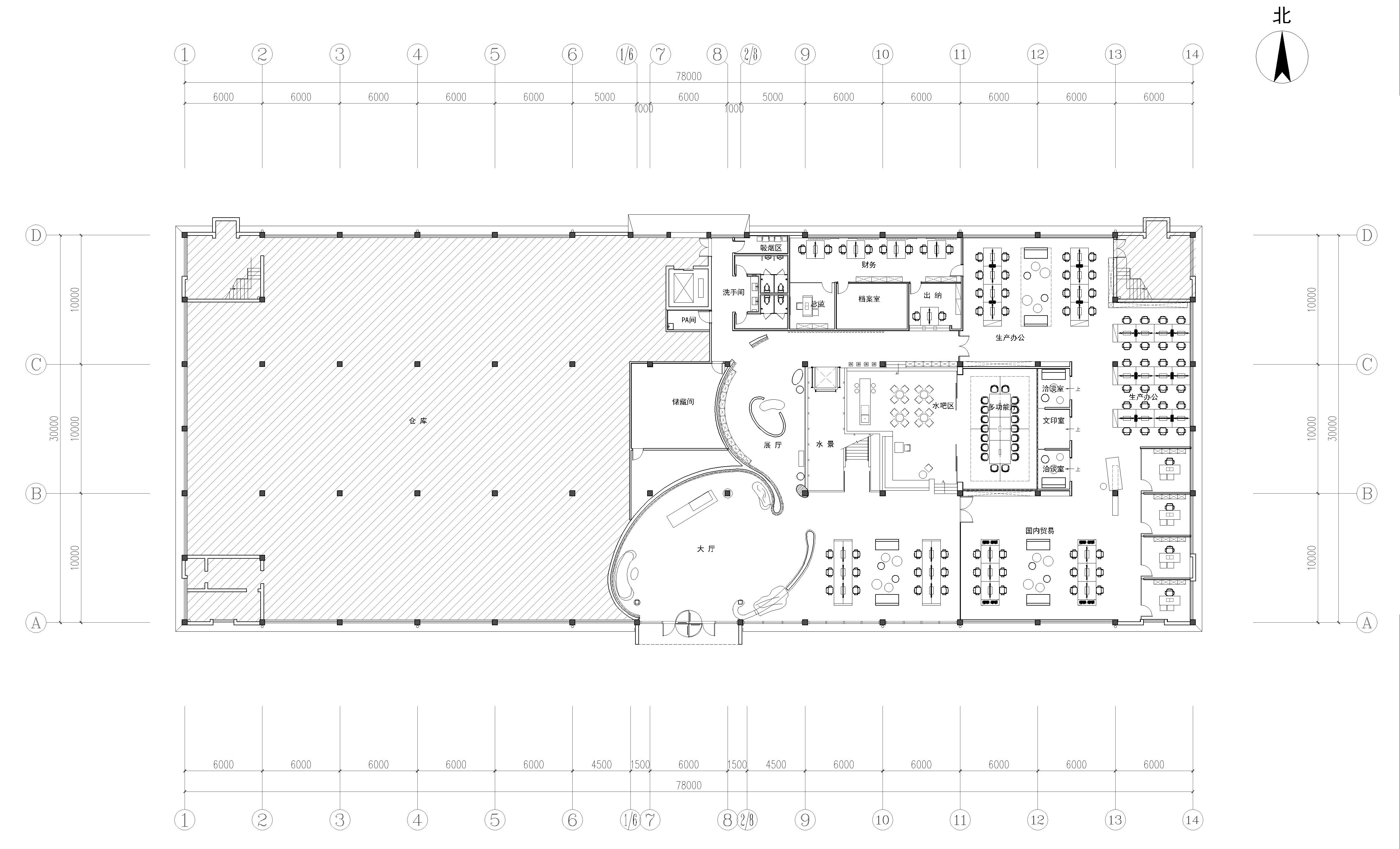
一层平面图:
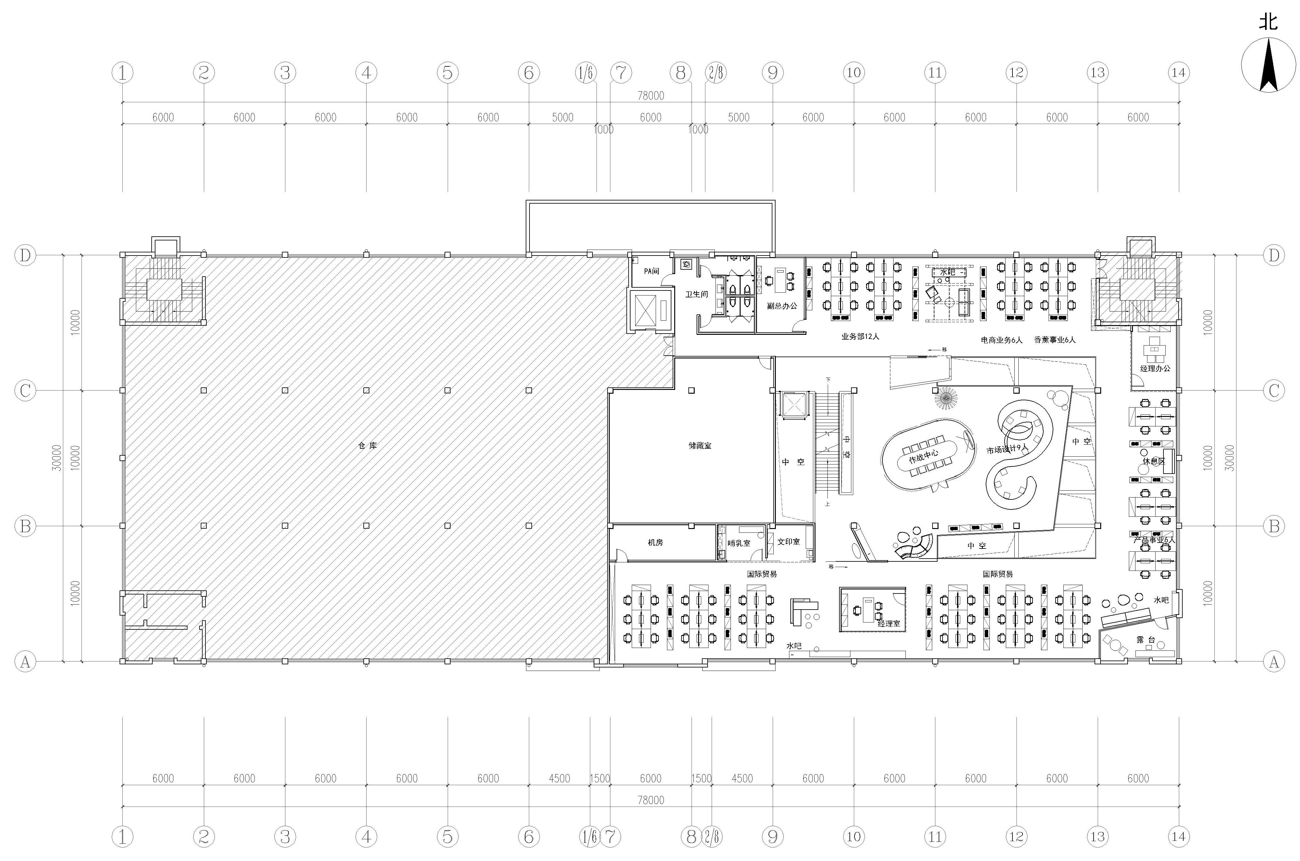
二层平面图:
大厅:
会议室:
楼梯:
休息区:
走廊:
办公区:
项目信息对照表/checklist
内容/content
1
项目名称/ project name
宁波旷世智源办公室
2
建筑师或者建筑公司/architect or company
古木子月空间设计
3
公司网站 / Website
4
5
项目设计 & 完成年份 / Design year & Completion Year
2018年6月
6
主创及设计团队 / Leader designer & Team
李财赋,赵铁武,胡荣海,王军政;陈设设计:胡荣
7
项目地址 / Project location
浙江·宁波
8
建筑面积 / Gross Built Area (square meters)
2900平方米
9
摄影师 / Photo credits
刘鹰
10
合作方 / Partners
11
客户 / Clients
宁波旷世智源工艺设计股份有限公司
12
品牌 / Brands / Products
水磨石、艺术涂料、玻璃
客服
消息
收藏
下载
最近




















