查看完整案例

收藏

下载
空间是体现在他自己的世界中的自我意识,有什么样的人,就有什么样的空间。——赖特
Space is a self-consciousness embodied in his own world. What kind of people , what kind of space.——Wright
此项目位于杭州钱江世纪城望京,毗邻亚运村,有钱塘江,有绿,有火车,同时紧挨城市CBD,有高楼,有霓虹灯,有混凝土。于是我将基本的功能做了分区。过渡空间把办公空间与会客空间分开,有意的通过一些空间与结构关系将动线拉长,以便增加流线步数。
▼空间入口
▼展示空间
▼展示空间细部
最起初构思此案时,我对空间的探索性与引导性做了实验,尝试用空间去传递想表达的心理与行为暗示,包括邀请,仪式,偷看,意外,层次,穿插,虚空间,光。艺术家James Turrell,思考如何将艺术作品融入到空间,成为空间的一个组成部分。对于空间吊顶与墙面局部的特殊处理,由于结构的改变,光的融合度也产生了变化。利用两层光与光膜的实验,让一种颜色的光包住另一种颜色。
▼走廊
▼透过走廊看水吧区
▼走廊细部
▼室内细部
▼水吧区
▼会客区
▼会客区细部
关于结构,一直以来对建筑空间特别向往。雕塑性和立体性的空间对我而言更具有吸引力。对于空间表现来说,我更希望是有关于心理由浅入深的层次表达,通过结构关系的引导,让空间与空间过渡变的更有趣。
▼办公区域
▼办公区域过道
▼会议室与茶水台
▼茶室空间
▼茶室空间细部
▼私密空间入口与茶室空间
有一处神秘的空间,在整个大空间中想私藏一处收藏与私密的会客室,思考来源是禁酒令时期的机关藏躲。我们采用的是机械结构结合一扇定制的半圆形的门,处于空间的尽头,带着一条竖向的光。人们不知这扇巨型的人半圆门通过智能控制,缓缓移动,一处私密空间藏与空间的背后。
▼私密空间机械门
▼私密空间
在空间施工过程中,遇到了很多的“意外”。对于这些“意外”,我都是特别期待的。它们是故事的一部分,因而我更多的是保留,让它们在这个空间里散发自己的魔力。建筑与空间的幸福感和幽默感是我一直在追寻的方向。这个世界不缺乏有意义的事,却缺乏有意思的事!
▼轴测图
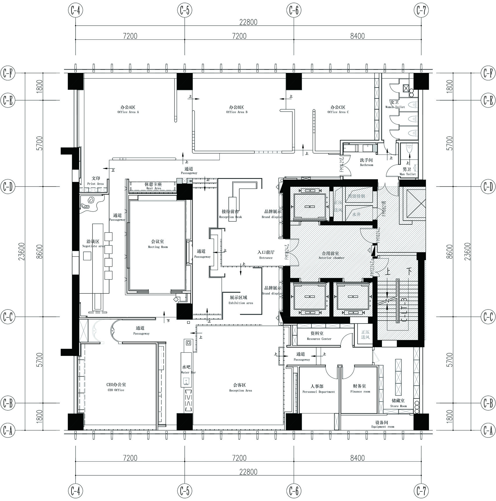
▼平面图
▼剖面图
项目名称|PROJECT NAME
OLIIII CHINA
设计单位|DESIGN
I.F.S.E. SPACE CREATIVE LAB
主案设计|CASE DESIGN
朱啸尘(Eason Zhu)
设计团队|DESIGN TEAM
凌宗生(Alex Lin) 柴尔焕
项目类型|PROJECT TYPE
办公空间
项目规模|PROJECT SCALE
600m2
施工单位|CONSTRUCTION
杭州艾丽蒙特工程有限公司
项目摄影|PROJECT PHOTOGRAPHY
施峥 陈琳
项目地址|PROJECT ADDRESS
萧山望京
完工时间|COMPLETION TIME
2018/6
撰文|WRITTING
朱啸尘(Eason Zhu)
客服
消息
收藏
下载
最近










































