查看完整案例

收藏

下载
旭辉企业总部位于旭辉地产在上海虹桥商务新区开发的一个多动能复合业态园区内,在申虹路和迁虹路街口一块方形用地上。该用地处于连接园区南北地块以及申虹路沿街界面的重要节点。
▼外貌
业主作为闽商的代表从其设计初始就要求要能体现闽商文化和旭辉本身对闽商文化的独特外延。多山、濒海是福建显著的特点,山与海的互动,形成了中国农耕文明与海洋文明的分界线。正是由于这种特性闽商形成类似内陆晋商的稳重之风,又有进取而生机勃发的海洋文化特点,故而闽商风格本身就具有“重”和“轻”的双重互融互济的性格。设计最终致力于表达“重”和“轻”这对矛盾,尝试通过这对矛盾来物化出一种有趣的和谐,来表达闽商这种双重性格。
▼设计致力于表达“重”和“轻”这对矛盾
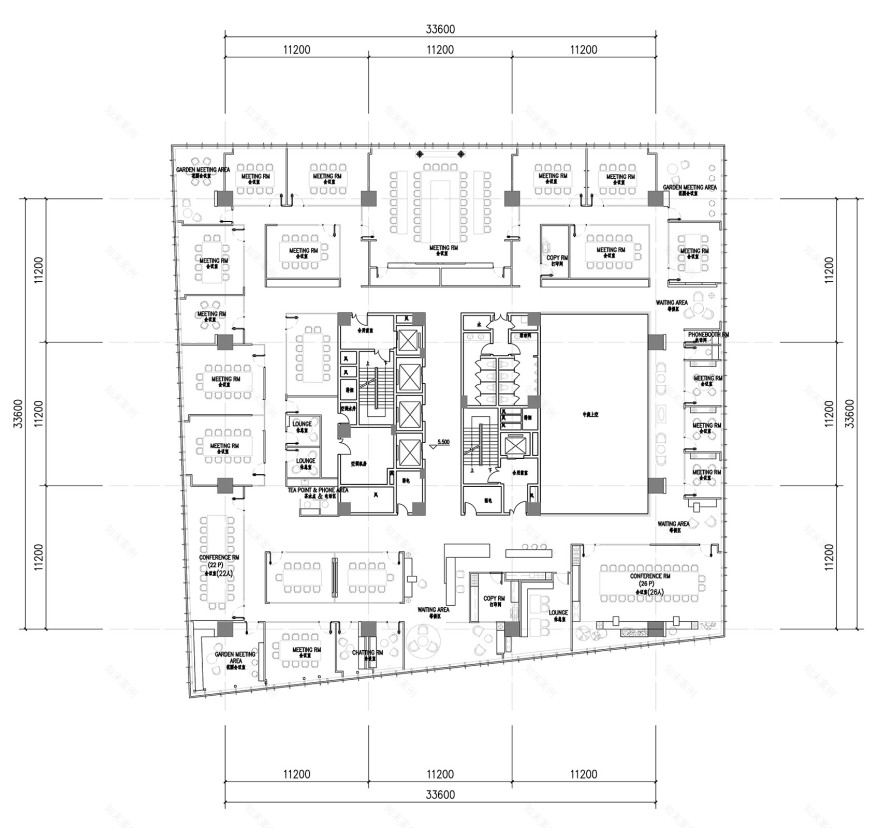
按业态量的要求,将功能化为9层体量:地下一层至二层为公区部分,主要功能为较为开放的接待会议以及企业形象及历史展示。三到五层为普通员工办公区,高区则为财务区和高管区。这种功能的竖向叠加暗示了一种如同层积岩般的横向层叠肌理。
▼地下一层至二层为公区部分
▼电梯间
▼室内环境
每层平面约为40Mx40M的体块,在保证结构稳定性、柱网的合理安排以及功能合理性的前提下,以核心筒为中心,利用幕墙模数拉扯平面顶点,最后形成类似横向马牙皴的图像符号。并消解掉由于航空限高带来的整个比较尴尬的矮胖的方形体量,又传达出层积岩般的稳定质感和高密度重量。
▼传达出层积岩般的稳定质感和高密度重量
在错动的单元之间的建筑材料选择上也做了区分,分别采用了不同反射率的玻璃和不同的幕墙节点来加大这种虚实对比。相信这种看似矛盾的、在不稳定中的稳定而达成的如同磐石重山的外在,应该是和企业总部该表达的稳而变的内涵是吻合的。
▼采用不同反射率的玻璃和不同的幕墙节点加大虚实对比
建筑的悬挑希望呈现出轻薄浮动的状态,结构上通过错动悬挑部位的结构降板和局部钢结构形成空间结构体系,使得每个错动的上下层单元是一种轻轻放置的相切关系,而非传统的咬合相交关系。这种反重力的轻巧状态和如山重拙的整体形态形成一种有趣的对比和互补。
▼建筑的悬挑呈现出轻薄浮动的状态
▼每个错动的上下层单元是一种轻轻放置的相切关系
建筑通体采用通透光洁的玻璃幕墙和阳极氧化铝板幕墙系统,加强了轻、雅、洁的艺术效果。设计在每个扭动的单元上下悬挑的三角区域留下伏笔:每两层单元除去核心筒的使用空间分为两部分,一部分是上下旋转单元相叠的部分,这部分面积较大形状规整,其作为办公主要公区来使用;而上下旋转单元错动悬挑的三角异形区域则作为每个单元的“轻”区域:在这里或为依窗设置休闲咖啡座,你可小酌放松。亦或为迎光布下阳光图书角,你可轻松泛舟书海。还亦可临绿随意设置小几小椅几张,你可俗事不萦怀小暇呆坐……设计希望这些三角区域不经意地出现在每个单元,点缀在办公区之间,成为使用者人性关怀的驿站,精神放松的所在。
▼上下旋转单元错动悬挑的三角异形区域作为每个单元的“轻”区域,the triangular area of shifted cantilevered parts of the up-and-down rotating unit is used as the “light” area. ©是然建筑摄影
▼夜景
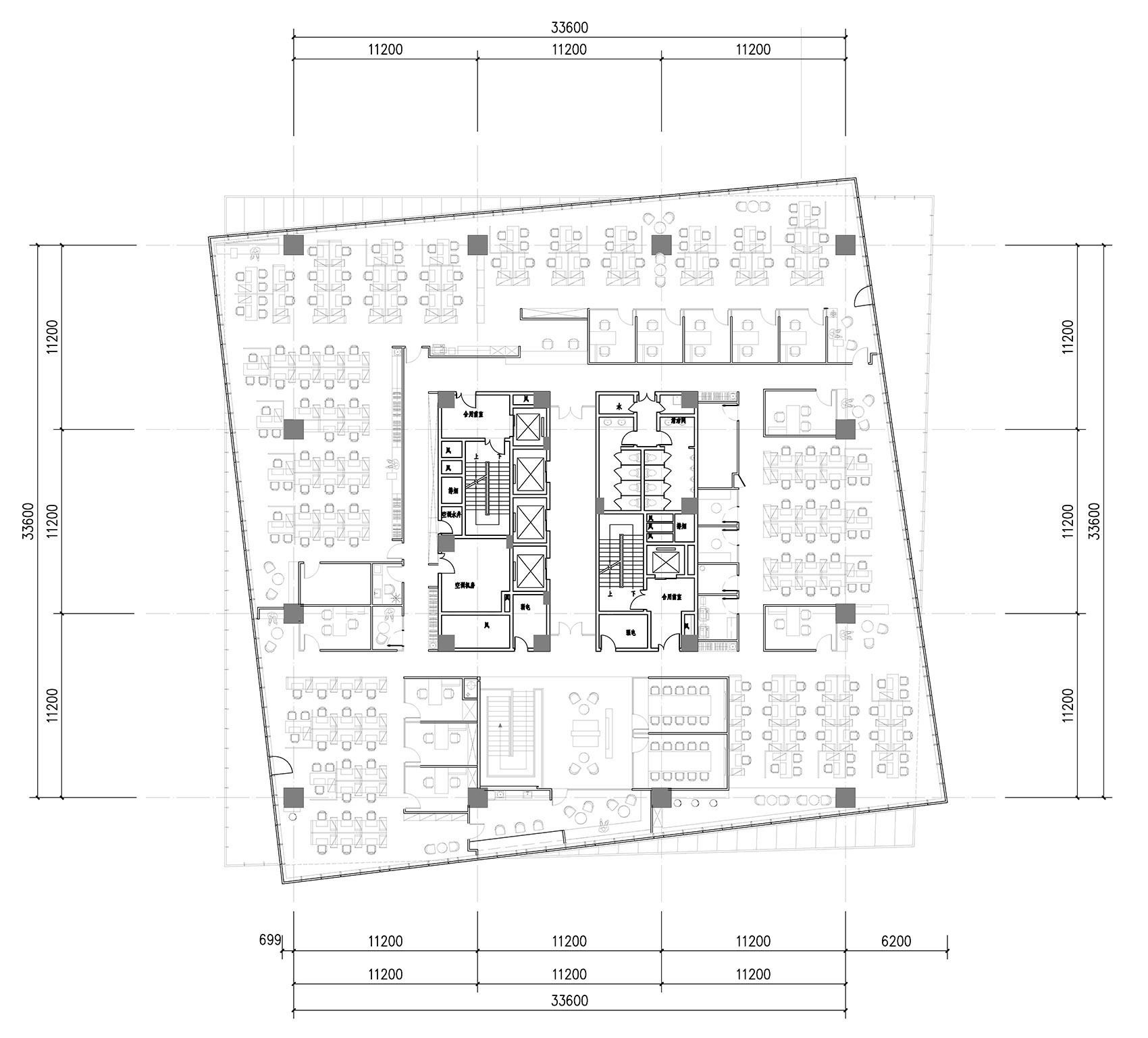
▼七层/标准层平面图
▼剖面图
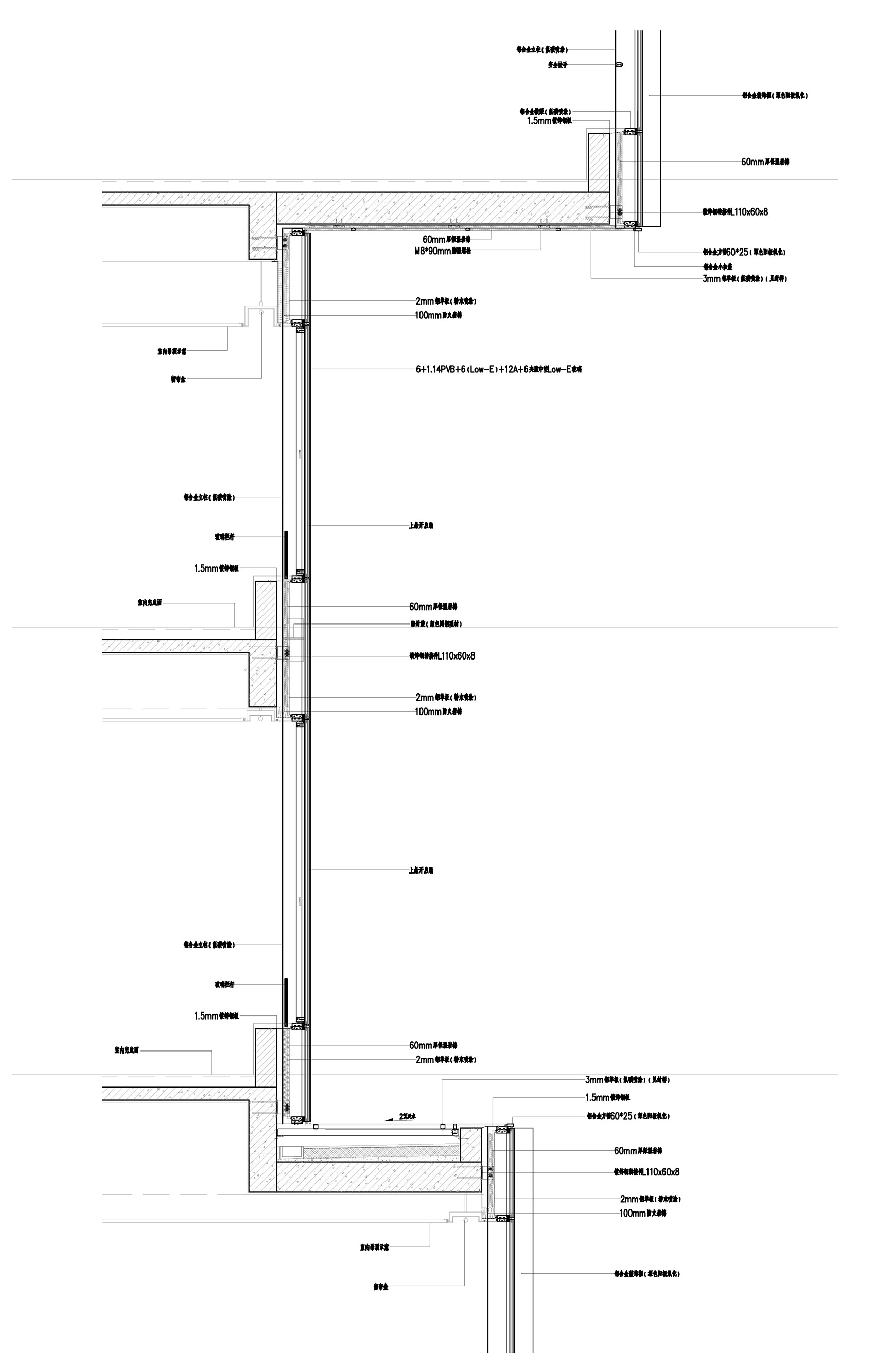
▼节点大样
上海旭辉集团总部大楼
业主单位:旭辉集团
规划设计:上海日清建筑设计有限公司
建筑设计:上海日清建筑设计有限公司
联合设计:上海中森建筑与工程设计顾问有限公司
建设地点:上海市申虹路1088号
建筑面积:14627㎡
设计/建成时间:2014/2016.11
总建筑师:宋照青
设计团队:杨佩燊、魏文渊、郭丹、李少洪、张英琦、曹波、李圣
摄影:苏圣亮、姚力、张英琦
客服
消息
收藏
下载
最近

































