查看完整案例

收藏

下载
精工集团有限公司的核心业务是钢结构工程及建筑行业(建设了多个建筑地标,“北京国家体育场鸟巢”、“北京国际机场3号航站楼”,“上海世博会阳光谷Axis”等),还涉足“装备制造业”,“绍兴米酒”等产业。
“AFC 中建信大虹桥国际”是该集团进军房地产业的首个项目。这幢31层的商业大厦有一半将用做精工集团的总部及其子公司的办公室。因此,设计的关键是能够表现出公司的价值观与实力。AFC大楼是上海新开发的“闵行区商业枢纽”中最高的大厦。精工集团与SPACEMEN通力合作,打造了整个大楼的室内设计。
▼大厦入口
▼一层大厅
设计任务很直接,创造一个当代空间,以黑白灰为主色调,并融合整体建筑的强烈直线美感。
▼一层大厅,黑白灰为主色调,体现直线美感
设计灵感来源于古代希腊神话故事里的“潘多拉魔盒”。中央大堂如裂开的黑盒子,两道白光隐隐的引导人流到内部电梯大厅。四种不同的工艺来处理组成“黑盒”完成面的石头:抛光面、翻滚面、荔枝面和喷砂面,打造出粗旷纹理的完成面。
▼设计图解
▼前台,白色线条引导人流
▼前台后墙面饰以拉制金属,由精工集团提供,展现集团影响力
▼休息区,富有质感的黑暗空间
大楼租户从一个黑暗、活跃和丰富质感的空间转移到一个纯白可丽耐和拉丝金属打造的宁静空间。电梯厅里纯净的材质和灯光别于大堂,让人感觉到安静与舒适。
▼黑暗的休息区和白色的电梯厅形成对比
▼纯净的电梯厅
在上升的电梯里,你犹如进入了一个被灰镜反射的无限空间里,仿佛时间静止了。
▼灰镜反射的电梯内空间
极简的设计风格也被运用在了集团在大楼20层到28层的办公空间中。在入口接待处,设计师别出心裁,由白色大理石、可丽耐和拉展软膜制成的几何体块仿佛悬浮在空间之中。开放的休息处中央设有一座吧台,从这里可以尽享360度室外景观。装饰在墙面上的拉制金属由精工集团直接提供,展示了公司在钢结构制造业的广泛影响。
▼20层办公空间前台,延续极简的设计风格
▼组成前台的体块仿佛悬浮在空中
▼前台后为休息区,中央设有吧台
▼休息区与会议室,空间通透,可以享受开阔的室外景色
▼通透的办公空间
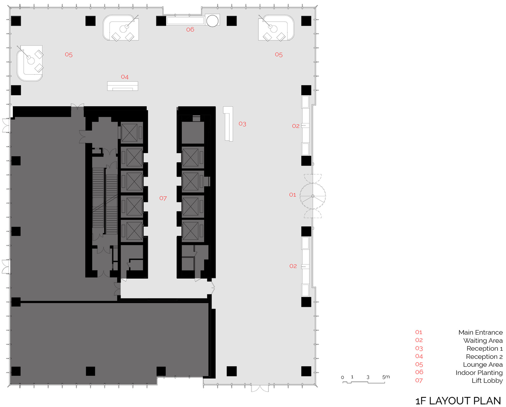
▼一层平面图
▼二十层平面图
▼一层接待区立面图
▼二十层办公区立面图
一层暗黑空间与二十层白色办公空间形成了鲜明的对比
这是富有直线美感的当代空间
你有什么看法呢
认真点评奖励10-200金币!
客服
消息
收藏
下载
最近


































