查看完整案例

收藏

下载
零秒空间(Limo Space)恒创中心位于北京最著名的798艺术区北侧,是北京最炙手可热的文化创意办公区域之一。对空间的重新规划以及引入自然光线,使之成为BOE旗下最具空间体验感的办公改造典范。
功能上本项目将原有单一企业办公功能转变为适合中小企业及共享办公者的复合模式,并配套便利店、咖啡馆等服务功能辐射至周边其他区域。不仅是在空间上引领新的办公环境与模式,而且在功能上成为周边办公环境所依赖的中心。
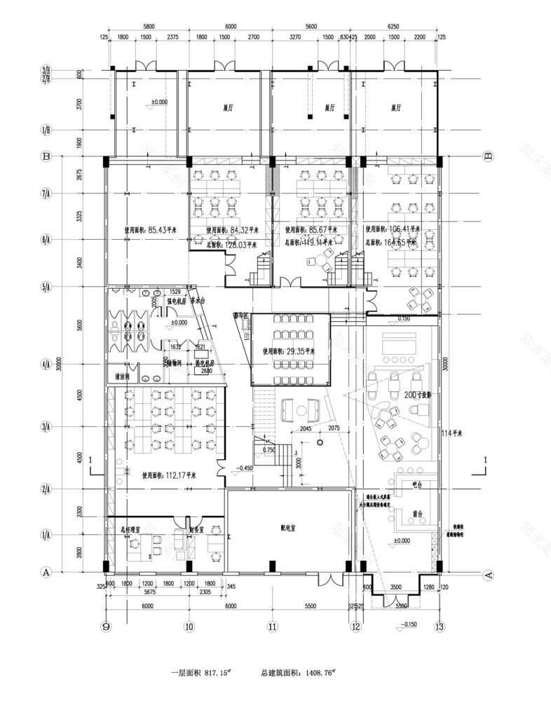
空间上将常用于商业布局的中庭空间引入办公区域,并在其中心位置增设了天窗。错落有致的空间,让人们能直接感受到阳光洒在身上的温暖。对原有地面进行了局部下挖,为办公区域留出了更舒适的高度空间。同时对原有屋顶结构加以利用,形成局部三层的空间,并在办公区域内部也形成局部的挑空空间。在局部视线的营造上,利用中国园林中框景及对景的形式,利用三个木质“盒子”的设置,在现代空间内部形成多种场景转换的形式,让客户行走其中一路上会产生不同的感受。
在共享空间中充分放大30%面积带来的空间感受,确保办公区域有效的经济收益的同时,让客户体会到与普通办公空间完全不一样的感受。面对北京日益让人担忧的空气质量,本项目引入自然光线及能及时过滤雾霾的新风系统。
并利用BOE本身先进的智能控制系统,让项目在节能、节水、节电及空气质量上都有创新的表现。同时也将Limo所注重的健康、自然、舒适等主题元素融合到空间构建、功能布局之中,让客户在潜移默化之中体会和感受到。
考虑到Limo本身低调却有内涵的性格特征,在立面改造上没有做大面积的改头换面,而是适应了现有的环境特征,但对现有立面元素形成了整理,只保留了“门”与“窗”的建筑元素。在门的空间上稍作夸张处理,形成有一定空间倾向的入口空间。北立面根据场地环境,在一层空间形成小巧简洁的体量形式,与内部空间在形式上互相呼应,空间上却有着巨大的反差效果。
本项目最终给出了与Limo相契合的性格特征。情理之中,意料之外。
建筑师 北京相向建筑设计
地址 恒通国际创新园C8,朝阳区,北京,中国
主创建筑师 向凯
设计团队 王谆 , 张岩峰, Jax Lanzo, 张海冰
业主 京东方科技集团股份有限公司
建筑面积 1700.0 平方米
项目年份 2017
摄影师 王鹏飞 Pengfei Wang
厂家 Toto
干
净整洁的办公室
设计师将用于商业布局的中庭空间引入办公区域
阳光洒落进室内让员工感到温暖
你觉得这种人性化的设计怎么样呢
精彩回帖奖励100-200金币!
客服
消息
收藏
下载
最近


































