查看完整案例

收藏

下载
建筑师 序态设计研究室
地址 华东师范大学体育馆, 上海, 中国
设计团队 杨添堡、盛哲
建筑面积 320.0 平方米
项目年份 2017
摄影师 Susan Tan
空间的魅力在于把真实的物质塑造成人类的感知,把空间的实体与形式在特定的瞬间转换为情感。对于空间而言在满足人的多样性情况下,同时产生丰富的体验感。
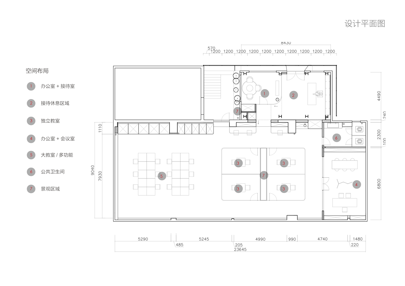
PART STUDIO是一家艺术留学教育机构,场地形态为25*10M长方形,入口处室外屋顶为建筑机电设备平台。室内空间需求多样:一间30人左右的教学空间(同时可转换成50人左右的讲座及展览空间)、4间独立小教室、公共办公室、接待室、VIP休息室、卫生间、储藏室等。
面对复杂的外部环境,最初的概念是明确室内外边界,消隐室内各个区域之间的界限。首先通过室外墙体增加开窗的面积和数量,最大化的保证采光的引入,运用通透的围挡,景观的分隔保证室内外的视线互不干扰,以及设备的遮挡。
室内拆除原有隔断,形成全开放的空间。必要的独立空间采用落地的透明玻璃隔断,保证视线和功能,消除人的局促感受。
为适应展览和讲座的功能,们营造一个环形的廊道结合景观的体块,空间中形成连续的循环交通。
开放的大教室引入灵活的储藏空间,满足展览之时收纳桌椅的功能,材料上我们采用原先老旧的木地板及条形砖,地面则随机保留原有地砖与混凝土相结合。
由于控制造价和工期的原因,一些细节与最初的概念有少许的偏差。但是欣慰的是,空间的使用者认为我们建构的空间,建立在保证多样可能性的前提下,可以激发营造有趣的氛围,让人在其中产生多样的故事。
客服
消息
收藏
下载
最近




























