查看完整案例

收藏

下载

翻译
Firm: International Royal Architecture
Type: Residential › Private House
STATUS: Built
YEAR: 2016
"Stillness and motion"
It is a house for two couples, built in a new residential area.
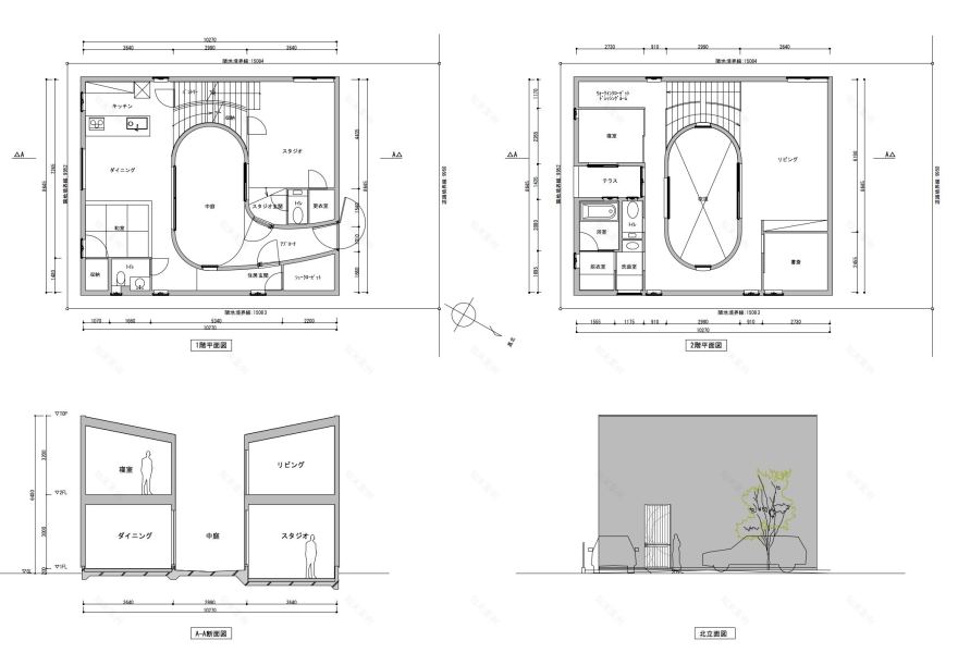
The owner ran a dance studio, forcing a studio for private lessons, a private house, and a private garden. Various contexts, such as dance studios and houses, may require many programs to construct architecture, and may separate architecture itself or space itself in terms of functional and conductive aspects. , Due to the limited site and volume limitation from the aspect of cost, it is required to plan in the same building, not in pairs.
The private and public functions of both functions, that is, the starting points of static and dynamic can be the same, but pay attention to the fact that the process of changing the state of both spaces is a completely different environment, drawing circles and conducting lines that mix with each other. Along with the plan, the program as the process was arranged in order.
The order of a bedroom, a sanitary room, a study, a living room, a kitchen, a dining room, a corridor, and a hall, as well as a bedroom, a dressing room, an equipment store, a studio, a changing room, a toilet, and an entrance. Due to the limit of the allowable volume ratio of 100%, the volume of 2 floors is inevitable, so these 2 orders are connected via the level difference. In other words, this house has two stairs that mix together.
This flowing conductor plan cuts off the "corner" of each program to form a "song". At the same time, we are adjusting the volume of the space that tends to be large. There are chairs and plants in the corridor created on the center side of the song, and it is a space that connects the rooms close to the one room. This building has the strength to pull together the two spaces while spinning, like a whirlpool.
On the other hand, the center, the natural courtyard, and the so-called exterior space can quietly see two different spaces. The courtyard "Shizuka" and the interior space "Kodo". The same environment is created inside and outside the building.
The outer wall was finished with an uneven base made of mortar to give an image of a weathered lump. We hope that the moss will grow due to rain, wind, and changes over time, and that it will become dirty and mark a new history in this new area.
Building name: Shizuka and Kin
Design: Akinori Kaseya + Daisuke Tsunakawa/I.R.A.
客服
消息
收藏
下载
最近





















