查看完整案例

收藏

下载
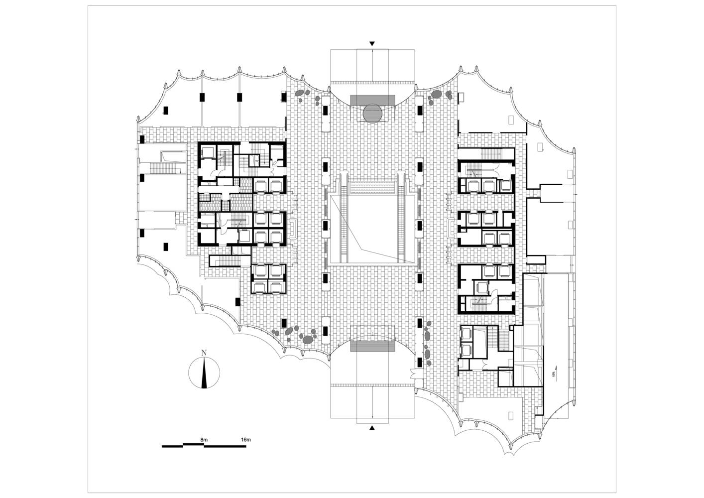
蘑菇云设计工作室团队与 MADA s.p.a.m. 建筑设计事务所历经三年合作,近日完成了“墨色山水”——北京朝阳公园广场A1/A2主楼及A7楼的办公公区室内设计。项目地处北京朝阳公园南面,建筑设计由MAD建筑事务所主持,总建筑面积约22万平方米,由10座建筑组成,高低错落,好像一幅展开的山水画卷,又像是一组盆景。
A1及A2主楼形似山峰,一分为二形成双塔。大堂位于双塔之间似飞瀑一落而下。室内设计取“金石为开”之寓意,选用“铜”这种金属为主要材料,使其与黑色建筑幕墙形成色彩的反差,“金”与“黑石”在此形成了内与外的剖切关系,这也成为室内的基本设计观念,延续了“墨色山水”这一设计主题。
大堂挑空三层,最高处达30米。这是双塔之间的一个巨大连廊,巨型U字构建如垂帘悬在其间成为空间的屋顶,在两侧黑色幕墙的反射后,形成了一片连续的曲面空间,恍若置身于“星球大战”的星际战舰之中。自然人文与科技在此的边界变得模糊,并存在一起;东方自然哲学和高科技的城市空间融合,形成独具特质的现代空间。
设计中对“铜”的材料做了多种尝试。主走廊墙面采用了鱼鳞状铜质的伸拉网,面层附雾化超白玻璃。雾化玻璃能透出铜网的质感,又能防指纹污染,实际呈现出非常细腻而特别的效果。这个特别材料组合在设计中做了很多次尝试才达到如此效果。电梯厅的墙面及顶面采用了高纯度铜板,铜板在使用过程中会逐渐氧化颜色变深,留下时间的痕迹。
A7号楼是办公群楼中面积最大的一栋,与双塔对望。大堂室内设计定义为“玉石”。运用天然直纹石材使墙与地成为一体,黑白线条纵横连贯,整个空间浑然一体,体现出十足的高科技感。
室内设计 MADA s.p.a.m., 蘑菇云设计工作室
项目地址 朝阳公园南路10号,朝阳区,北京,中国
主创设计师 王莹辉、徐迅君、杨育青
设计团队 韩晓煜、吴晓晖、徐贞、郑佳驰、蒋冰静、孙文浩
建筑面积 16400.0 平方米
项目年份 2017
摄影师 章勇 Yong Zhang
业主 骏豪地产(香港)控股有限公司
建筑师 MAD建筑设计事务所
甲级设计院 悉地国际设计顾问(深圳)有限公司
幕墙顾问 阿法建筑设计咨询(上海)有限公司
幕墙曲面优化 阿法建筑设计咨询(上海)有限公司, Sane Form Limited
标识设计 原研哉 + 北京大思广告有限公司
景观设计 上海绿城爱境景观规划设计有限公司
室内照明顾问 上海马科文迪照明设计工程有限公司
景观照明顾问 北京骏豪光文化发展有限公司
LEED及绿建认证顾问 深圳市建筑科学研究院股份有限公司
室内机电设计顾问 汪琮玮
室内工程承建团队 苏州金螳螂建筑装饰股份有限公司
这个办公建筑像一幅展开的山水画卷,又像是一组盆景
成为朝阳公园附近一大特色
欢迎点评
精彩回复奖励100-200金币!
客服
消息
收藏
下载
最近


































