查看完整案例

收藏

下载
项目名称:武汉茂业建设工程有限公司
项目类型:办公室
设计时间:2016年10月
项目设计:黄美绮
摄 影:牧马山庄空间摄影机构 王语墨
“听说办公室的环境可以影响员工的工作效率,听说好的办公环境可以吸引天才的加入” 业主也希望通过新办公室空间的设计,营造温暖大气的办公空间,希望吸引更多的能人加入,把公司做大做强!
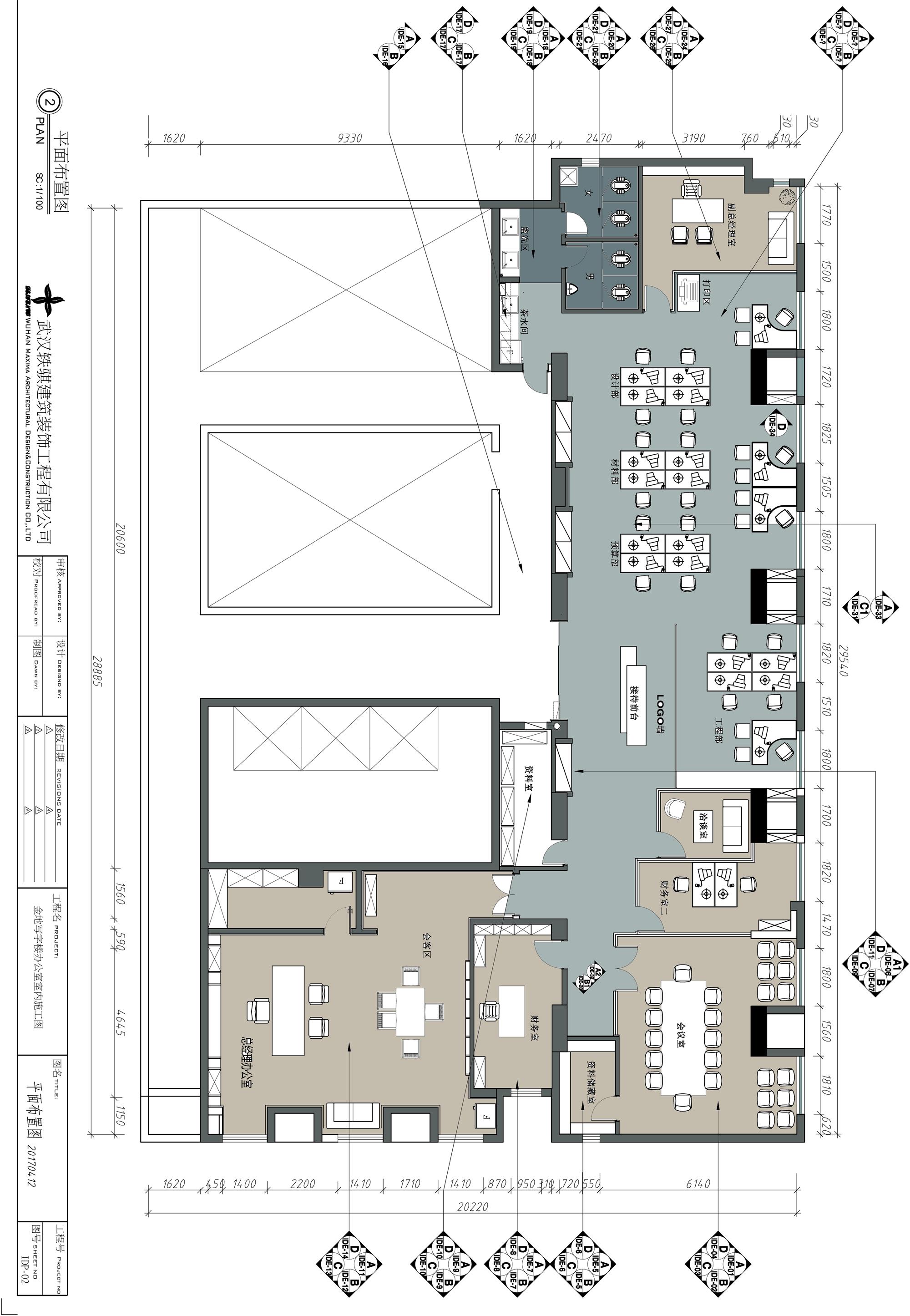
设计师在设计的时候考虑空间的功能划分,把采光好的空间留给员工做办公区还做了大面积的收纳柜,便于员工物品收纳,和公司资料的收纳,空间布局注重部门之间,员工之间的沟通交流,装饰材料的运用上使用了大量的木质本色,营造温暖亲和的工作环境,让员工爱上公司,爱上加班!
平面图
客服
消息
收藏
下载
最近















