查看完整案例

收藏

下载
华泽传媒办公总部位于南京T80创意产业园,前身是民国时期中央政治学院,规划设计、建筑设计均由华盖建筑师事务所设计。民国时期西方文化对中国本土文化影响至深,南京作为民国政府首府更是文化交流甚密之地。T80创意产业园区就是典型的代表,传统木桁架坡屋顶与砖混结构结合,形成大跨度的教学使用的弹性空间。同时也是特殊历史时期,有志向的建筑师们对于建筑设计上的大胆尝试。
▼总部入口
▼入口大厅
我们改造的建筑是7号楼,与前一栋建筑形成一个院落,与后期加建的一栋小建筑形成庭院,其中部分庭院被用作停车场,出现了车与人之间的混杂状况。建筑师利用清水混凝土矮墙,对场地进行重新梳理与整合,把车行与人行动线进行分离。在庭院内部隔离出一个公共性的聚集活动场所。虚与实的清水墙与叠水景观穿插在其中,形成趣味性的空间区隔。
▼用清水混凝土矮墙对场地进行重新梳理与整合
改造项目就是重新建立秩序的过程。在老空间置入微型建筑来重组空间,保持原有空间的质量,从整个建筑的外立面上置入三个空间口,主入口,咖啡厅入口,董事长办公室取景窗,重新组织建筑的空间秩序。为了强调主入口的等级,运用相对厚重的清水混凝土墙来强化。一层大堂挑空区域的材料,是像玉的润度的树脂装饰板,作为室内的主要墙面,组织主要交通空间,是连接一层各个功能空间的纽带。
▼用混凝土墙厚重程度来区分入口等级
▼以混凝土墙面为大厅的主要装饰
▼挑空的大厅让建筑更突显层次感
▼二层空间环绕中央挑空区域而设
▼会议室
▼办公室内景,office
望板上的屋漏痕在诉说着一件件精彩的故事,经历了时间洗礼的望板,仿如一面宋画的绢布背景,若在望板上稍加点缀,寥寥数笔生灵与之交流,便可以形成一幅宋画意向,同时也与项目甲方诉求吻合,整个空间要有家的感觉。燕归巢是对家最贴切的诠释。我们的设计策略是对老建筑的精神延续与衍生,保持原有建筑空间的质量,而不是生猛的冲突。木桁架经过时间的洗礼,斑驳中有时间的印迹,与树脂板建筑材料之间的微妙碰撞,造就了时光交错的印象。我们寻找原来的建筑结构的逻辑,增加剪力墙与柱梁来对原有墙面与屋顶进行加固。同样利用了清水混凝土做结构并摒弃装饰面,让建筑语言之间交流更为流畅。建筑与自然之间的有趣的边界称之为灰空间,建筑的主入口正是这样的模糊边界空间。水杉树庭院与室外庭院,主入口之间形成这种叙事关系。
▼木桁架屋顶与混凝土建筑的微妙碰撞
▼漏痕屋顶与现代化装饰打造“燕归巢”的意境
▼混凝土建筑与周围环境的自然衔接
我们在华泽传媒的总部增加了图书馆、咖啡厅、健身房、创客中心和休憩空间等一些新的尝试。
▼书吧与咖啡厅内部
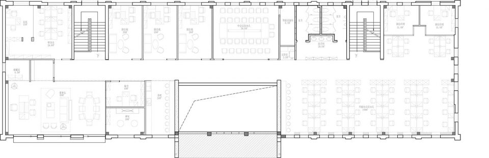
▼一层平面图
▼二层平面图
项目名称:南京华泽传媒总部
设计单位:G.M.D国际设计
主案设计:朱文林
设计团队:刘小清 王树全 郭继雨 周付标 亓元 蓝福兵
完成时间:2017年8月
项目面积:1400平方米
项目类型:办公空间改造
施 工:苏州金螳螂
结构改造:胡亮亮
摄 影:史云峰
客服
消息
收藏
下载
最近






























