查看完整案例

收藏

下载
门口的石狮和整石门套的造型营造一种厚重的视觉冲击,区别于同楼层的其他办公空间。在室内有限的条件下,充分的体现稳重大气的氛围。
前台的材质和造形是仿旧时的木箱,绿植的背景墙在整个庄重大气的空间里又不缺少生机和灵气,同园林公司的气质也是相得益彰。
在综合办公区过道因为空间比较狭小所以隔墙大部分采用通透的形式;在这个结构复杂的地方我们把原有的柱子用水泥扫出粗狂的表面,以拴马桩和黑铁进行点缀,把两个空间巧妙地分隔开。
这个空间是整个布局的转折地带,在材质上结合了两个区域的特点。圆形的窗洞与前厅互通,有一种纵深穿越的视觉效果。
过道整体灯光偏暗,左边一排竖向隔断阵列排布,让宾客从办公区域来到这里可以很快地感受到会所区域的品质感和庄重感。
整个会议室,茶室和餐厅一同一中轴做分布,使会议室的空间感更具有视觉冲击力;整个空间以点光源为主在柔和的灯光环境下,使人感受到心灵上的一份宁静、一份归属感。
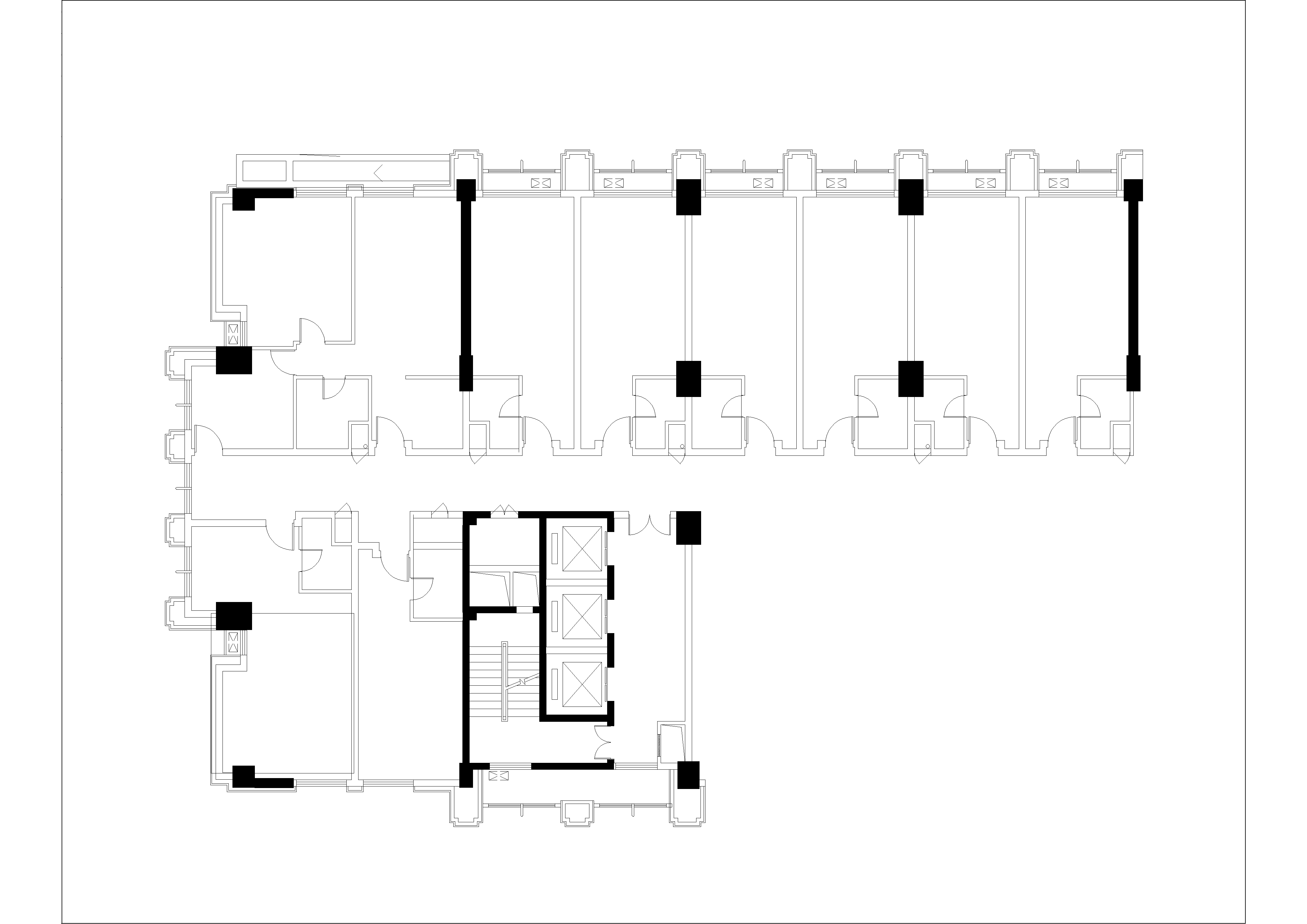
本项目原建筑使用规划为单身公寓,所以顶部梁位,管道,柱体错综复杂且大小高度不一。这些条件给我们的设计带来了很大的挑战。我们必须把现有空间概念打碎之后再重新根据需求整合,我们必须精准的算好梁的位置和高度,在合适的尺度空间构建各自独立的空间感。在空间布局上整个空间分为两大块:办公区域和接待区域;两个相对独立却又联通的空间我们在材质和灯光运用上也作出了比较明显的区分。办公区域的光线相对明亮,每个空间都很通透,保证办公人员不会因为空间的层高和大小显得压抑。在材质运用上相对简单色彩运用水墨画的黑白灰三色作为主基调,简单大方,并且可以很好地控制造价。接待区域的光源主要以室内光源为主,空间私密性较强。会议室,茶室,餐厅三个空间看似独立却又全部连通提高视觉的通达性。接待区域的过道上材应用麻石,硬包和玫瑰金不锈钢三种不同质感的材质对比,粗犷材质与金属材质的碰撞让整个空间更加的立体和稳重。
客服
消息
收藏
下载
最近
















