知末
知末
创作上传
VIP
收藏下载
登录 | 注册有礼

杜兹设计丨丨一艘悬浮的“战舰” – 幸福码头8号楼空间改造项目,上海

2017/07/23 14:45:00
查看完整案例
微信扫一扫
收藏
下载
杜兹设计丨丨一艘悬浮的“战舰” – 幸福码头8号楼空间改造项目,上海-0
杜兹设计丨丨一艘悬浮的“战舰” – 幸福码头8号楼空间改造项目,上海-1
杜兹设计丨丨一艘悬浮的“战舰” – 幸福码头8号楼空间改造项目,上海-2
杜兹设计丨丨一艘悬浮的“战舰” – 幸福码头8号楼空间改造项目,上海-3
杜兹设计丨丨一艘悬浮的“战舰” – 幸福码头8号楼空间改造项目,上海-4
杜兹设计丨丨一艘悬浮的“战舰” – 幸福码头8号楼空间改造项目,上海-5
杜兹设计丨丨一艘悬浮的“战舰” – 幸福码头8号楼空间改造项目,上海-6
杜兹设计丨丨一艘悬浮的“战舰” – 幸福码头8号楼空间改造项目,上海-7
杜兹设计丨丨一艘悬浮的“战舰” – 幸福码头8号楼空间改造项目,上海-8
杜兹设计丨丨一艘悬浮的“战舰” – 幸福码头8号楼空间改造项目,上海-9
杜兹设计丨丨一艘悬浮的“战舰” – 幸福码头8号楼空间改造项目,上海-10
杜兹设计丨丨一艘悬浮的“战舰” – 幸福码头8号楼空间改造项目,上海-11
杜兹设计丨丨一艘悬浮的“战舰” – 幸福码头8号楼空间改造项目,上海-12
杜兹设计丨丨一艘悬浮的“战舰” – 幸福码头8号楼空间改造项目,上海-13
杜兹设计丨丨一艘悬浮的“战舰” – 幸福码头8号楼空间改造项目,上海-14
杜兹设计丨丨一艘悬浮的“战舰” – 幸福码头8号楼空间改造项目,上海-15
杜兹设计丨丨一艘悬浮的“战舰” – 幸福码头8号楼空间改造项目,上海-16
杜兹设计丨丨一艘悬浮的“战舰” – 幸福码头8号楼空间改造项目,上海-17
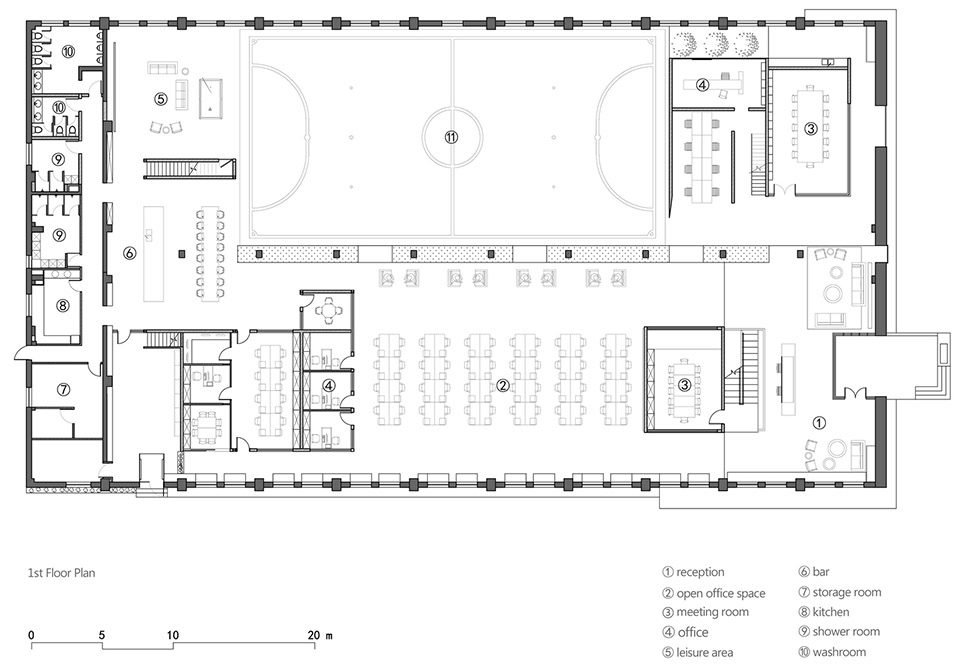
项目地点 :中国、上海
项目业主 :上海易成实业投资有限公司
项目面积 :2,022 平方米
主持建筑师 :钟凌
建筑设计团队:Arnaud ROSSOCELO、万涛、胡颖祺、董锋、陈晓峰
结构设计团队:方向、张茂明
室内设计团队:施望刚、汪可
现场项目经理:张文杰
摄影 :胡颖祺
南京喵熊网络科技有限公司 苏ICP备18050492号-4知末 © 2018—2020 . All photos and trademark graphics are copyrighted by their owners.增值电信业务经营许可证(ICP)苏B2-20201444苏公网安备 32011302321234号
客服
消息
收藏
下载
最近