查看完整案例

收藏

下载
设计团队丨SCD墅创国际设计机构
项目名称丨遁世
项目地点丨河南省郑州市经三路与农科路交汇处金城国际广场五号楼二单元2208
项目面积丨330平方米
设计时间丨2016年06月
主创设计丨李信儒
参与设计丨沈子轩、秦经杭、孙永福、黄德宇
主要材料丨金丝楠木、大理石地砖、壁纸、乳胶漆、木饰面
遁世:人生步履匆匆,拂去繁华之后,拥挤、争斗、虚伪、浮华的年代,需要一片遁世桃源。这样一个钢铁丛林中的遁世桃源或许可以使我们安静下来,修养身心,给未来更多的可能。人赋予空间价值,空间也因人的意志而存在。“遁世”本案,为三层复式旧房改造,一层为办公区间,二三层则为会所。
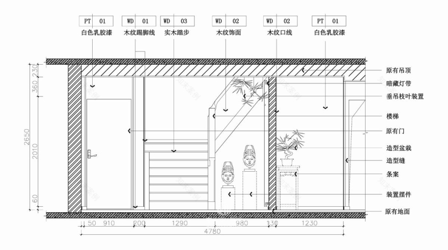
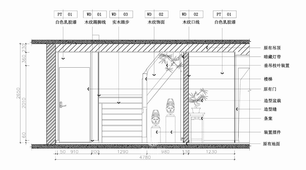
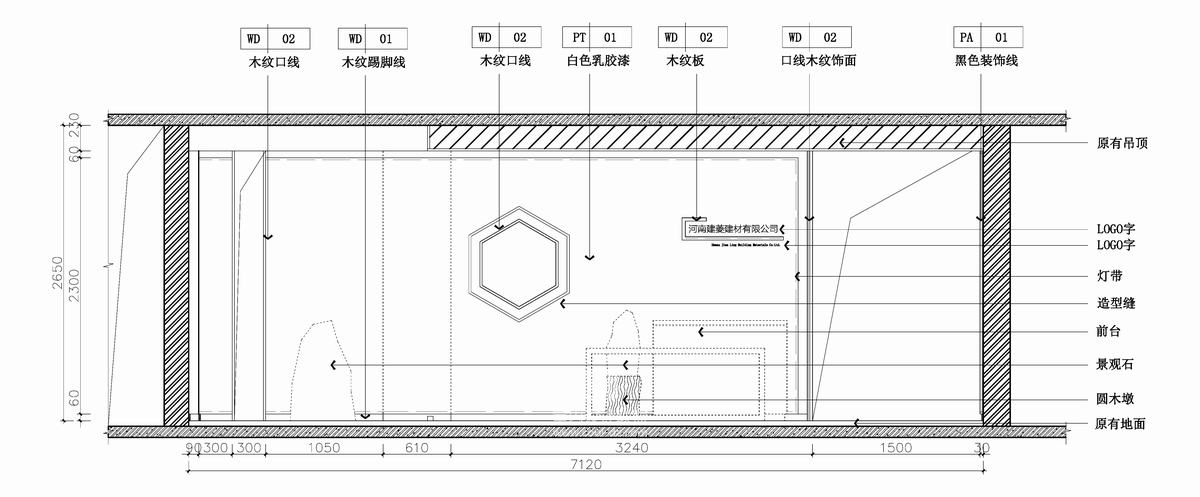
轻遮木门,与世隔绝,推门而入即见清幽隐世之感,留白六棱,赋予空间灵动风声。前台青石木质,树根之上灵石破洞而出,赋予空间生命。右侧山水壁画,笔墨于墙写意而书,不在于形,而在其意,途径山水,方能入室。山水尽处,便是一片朱红,一株迎客松,彰显空间的包容好客。左侧楼梯所在,磨掉原有色漆,露出木纹本色,加之灯光辅助,木纹更显自然。渐入内室,青石绿植一脉相承,经理办公室与公共办公区玻璃相隔,使得空间更加开阔明亮。
二楼则为会客之所,简洁的墙面装饰配合浅色壁纸,清明风格的家具形式将金丝楠木衬托的更为优雅。临窗而立,阳光倾洒、书画在侧,其中意趣,不可言喻。扶梯直上,头顶柏叶几枝,高低错落,趣味其中。三层聚餐,休闲之地,室内高歌畅饮,室外绿树葱葱。阳光房中,干泡茶席俨然列好静待佳友,盆景插花静伴其侧。叶落有音,雨落有声,微妙声息,须得静心体会。此间桃园,遁世而立。
李信儒:设计师,墅创国际(郑州)设计机构 创始人,设计总监
机构致力于从事中高端会所,商业空间办公,商业地产精装及度假娱乐项目等定制化设计服务,并于意大利,德国等境外设计机构联合开展项目设计及深化。
从业16多年来在工作期间曾多次参加深圳室内设计师协会举办的各类设计比赛,并多次与香港地区顶尖的设计大师交流学习,积极参与协会组织的深圳地区相关学术论坛。设计作品在《深圳室内设计》 《现代装饰》 《城市家居》 《峰翼家居》 《家园》电视栏目,《西部商报》《华商报》 《陕西房周刊》《师客莱德》《设计汇》《名师联》《ID+C》等杂志收录。在深圳,郑州,西宁,西安等地设计样板间,别墅,会所及文教办公空间,并得到甲方及业主的好评。
2010
年赴欧洲几国学习,在意大利米兰,法国,德国,西班牙,瑞士等国参观学习世界前沿流行家具建材展览,并在德国包豪斯设计学院短暂学习培训。近几年设计作品在日本、迪拜等地进行全球巡展并参与建筑装饰协会组织中国国际空间环境设计学术发布与论坛。
客服
消息
收藏
下载
最近



















