查看完整案例

收藏

下载
哈钦森集团在设立了一个新的研究和创意中心。该工作区由 507 厂房改造而来,位于距巴黎南部两小时车程的 Chalette-sur-Loing,该集团在此拥有历史悠久的厂房等一系列资产。
▼古老的工业景观
▼改造后的建筑外观
Encore Heureux 建筑事务所对这座建筑进行了全面整修,建筑原本的金属结构由古斯塔夫埃菲尔在 1869 年设计建造。507 Fab House是一个集高科技和数字化于一身的建筑,但 Hutchinson 集团希望它能变成一个简单、欢乐、温暖、模块化和独特的。实际是赋予了建筑一个低调的外观,使它能完美地融入周边的工业环境。
▼更新后的建筑保留了原始的钢结构
▼与楼梯扶手集成的滑梯
室内的设计围绕着建筑原本钢结构的木犀草绿色。Encore Heureux 工作室的对建筑外观进行了全面的修复,包括加强了建筑的热性能。项目是一个为多学科的、国际化的团队设计的,强调了创造开放和国际化的空间,其中包含厨房、礼堂、沉浸式的虚拟现实空间,用于培训和娱乐的区域。
▼这一个简单、活泼、温馨并独特的工作场所
小屋是一个多文化共存的空间,其中一个小型的图书馆欢迎所有的员工都带来一些关于他们国家、地区的书籍。在这里也可以找到关于哈钦森集团的历史,包括他们的领导力和创新能力,关于橡胶、厨房、烹饪和建筑的历史。在休息区中,工作人员可以一轻松随意的方式分享他们的工作生活。空间中两种不同类型的家具和长桌鼓励大家进行团队合作。
▼多功能的休息区
“古斯塔夫空间”,这是一个独特的用于多人参与交叉设计的空间。中央的长桌能够像家中的厨房空间一样,员工和客户围坐一团,方便展示集团推出的新产品。同样,这个空间也可以用于举办团队建设活动和会议。
▼用于交叉设计的空间
▼一层的交通空间
三个用于培训、会议的区域可容纳 2 至 40 人,空间中的触屏和模块化家居提供了简单、高效的工作环境。
▼会议室
哈钦森集团的数字展厅提供了几个高科技的工作空间:VR 展示室让所有与会者能够进行项目的讨论和管理,进行实时的高级管理委员会会议;在拥有四块屏幕的研究室,工作人员可以给客户提供沉浸式的 3D 展示效果,用不同的方式呈现集团的工作成果。
▼高科技展示空间
▼3D 效果的展示空间
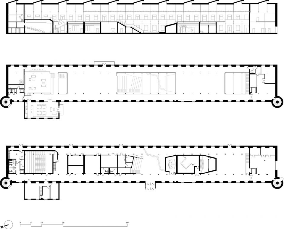
▼总平
▼图纸
客服
消息
收藏
下载
最近



















