查看完整案例

收藏

下载
项目名称:ZWPSTUDIO 曾卫平设计事务所
项目地址: 北京 朝阳
项目面积:1150 平方米
设计公司:ZWPSTUDIO 曾卫平设计事务所
主创设计:曾卫平
设计成员:李占会、何东 、梁全新、
OmidFerdowsian、Alice Gong、任志坤
主要材料:混凝土、镜钢、玻璃、3M膜、木纹铝板、马莱漆
家具品牌:STEELCASE、VITRA、MATSU
摄 影 师:史云峰、曾卫平
ZWP STUDIO 十五年来一直致力于城市商业解决方案,希望在新增设的办公室设计中,利用多元新型材料和现代建筑方式创造出与众不同的空间,让办公室成为有活力、艺术、商业的设计创新实验室。
在新工作场所的确定之初,设计团队就将“艺术、商业、创新”这三个工作室一直践行的关键词作为新办公空间的营造原则。
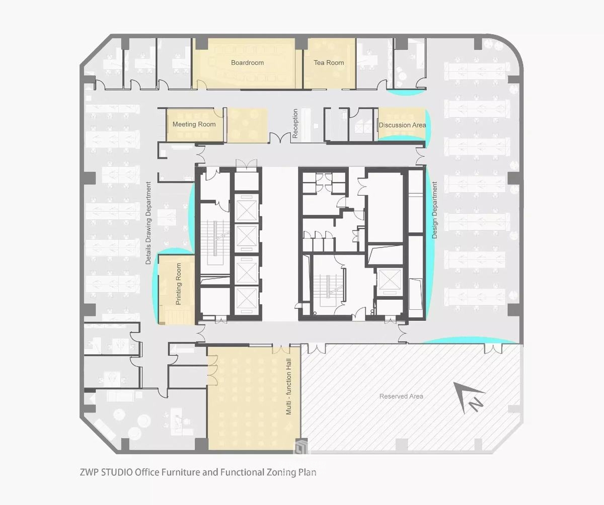
设计是一个需要不断融合每个人的设计智慧,持续沟通与灵感碰撞的过程,因此在空间布局上工作室是一个开放与协作的空间,开放式办公区围绕整个楼层延伸形成半环形,除了设计师的日常6人组团工作区,中间加入了多样工作环境的交流区域,用于不同的协作模式。
“利用质朴的材料表达丰富的情感”是事务所一贯设计创造的材料理念。因此在空间质地上保留了原始建筑的混凝土质地肌理,加入随观看角度变化色彩的幻彩玻璃、参差的原木格栅、灰色镜钢、斑驳的马来漆,强烈的质感语言在接待区空间中穿插出现。实与虚、整体与参差、反射与折射、犹如一场材质的艺术对话。
与各个城市的客户保持随时沟通的视频会议室,采用了最先进的感应触摸屏幕与自动调节会议系统等高科技设备,却又同时保留了原始场地的毛坯柱面,未加修饰的建筑原有结构柱与顶面平滑柔顺的发光膜、镜面不锈钢、灰色马莱漆墙面、温暖天然的天花木质材料形成对比。同样模数的木格栅从接待区一直穿入到会议室,强调空间的完整性。
位于走道边的开放性会议区域提供灵活的会议,协作和讨论空间,使设计师能够根据不同项目调换工作模式。这是一个用于迸发灵感,绘制草图和讨论定稿的合作空间。
工作室白天拥有充足的自然光线,抛光的混凝土地板与幻彩玻璃、镜钢,在每一个角度都形成不同的光影变幻,将工作其中的设计师活动折射成一种流动的艺术行为。
可用来沟通和非正式接待的开放茶水区,加入了金属盒子内镶嵌的绿植,皮质卡座、自由散落垂挂的白炽灯,用更轻松开放的氛围作为设计师们日常放松休憩的共有空间。
坚持在不断实践与创作中学习与分享是事务所一贯的文化与责任,在专门设立的交流中心既有周末下午五点的创意农场的设计分享,也有来自不同城市、国家各界设计师的多元创作展示与心路历程,这里是事务所的思想碰撞与交互的公共性场所。
medusa212 发表于 2017-5-11 23:50
niou999 发表于 2017-5-11 23:21
客服
消息
收藏
下载
最近

















