查看完整案例

收藏

下载
房屋坪数:
145坪 (室内)
设计风格:
现代风格
房屋类型:
工作空间
房屋状况:
图片提供:
橙田室内装修设计工程有限公司
空间格局:
主要建材:
清水模、烤漆钢板、企口板、镀铝锌板
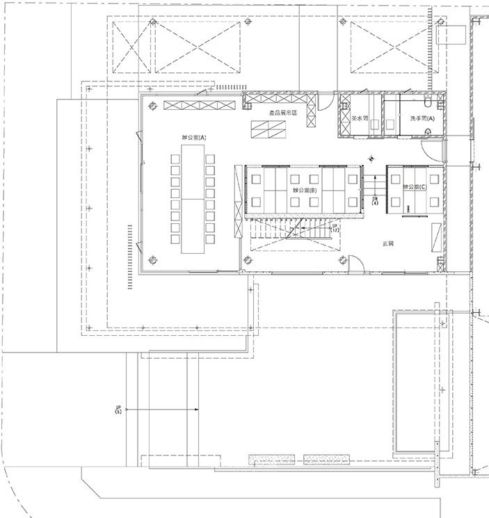
总部办公室紧邻28米道路,以建筑体下方的退缩做为绿带,并利用漂浮的清水模牆抵挡了大量的噪音与汽车炫光等问题,上空的清水模牆引入了适度的天光,昼时可提供室内舒适的光线来源。
于入口创造一处平台,做为进入办公室前的缓衝,偌大的平台提供出入者心情转化的作用,藉此得到安定感。平台的上方是二楼大型阳台,是企业内部员工的生活场域,用餐、聚会、谈笑间皆能与一楼平台产生交流与互动的机会,借此可减少楼层高度所造成的心理负担。
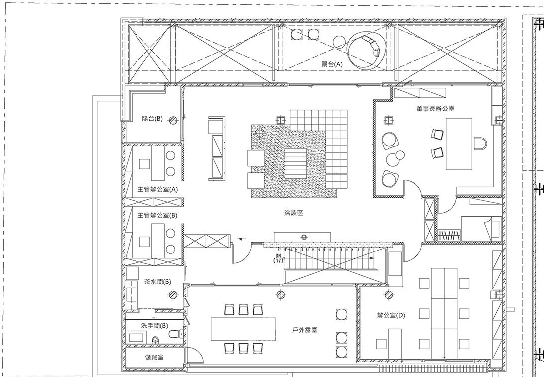
二楼,为维繫员工情感所打造的一处沙发区,与前后阳台结合,内外环境相互对应,成为员工的休閒生活场域,空间裡大量使用木质元素,让空间的使用者能有的放鬆与归属感,借此凝聚员工的感情与向心力。董事长办公室外,由一楼生长上来的墨水树,阿娜地展开了枝叶,在黑色浪板前作画,为原本基地内侧的暗巷,凿出一道充满生机的天光。
客服
消息
收藏
下载
最近
















