查看完整案例

收藏

下载
案例名称 广州市积木网络科技有限公司
作者 李伟栋
设计类型 室内设计
案例所在地 广东 广州市
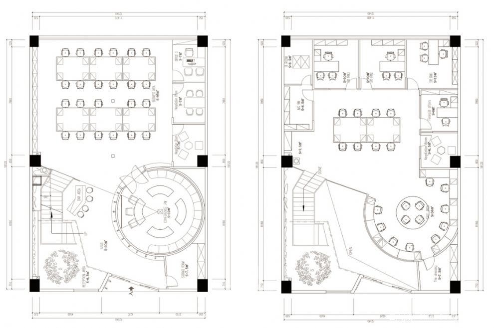
案例面积 420 平方米
详细地址 广州市海珠区杨协成电子商务创意园A座122室
参与设计师 李伟栋
业主名称 广州市积木网络科技
从自然中汲取灵感,将春日的绿意与野趣带入空间。仿真植物、水泥漆地板、黑漆天花、原木造型......简单的材质交织组合出黑夜树林般的空间,让深处现代都市的人们身与心脱离现实的框框架架,回归自然,从心释放能量,让环境改变人们的状态模式,深呼吸,一草一树一乐园。
客服
消息
收藏
下载
最近




















