查看完整案例

收藏

下载
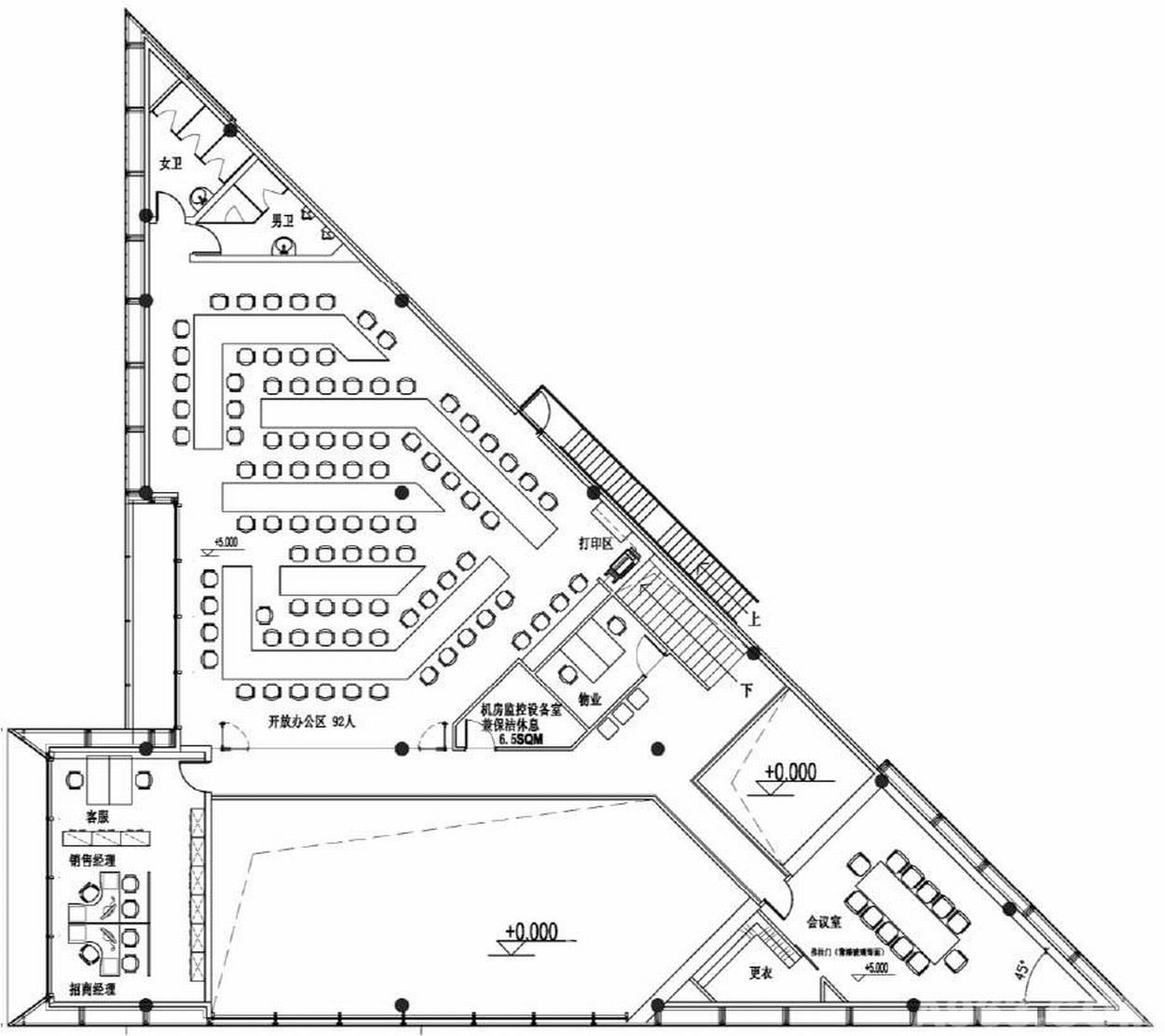
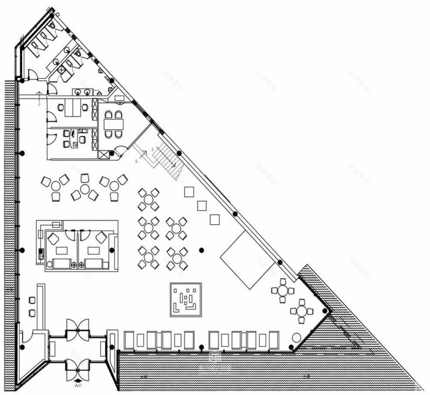
诚盈中心是集售楼和办公为一体的综合类项目。艾迪尔提供了从建筑到室内的整体设计服务。用地是一个等腰直角三角形,建筑在沿主干道退红线后完整地反映了这一地段特征。办公售楼中心由两层组成,一层为销售展示区及洽谈会议区,二层为内部办公区。
建筑主体采用体块削切、虚实对比的造型手法,其外观如一条不规则的连续框筒沿三角形路径立体交错、搭建连接在一起,并通过首层玻璃幕墙及两个锐角的悬挑削切,配以贴近底部的浅水景观处理,呈现了强烈的悬浮感,给人带来鲜明突出的视觉冲击力。
建筑采用了双层皮幕墙系统,内侧为玻璃幕墙,外侧为铁锈色立体镂空铝单挂板。我们根据镂空图形的大小设计了三种规格模数,每一个镂空图形单元均有一边向外折出,形成了强烈的立体观感。这种虚实相间的双皮幕墙不仅带来了鲜明的外观特征,而且将直射的阳光过滤,创造形成了斑驳变化的室内光影效果。
我们将建筑造型语言延伸到了室内空间。进入室内,首层为一处开敞挑高的接待大厅,自然光透过顶部天窗引入室内,使得建筑内外相融,渲染了洁白素净的室内空间氛围。视线尽端的三角形建筑形体连同铁锈色挂板皮肤通过天窗直接穿入室内,由一处轻盈的连桥同二层主体连接起来。我们通过对首层空间的合理分割,在大厅内部分别设置了展示区、开放洽谈区、VIP洽谈区和签约室等,形成了各具特点的不同功能区域。从室内向外看,窗外的景观被镂空挂板重构成了新颖多变的取景框,也形成了新的半透的肌理屏风,给室内带来了丰富的视觉体验。二层空间主要设置为内部办公区和会议区,开放办公区通透敞亮,三角形会议室独具良好的景观视野,透过双皮幕墙的采光形成了丰富的室内光感效果。
客服
消息
收藏
下载
最近














