查看完整案例

收藏

下载
案例名称 方叙设计 办公室 案例投资总额 7 万元
作者 严叶冰 设计是否选用 竣工项目案例
设计类型 室内设计 案例类型 办公空间
案例所在地 福建 漳州市 案例面积 71 平方米
详细地址 福建省漳州市龙江明珠10栋1604
参与设计师 闫诗焓
业主名称 严叶冰
业主联系人 undefined
所用材料品牌 格莱斯仿古砖.麦秸板.欧松板
与同类竞争性物业相比,作品独有的设计策划、市场定位:
东方文化的传达.让空间营造静的气息.让现代人.更多去了解东方的气息.东方的文化.延续传统的精神
把室外与室内结合.让空间更有自然的气息
把方带入空间.运用方形的盒子.划分空间区域.让整个空间更加通透.更有贯穿感
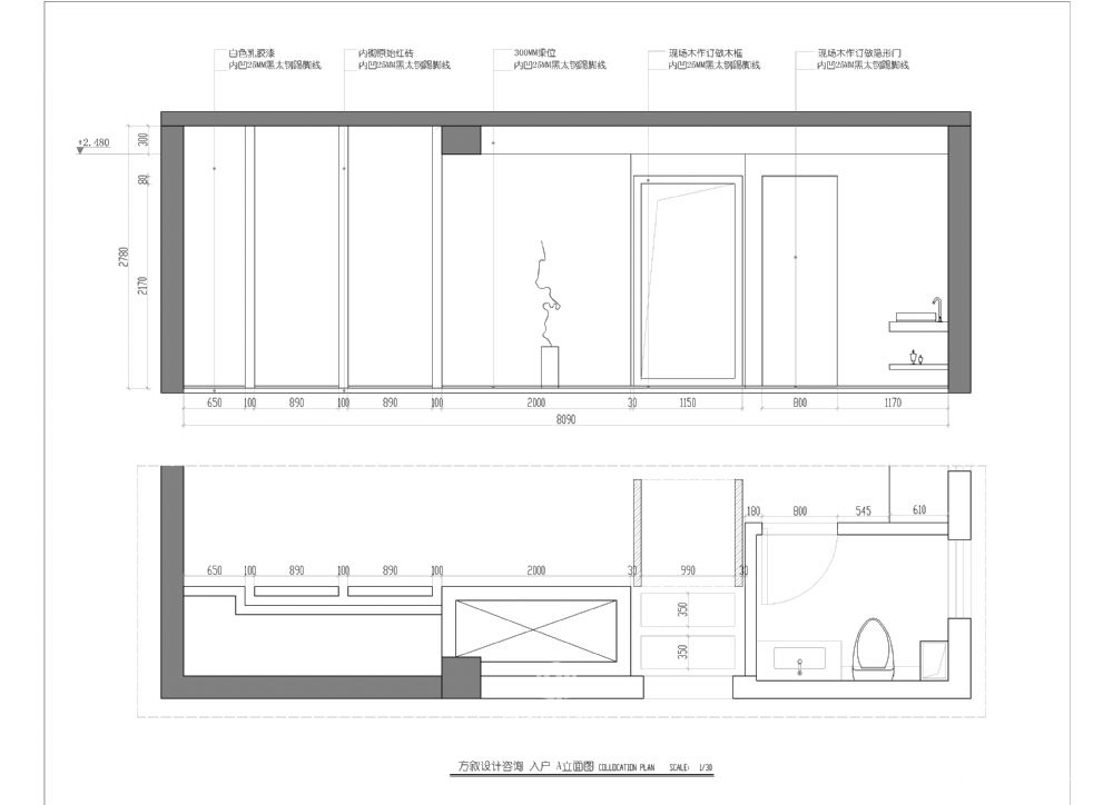
黑色仿古砖.与纯白的墙面成了.显明对比.运用麦秸板.让整个空间更贴近自然.
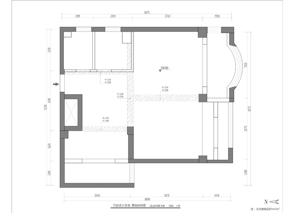
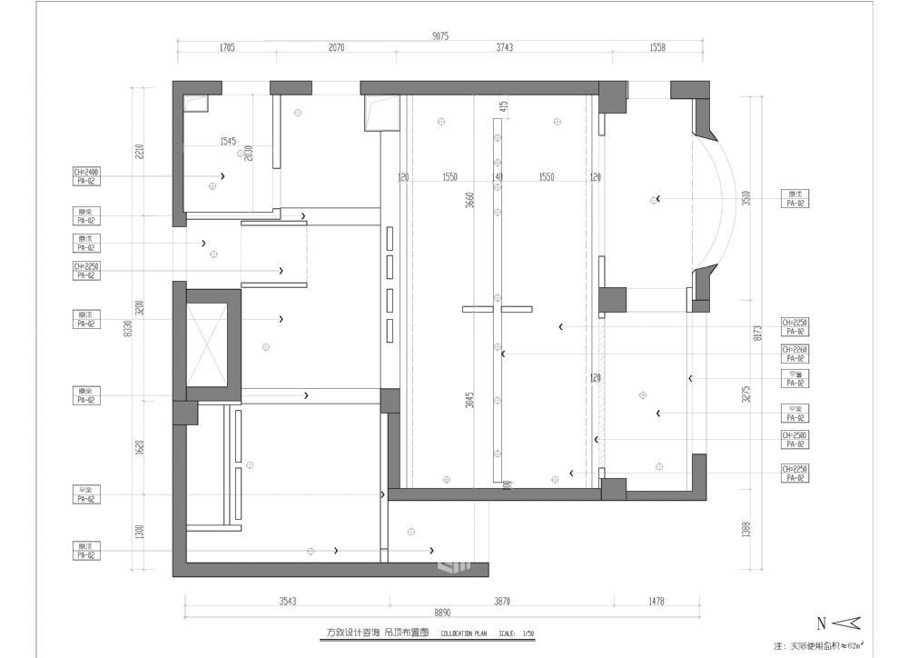
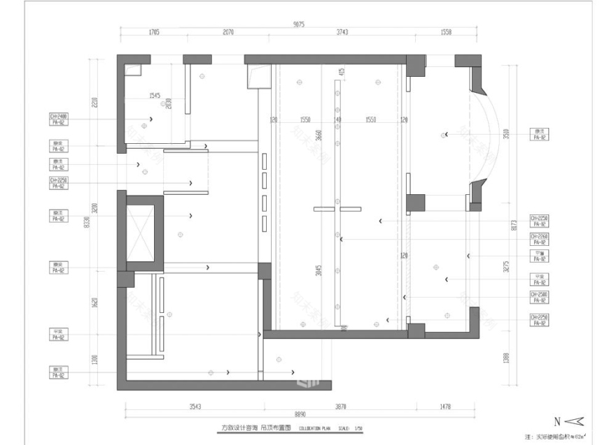
方形的元素,加人盒子的手法区分整个空间,用阵列去摆布空间,人常说做人要方,做事就是要循环规矩,遵循法则“没有规矩不成方圆”其实做空间也是一样,我把“方”带人了空间.我保留了,空间原有的结构,有规律的,从进门的大方形盒子,在把空间分成三大板块,用方形的盒子,划分每个区域.本身空间面积不大,我运用了屏风,灯光,竹子,去延伸空间,我想每走一步都是静下心来,循环的把空间做成一方,一静,一叙的规律.
客服
消息
收藏
下载
最近




















