查看完整案例

收藏

下载
上海的百年老路有数条,每一条都独具韵味,复兴中路便是其中之一。复兴中路东起西藏南路,西至淮海中路,不算很长,但城市节奏、文化风格等却大相径庭。中西文化在这里相接相连,思南公馆、花园公寓、伊丽莎白公寓、黑石公寓、克莱门公寓、米丘林公寓等沿路的特色建筑在时代更迭中见证了上海的城市发展。
本案,便坐落于这条历史底蕴深厚的百年老路上,如同复兴中路散发的人文气息,屋主夫妻二人也非常重视生活的品质感和仪式感,他们具有高雅的艺术修养和精神境界,对待生活乐观积极,温柔感性。
// 设计理念
全案设计配置
好的设计是相互成就,在满足功能需求的基础上,屋主非常尊重设计师的理念,全案设计落地,做到了一比一高度还原,或许在变化与永恒之间寻找一种平衡与乐趣,便是男女主人享受当下的生活态度。
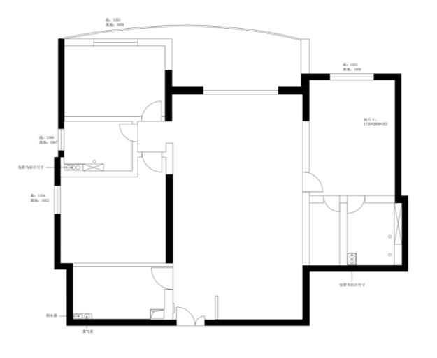
原户型160.2501349㎡的空间,视野通透,入户即可看见阳台,但布局上未做有效划分,沙发和餐厅也未合理利用,占据了全部空间。设计师基于功能性和审美性,将空间布局重组,调整后,每个空间彼此共生又相互独立。
强收纳是屋主的主要需求之一,设计师将原先未充分利用的柜体重新分区规划,实现了收纳空间最大化。主卧与客厅分割处的墙体做了折角设计,延伸了客厅书柜与主卧收纳柜的空间。新增设的玄关、储物间以及客卫干区景观,既便于收纳也是兼具艺术审美的“景观区”。
// 玄关
家不只是一个地方,更是一种感觉,好的氛围才能让人久居,如同穿搭一样,不只是反映生活态度和个性,也间接强化了主人的特色。入户的设计,从某种意义上来说,也证实了这点。
原户型未设置玄关,考虑到屋主鞋子较多,设计师在布局玄关空间时,增加了兼具收纳功能的鞋柜。
绿色背景墙、艺术装饰画、雅致玄关柜,营造出清新舒适的氛围。当忙碌一天回到家中,入户,充满仪式感的“家”的气息扑面而来,精神世界瞬间得到了满足。
// 餐厅
让人倍感舒适的时尚复古餐厅,摒弃传统固化风格,糅合了法式、复古,色彩统一和谐,安静自然。气韵生动的西厨收纳柜、搭配屋主一眼便喜欢上的意大利进口艺术瓷砖,牵起了用餐时的密切互动,餐厅空间是动静结合的氛围。
&Tradition黑胡桃木结合藤编餐椅,复古又舒适,Ligne Roset 黑胡桃木实木厚板餐桌,更加凸显质感。形似透明“苹果”的Verpan 吊灯,内部“苹果核”融入了未来派雕塑设计元素,极具艺术感,恰好与屋主“家”的气质完美契合,柔和的灯光为空间注入了几分暖意。
// 客厅
进入客餐厅,你会发现,这是个非常“正气”的空间,在不着声息的浪漫轻法式氛围中,墙面、线条、灯光有着对称性。全开放的客厅空间,法式风格的浪漫,复古的色彩搭配,简约却精致的线条设计,舒适和惬意在每一处得到体现,丰富又富有细节的层次美。
客餐厅原始户型面积较大,打破固有思维,设计师将多功能公共空间、阳台、家居等进行巧妙结合,客厅往阳台处做了延伸,储物柜巧妙利用立面空间,提供超大收纳空间。艺术感的装饰,不仅能提高家居氛围,又可以点缀空间,展现不一样的魅力。
与浪漫柔和的休闲区相比,定制的木质书柜成为了视觉中心,嵌入墙中,内部通透,旁边是主卧的隐形门,一体化的设计,对称分布,视觉上更加高雅大方。
黑胡桃木皮定制书柜,设计师一直赞不绝口。区别于传统精装房厚实的柜体,屋主偏好于手工制作,工匠之美不止于艺术,更是精神上的追求。
Ligne Roset 灯芯绒质感的TOGO舒适沙发、Ligne Roset 茶几、 艺术与光学结合的Santa & Cole 多立克柱式落地灯等呈现了客厅浪漫柔和的氛围,闲时,慵懒的躺在符合人体功能学设计的沙发上,欣赏着充满艺术感的可移动画镜电视,悠远绵长的意境,蜿蜒附着的艺术饰品引人玩味,遐思不止。生活远不止是烟火,艺术与美近在咫尺。
客厅也能欣赏艺术景观?连接公共空间的客卫干区艺术墙,透出耐人寻味的色调,这里是公共空间的点睛之笔。
客卫做了干湿分离处理,并在内外设置了双台盆,方便儿子女儿两个小孩洗漱。
半墙的设计,充满生机的绿色墙面,意大利艺术瓷砖的点缀,这里,是客厅视角下极具艺术感的独特风景。
阳台融入客厅后,延伸了公共区域空间。阳光充足的午后,享受一书,一茶,一世界。
// 卧室
主卧衣帽间围绕门和梳妆台做了一体化木质框景设计,柜体,满足了强收纳需求,整体规整统一,收纳空间足。
两个独立儿童房也做了强大的储物收纳设计,宽敞的可活动范围以及一体化写字桌,方便小朋友做作业或招待同学。
女儿房局部使用了女儿喜欢的雾霾蓝色点缀,增添一抹活泼感,同时也丰富了整体空间的层次。
富有品味的生活,总能从简单的氛围里提炼出源源不断的新鲜感,一个愉悦的空间、一种随心的生活、一方独享的天地,都在这松弛感的氛围里寻求最合适的表达。
// 户型设计
项目情况|
项目地址丨Address:上海徐汇
面积丨Area:160.2501349㎡
设计单位丨Company:上海示觉室内设计事务所
服务方式丨Service:硬装+软装全案设计服务,主材+软装代购及落地服务
摄影团队 | Photo:ENV恩万建筑摄影
客服
消息
收藏
下载
最近










































