查看完整案例

收藏

下载
本项目由伦敦StokeNewington的一座维多利亚式住宅改造扩建而成,由原建筑缺乏结构完整性,因此,设计仅保留了建筑裸露的结构。由于平面有着较大的进深,为了将自然光线引入到建筑中部,保留部分住宅后院并将其改造为坐落于功能空间之中的天井庭院的想法应运而生,这种设计不仅能为住宅深入引入足够光线,同时也为住宅的前后部分之间创造出通风廊道与视觉连接。
▽改造后的后院立面© Yellow Cloud Studio
原建筑的后部经过扩建,如今能够容纳宽敞的厨房与餐厅区域,流畅的交通空间与面向后花园的飘窗座椅进一步营造出舒适惬意的家庭生活氛围。当橡木制成的大门向一侧敞开时,室外景观渗透到室内,与空间融为一体、成为室内空间的延伸,鼓励着人们走出家门,亲近自然。部分后侧立面向外突出,形成雨棚,同时由立面延伸出来的混凝土平台也形成了一处独特的下沉式座位区,进而为住宅内部创造出一览无余的后院花园景观视野。
▽住宅原状© Yellow Cloud Studio
▽分析图© Yellow Cloud Studio
▽前门© Yellow Cloud Studio
▽玄关© Yellow Cloud Studio
▽格栅保证了屋内隐私© Yellow Cloud Studio
▽改造后的客厅© Yellow Cloud Studio
▽一层与客厅相连的书房© Yellow Cloud Studio
▽二层书房© Yellow Cloud Studio
一棵日本云杉坐落于庭院之中,成为了空间中的视觉焦点,而长达3.7米的固定玻璃幕墙则形成了自然景观的画框。一面巨大的旋转窗与玻璃门将住宅前部空间以及后部的庭院联系在一起,将夏日的虫鸣与自然的气息连同微风一起引入室内。
▽餐厅与庭院© Yellow Cloud Studio
▽庭院之中的日本云杉© Yellow Cloud Studio
▽餐厅© Yellow Cloud Studio
▽餐厅区壁柜细部© Yellow Cloud Studio
巨大的天窗引入了广阔的天空视野,同时让明媚的自然光线充盈整个空间。厨房区域的设计谨慎而低调,黑色主色调与硬质材料饰面为前方的大理石厨房中岛提供了一幅深邃的背景。橡木制储物空间为这里创造出竖向的空间序列,同时也作为不同区域之间的视觉分隔,定义出多功能区与厨房区。
▽厨房© Yellow Cloud Studio
▽厨房空间沐浴于天窗引入的自然光线之中© Yellow Cloud Studio
▽餐厅与厨房之间的壁橱© Yellow Cloud Studio
▽由餐厅厨房区看后院© Yellow Cloud Studio
▽飘窗座位© Yellow Cloud Studio
▽墙面细部© Yellow Cloud Studio
▽天窗细部© Yellow Cloud Studio
一部特别定制的橡木楼梯将人们引向住宅上部的另外四个楼层,随着建筑的向上发展,空间变得更加专注于成年人的生活模式。位于三层的更衣室有意地选择了更为深沉的色调,显得优雅而大气,屋顶的结构形态暴露于空间之中,其红色的饰面色彩,为这处充满几何美感的空间增添了一丝戏剧性的特点,化妆镜的曲线与飘窗使空间氛围变得更加亲密与女性化。
▽橡木楼梯© Yellow Cloud Studio
▽衣帽间入口© Yellow Cloud Studio
▽衣帽间© Yellow Cloud Studio
顶层的加建部分旨在为主卧室营造出宁静、明亮的私人空间氛围。从地板到天花板的大型固定落地窗成为远景中郁郁葱葱的花园的景观画框,落地窗一侧狭长的侧板则提供了必要的通风渠道。主卧的浴室套间采用了解构的设计手法,并有意识地放置在布局的关键位置,以放大每个元素带来的体验。定制的大理石隔断将洗手池隐藏其后,丰富的石材肌理为卧室提供了一幅美丽的背景画面。存储空间作为浴室区的焦点,由两扇凹槽玻璃滑动门隐藏于内置家具单元中,在关闭时创造出对称之美。
▽主卧室© Yellow Cloud Studio
▽大型固定落地窗成为远景中郁郁葱葱的花园的景观画框© Yellow Cloud Studio
▽定制的大理石隔断将洗手池隐藏其后© Yellow Cloud Studio
▽洗手池© Yellow Cloud Studio
家具单元中同时隐藏了主卧室的入口,以及通往楼梯上方淋浴间的门。为了创造出同一连续空间的视觉印象,两侧均采用了相同的材料处理,横跨整个淋浴间的巨大天窗为空间引入了室外景观与自然光线,当两侧的玻璃门收纳到墙体中时,充足的光线涌入卧室,加深了居住者对外部空间的感知。天窗之下,一处细长的花池贯穿了淋浴间,为室内进一步增添了自然的氛围,卫生间被小心翼翼地隐藏在木材包裹的服务空间之中,将居住者的注意力引向主要空间。
▽左侧为淋浴间© Yellow Cloud Studio
▽入口绿植© Yellow Cloud Studio
▽淋浴间© Yellow Cloud Studio
▽入口区域天窗© Yellow Cloud Studio
材质是整个项目视觉空间导航的关键,柔软的木材与织物肌理同坚硬、耐用的硬质材料元素相遇,垂直线条则在视觉上扩展了空间的高度,彰显出优雅的室内格调。本项目的设计旨在营造出独特的居住体验,合理而系统的空间布局为室内梳理出流畅的交通流线,进而为这栋老住宅创造出清新、明亮的全新空间氛围。自然光线成为设计的核心元素,而室外景观则成为室内永恒的视觉焦点。材料的精心选择进一步完善了整个设计概念,并通过重复的元素和视觉线条将所有空间与景观微妙地联系起来。
▽浴室© Yellow Cloud Studio
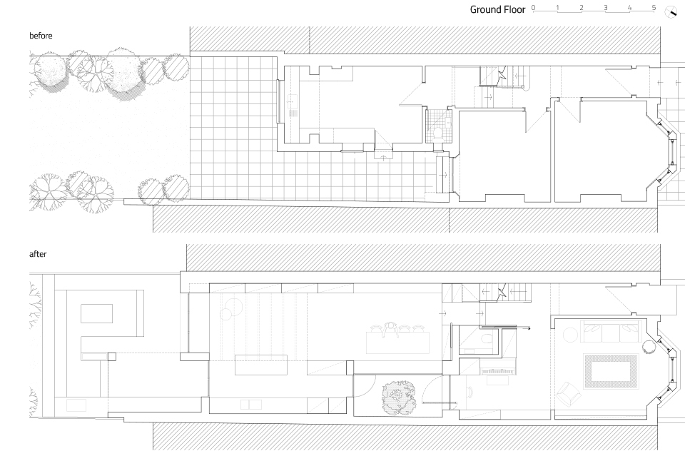
▽底层改造前后平面图© Yellow Cloud Studio
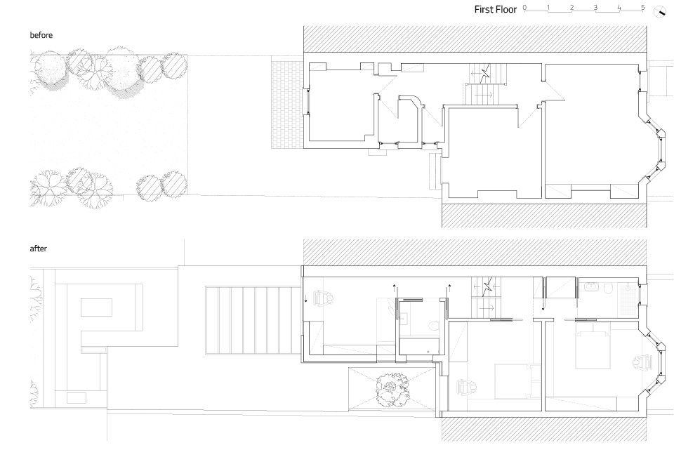
▽二层改造前后平面图© Yellow Cloud Studio
▽三层改造前后平面图© Yellow Cloud Studio
▽四层改造前后平面图© Yellow Cloud Studio
▽改造前后立面图© Yellow Cloud Studio
▽改造前后剖面图© Yellow Cloud Studio
客服
消息
收藏
下载
最近



























































