查看完整案例

收藏

下载
克里亚瑜伽普拉提希望创造一个可以拥抱光、让身心舒展的空间。项目所在的街道绿树成荫,阳光与绿荫一同映入窗口成为最宝贵的风景。我们通过大大小小的“窗口”来引入光、创造光、锁定光。a
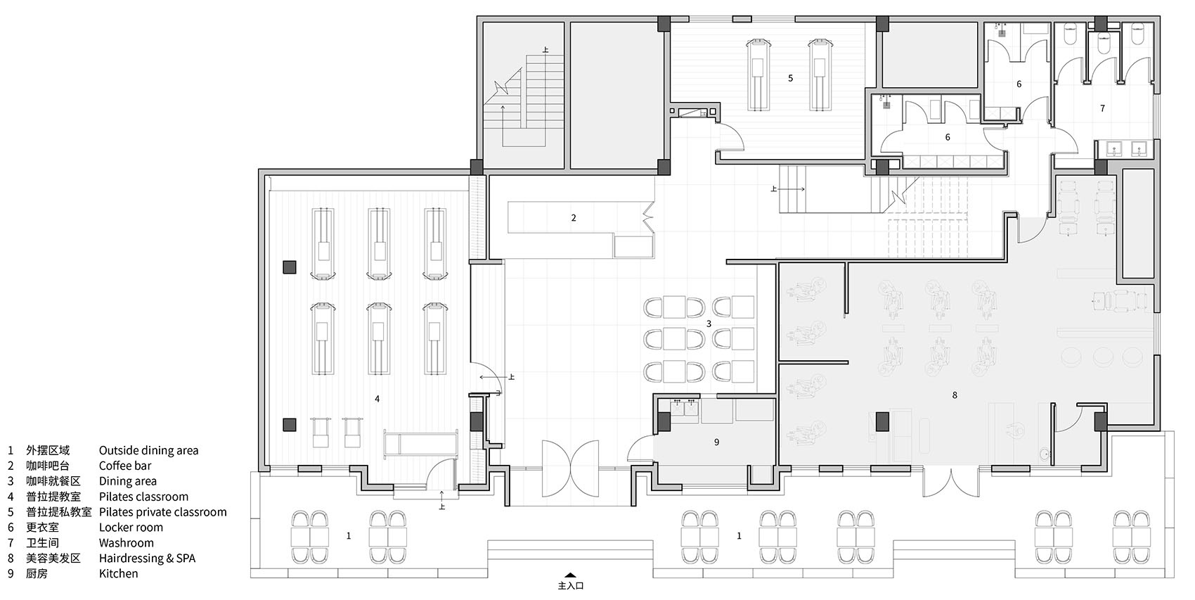
项目毗邻上海亚力山大健身馆金桥店,是健身馆的美体分支。与健身房充满荷尔蒙和多巴胺的外向型吸引力相比,在克里亚瑜伽普拉提我们更希望人们可以放松身心、向内探索,“纯粹”成为空间的关键词。一楼以纯白色调为主,入口用一个突出建筑的白色窗口强调,大厅兼具接待与咖啡吧的功能,咖啡吧置于一个矩形的灯膜下方,吸引人进入。
▼一楼大厅
▼一楼咖啡区
普拉提教室位于咖啡吧左侧,入口同样是一个发光的矩形框,与空间的主入口相呼应。教室内光线充足,PC板后置灯光形成的背景墙让室内的光线更加柔和,为练习者营造出一个纯白、舒适、温暖的空间。
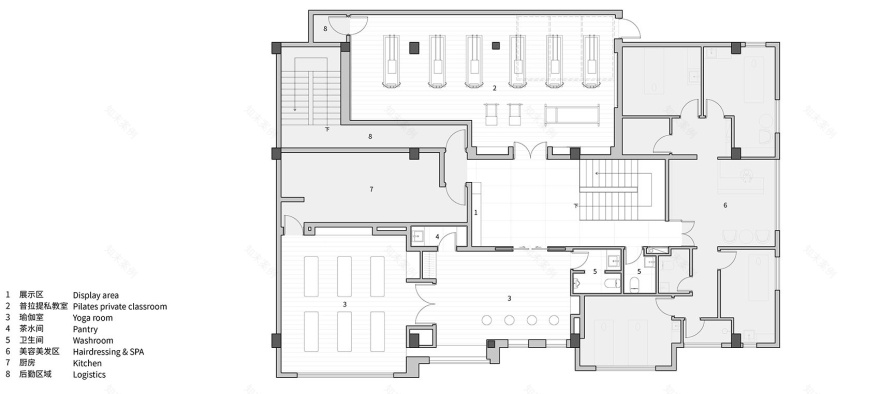
白色楼梯通往二楼,空间色调在到达二楼的瞬间转换成柔和的米色。我们通过不同的灯光色温、饰面材质的变化创造出这种微妙色调的转换,让人舒适又惊喜地进入一个更加静谧的世界。
二楼空间更为私密,作为普拉提私教室和瑜伽室。项目所在的大楼是一个建成多年的欧式建筑,原建筑的二层有复杂的屋顶结构,部分为坡屋顶,部分为拱形屋顶,部分又具备天窗。我们借助屋顶的形态,在室内创造出丰富的空间。
普拉提私教室内我们用极简的手法完整保留并强调了天窗,天窗让练习者时常沐浴在阳光中。在教室的另一端,我们又利用屋顶的坡度创造出第二个高耸的“光窗”,向上拔高的空间赋予练习以神圣感。
▼二层普拉提私教天窗空间
▼二层普拉提私教光窗空间
▼光窗细节
瑜伽室分内外两间,外间受屋顶造型影响层高相对较矮,我们完整保留了原始低矮的黑色钢窗,阳光透过室外街道上郁郁葱葱的绿树映入室内,绿色摇曳,光影婆娑,瑜伽者可以临窗而坐,在坡屋顶下静心冥想。在内屋,阳光透过巨大的钢窗洒满室内,挑高的拱形屋顶下空间愈发开敞。在这种空间的明暗、开合中,练习者的身心得到充分地放松。
▼二层瑜伽冥想室
▼二层瑜伽练习室
回到街道,透过这些我们精心保留、改造的窗口,室内的纯白与柔光也成为街道的风景,景致相互渗透,室外熙熙攘攘,室内温婉静谧,向外是繁华的吸引,向内是自我的探索。唯有光,是这个世界最美的馈赠。
▼一层二层练习空间分析
▼一层平面
▼二层平面
业主:上海心伽体育发展有限公司
设计方:UN-GROUP v
项目地点:上海市浦东新区枣庄路479号
建筑面积:500㎡
施工图:上海呈煜空间设计有限公司
施工单位:上海戎晨装饰
灯光顾问:陈樱鹦
摄影:刘松恺
项目设计:2023年4月-7月
施工完成:2023年11月
客服
消息
收藏
下载
最近


































