查看完整案例

收藏

下载
从一个未被善用的街角,到一家与众不同的酒吧
Sage Bar 位处一个繁华的街区,大型商业建筑与简朴的住宅楼宇参杂却也融洽。它隐身在WIFC商场的角落,与进入停车场的坡道平行,顾客们需要转身越过一条狭窄的小巷才能抵达酒吧。
设计师利用这种“可疑”的进入方式,创造了一种与繁华街区形成对比的专属且具隐私的氛围。 通道的尽头,帆布篷的遮蔽下随意摆放的几套桌椅、和一条与现有花槽结合的不锈钢长凳,在玻璃塔楼的围绕下,形成一个都市绿洲,在顾客造访时,立即令人放松心智。
一波波别致的观赏席
--
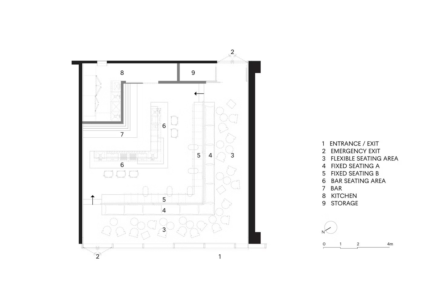
穿越进入室内,单扇推拉门开辟了一个拥有强烈视觉张力的向内导向空间。 层层L形空间的尖角指向入口,将顾客的注意力沿着方形布局的对角线向内延伸。 顾客则以一个对称的方式沿着尖角的两侧进入室内。 坐在定制直角长椅上的顾客在柔和的墙壁和玻璃的映衬下阅览过往的人潮。
层层递进的布局,像波浪般蔓延,自然形成了容纳不同社交氛围的空间。 最外/低层以一个下沉座位的模式为基础,宽敞舒适的座位与流动的人群使外环充满活力。 从L型动线的两端迈入中层空间,定制直角长椅的座位转向吧台,窃窃私语之余,同时间接享受调酒吧台周围的气氛。吧台前的升高座位拥有观赏调酒的最佳视角,虽然位于空间的最高的聚焦点,但顾客们背对着主空间动线,还可自在地与调酒师互动。
每个层次的阶梯状拱顶,收缩了该区域的空间体积,并随着层层空间的凝聚,环境氛围也渐变私密。如此自然的氛围分区和切割,让顾客们可依照社交需求入座,也形成了一幅有趣的风景。
透着微光的草本聚焦
--
现浇水磨石的地形构成了一个流畅和平衡的布局。 每个拱顶都与一个环层相吻合,囊括了它的体量,也包容了它的光线和声音反射。 阶梯状的拱顶与下方L型空间相呼应,并仔细控制’洗墙灯’的角度,使其在拱顶上形成独特的阴影。 拱顶自有的椭圆轮廓与划分空间的直线条形成对比,并使之变得柔和。
在入口的正对角,酒吧后方的尖角以镜面装饰的方 式,将空间感无限延伸。它的反影给予了从天花板上垂下的植物(几乎碰触到酒瓶)特有的丰富感,并在这个角落,点亮了Sage Bar的存在。温和的大地色彩与材质,体现在藤色质感涂料墙面、橄榄绿的椅子、和灰色天鹅绒软包之间,如毛茸茸的鼠尾草,串联起空间细节与Sage Bar的特色植物酒单,成就了一个体现品牌与自然之间别致关系的城市绿洲。
客服
消息
收藏
下载
最近















