查看完整案例

收藏

下载
场地 Site
本项目坐落于北京 Mix 岛西西里村主楼二层,原建筑条件是挑空及涵盖夹层的大空间。空间设计上,“取形于自然”的理念,划分多个就餐区域,形成一个个雨林小部落,建立与西西里村度假风相呼应的热带风格酒吧。
窗外·半开放
Outside the window · semi -open
原本三面朝外的区域,从围合的角度,西露台最重要,剩下的南面东面重要性递减,被打造为不同空间就餐区。三面露天开窗引入自然天光作为空间的主线,一进门左手面对西西里村,是露天开放式室外就餐区,打开房顶的遮拦掩盖,露台一半为三座形态不同的围合上升式卡座,绿植环绕,一半放空,开拓空间,备餐台位于隔断区中央,绿植根据视线划分层次,减少外部直接干扰,上升式卡座式划分人群区域,但都可以欣赏到周围的景色和西西里村度假“海景”,推开折窗,内外相融,折叠门外落座区外是大片绿茵,相较其他区域更为宁静,在不影响结构功能的情况下,最大化开窗,使人在室内能感到与室外自然的交流;面对公路一侧就餐区,借助窗户的格栅,让自然光渗透进内部。三种不同面对室外的设计手法,顾客都可以随时感知户外的变化。
▼重要节点示意图
▼屋顶结构轴测
▼窗边就餐区
▼窗边景观
白盒子 White box 原来是大斜坡的屋顶,如果按照原来的形状效果,屋顶势必被平面化,也不能与内部空间有机结合,我们以退为进在屋顶向外挑出一个白色盒子,尖形的屋顶体量被削去了一角,是二楼夹层向外的延伸,延长了内部空间的长度,打破沉闷厚重的尖形屋顶。麻雀虽小五脏俱全,小盒子的内部是私密包厢空间,围绕盒子构造布置家具,向酒馆内侧开长条格栅窗,站在小型阶梯可以顶部眺望远方。
▼楼梯与夹层体块
▼通向包厢的折线几何感楼梯
▼私密就餐区包厢内部
▼私密就餐区包厢内部夜景
▼吧台旁的玻璃透明酒柜,顾客与工作人员均可从不同方向进入
▼隐藏在水泥盒子里的水电机器,
▼装饰性酒柜,丰富立面展示设计
▼酒柜细部
热带雨林
Rainforest
空间座位动线的划分是整个酒吧设计的重点,整体分为吧台、露台、中心落座区与包厢等四大部分,以方形流线为中心主动线,设计师思考各个小空间场所最适化的尺度,内部切分出多个独立空间的就餐区,将不同用餐空间的场景进行串联,类似于捉迷藏的设定,顾客可到访位于不同小空间内,感受不一样内容。
▼酒吧入口处廊道,初极狭,才通人,复行数十步,豁然开朗。
横向设计上,以圆形卡座区为最高点向外部空间依次降低,其他的剩余空间作为零散落座区。我们把多个空间如围合圆形卡座、不规则散客区、角落卡座、私密包厢区等空间的关联性及私密性通过大量绿植和裸露的石材木制家具隔断等进行模糊界定,隔断的概念弱化,封而不闭,隔中有通,保证空间和光线的通透性与拓展性。竖向设计上,在考虑留下尖顶式屋顶的挑空夹层大空间后,利用本身的高低差,保留一部分夹层空间,对梁加固,规范设计保证安全性,改造为木质包裹的私密包厢,客人在登上包厢后通过隔窗也可环绕俯瞰下方。从一层公共多空间到二楼私密包厢,层层递进。运用了见树不见林的手法,让空间充满婉转、抽象、好奇,融入雨林,让观景者本身亦为景,亦使自己成为景的一部分。
▼内部就餐区
▼环绕围合卡座
新自然
New nature
酒吧内以丰富的自然元素为特点,植被赋予生命,石头赋予力量。屋顶和灯光的形状和设计灵感来自充满异域风情亚热带的传统建筑,从主楼外部楼梯进入酒吧内部,可见屋顶通过木结构的连接,传统的藤条编织手艺与灯条结合,具备半透明性和“轻”的状态,便捷地固定在原建筑的结构上,从而大大降低了建造的成本和时间。通高大厅中央由裸露的钢檩条支撑的木制梁依靠撑起,巨柱在垂直向度上暗示结构构件的受力和空间在高度上的方向感。中部隔断以大量高低不一层次分明的绿植和石材肌理打造,梁柱保留原始肌理裸露感,维持了建筑原有的特点;灯条贴于地面,起到引导作用,地面使用石材与木地板的结合,不同的铺装对应不同的动线和空间使用区域。这些元素共同营造沉浸式亚热带风情,置身于原始茂密的雨林中,这为顾客带来独特而难忘的用餐体验。
▼屋顶夜晚大面积藤条编织和灯条结合
▼植被环绕用餐区域
结语
Conclusion
室内自然场景下的大体量挑高空间,更强调空间的场域,体感的划分,在高密度的城市环境中提供接近于原生自然的舒适体验,我们希望传递与自然共生的理念。
▼楼梯上俯视内部白天与夜晚对比
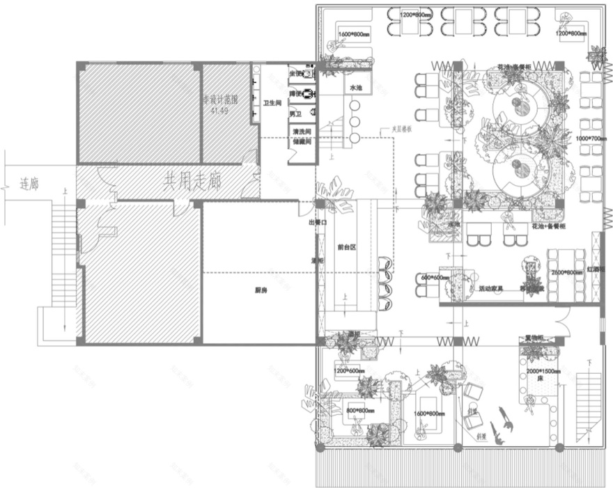
▼二层平面图
▼夹层平面图
▼项目原址
项目名称:The Bond by hide&seek
设计公司:DAGA Architects 大观建筑设计
客户:hide&seek 北京换个地方躲猫猫餐饮管理有限公司
设计团队:申江海,张龙潇,胡芳婷,张贝
项目类型:室内设计
建筑面积:270 平方米
设计时间:2023.03-2022.05
建造时间:2023.05-2023.07
项目摄影:UK Studio
撰文:胡璐扬
客服
消息
收藏
下载
最近
































