查看完整案例

收藏

下载
KiKi建筑设计事务所在北京完成了一所融合“传统与现代”的住宅,它将屋主的古典收藏爱好,与符合当代居住习惯的设计理念相结合,通过重新规划和调整房子的结构、动线、材质、光影,兼容并蓄的展现了生活中的“仪式感”与“包容性”,以及空间与陈设之间的平衡关系。
▽项目概览© 湛影工作室
大量的金丝楠木家具藏品,将会成为空间里的最终主角。而这个命题,正是最初接到设计委托时,KiKi建筑设计事务所面临的最大挑战。一方面,房子原本的布局缺少通透感,存在采光缺陷。另一方面,众所周知,楠木,是中国明清时期备受青睐的建筑、家具材料,而金丝楠木因其独有的质地,更是被皇室运用在北京故宫的太和殿、文渊阁等宫殿中。当这种特性鲜明,且体量较大的元素出现在现代生活里,往往容易将有限的空间“淹没”;此外,伴随而来的不属于现代的制式、尺度和装饰审美,也会带来跨越时间感的“矛盾”。
▽改造前©KiKi建筑设计事务所
整个住宅涵盖了前后庭院、地下1层及地上3层空间。设计的重心围绕一层展开,它是主人日常停留最久的区域,用于会客和起居,包括了厅堂、茶室、餐厅、厨房、户外庭院等。一层的主题被设定为“楠木与现代的共存”,以色调、光线、材料作为切入点,调和楠木家具和环境的关系。空间里大量使用了黑、白、灰三色,并分别对应于“传统仪式”、“现代简约”、“自然过渡”的概念。
▽整个住宅涵盖了前后庭院、地下1层及地上3层空间© 湛影工作室
▽露台与庭院© 湛影工作室
步入玄关,建筑师通过改变房屋结构,营造出“天井”的概念。玄关上方原本的洗手间区域被移除,制造出一个5米的挑空,将二楼的光线直接引向一楼。同时,通往厅堂的一侧,采用黑框玻璃推拉门,作为一个“过渡介质”,开启即将到来的“深色厅堂”。材料上,灰色水磨石地面,起到与户外衔接的作用;而弧形造型墙,则柔化了光影,并带来韵律感,与格栅储物柜、推拉门形成连贯的呼应。
▽玄关© 湛影工作室
▽玄关引入“天井”概念© 湛影工作室
▽由客厅看玄关© 湛影工作室
推门而入,深色的厅堂给人以肃穆、庄重的感受,它的形式源于中国传统建筑里的“中堂”。倚墙而设的金丝楠木条案、书画作品,很好的保留了古风韵味;有意思的是,旁边斜放的软榻,则打破了四平八稳的布局,以及传统观念里的“对称性”,传递出更贴近现代生活的轻松感。
▽客厅© 湛影工作室
▽深色的厅堂给人以肃穆、庄重的感受© 湛影工作室
▽古朴楠木家具与现代空间氛围共存© 湛影工作室
与厅堂相邻的餐厅,拥有来自茶室、厨房的双面采光,更加敞亮,这里延续了明快的设计风格。家具陈设从金丝楠木材料特点入手,选择简洁素雅的形式,突出木料绸缎般的光泽和纹理。例如定制的餐边柜,借由梳背门扇、嵌入式的结构,弱化了体量感,营造具有呼吸感的状态。餐厅对面,与院落相通的半开放式的厨房,整体采用灰色调,所有功能与操作区贴墙设立,最大限度保持光与空气的流通。临窗的立面被充分利用,悬吊式的置物架,既能满足收纳,也保留了光线的穿透力。
▽与院落相通的半开放式的厨房© 湛影工作室
▽厨房内部© 湛影工作室
一层深处,与庭院相连的玻璃屋,是主人最喜爱的茶室。它由铝板顶面与玻璃隔断构成,强调留白、悬浮与延伸感。室内的布局,空灵且飘渺,设计师借助家具陈设,将人的视觉重心由中央引至四周,虚实对比下,时间的概念仿佛消失,取而代之的是一场精神的对话;室外的植物景观,在白色围墙的映衬下,如同屏风画卷般,可观四季之美。作为以茶会友的附属空间,这里充分体现了自由意趣。穿过茶室,庭院的设计又回归于极简,通过结构改造实现了下沉式的露台、旋转式的地下通道,令户外空间更加立体,富有层次感与连贯性。庭院中的地面、台阶、围墙都被统一在温润的白色背景之下,也在无形中回应了室内的空间风格,将住宅的设计理念延续贯通。
▽与庭院相连的玻璃屋茶室© 湛影工作室
住宅中的楼梯厅,结合上、下动线,将共计四层的空间有序串连。悬浮踏步、一片式扶手、丝丝条纹的造型墙,营造出温暖的包裹感。光线被周围的材质“软化”,影子也变得温柔起来,为通往书房、卧室等更私人化的休息区,铺陈出沉静温馨的氛围。值得一提的是,原本难以利用的尖顶阁楼,如今被改造成了可以冥想、抚琴、品香的小型休息室。借助倾斜的房梁结构与白色风格,表达纯粹、纯净的精神世界。
▽楼梯间© 湛影工作室
▽楼梯间细部© 湛影工作室
《博物要览》中曾记载:“金丝楠出川涧中,木纹有金丝,材质细密,松软,色黄褐微绿,向明视之,有波浪形木纹,横竖金丝,烁烁可爱。”这种淡雅幽香、结构细密的木材,与一所被精心设计过的房子异曲同工——层层递进、一气呵成的设计逻辑,造就了住宅稳固的“内芯”,而细腻精妙的装饰与陈设,“千丝万缕”的呼应设计,则塑造了优美的“外表”,在悠长的岁月里,承载烁烁可爱的生活。
▽阁楼被改造为用于冥想、抚琴、品香的小型休息室© 湛影工作室
▽地下层平面图©KiKi建筑设计事务所
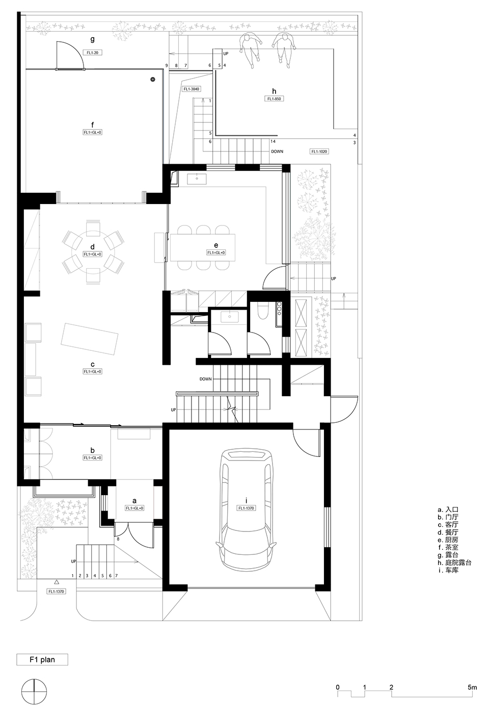
▽一层平面图©KiKi建筑设计事务所
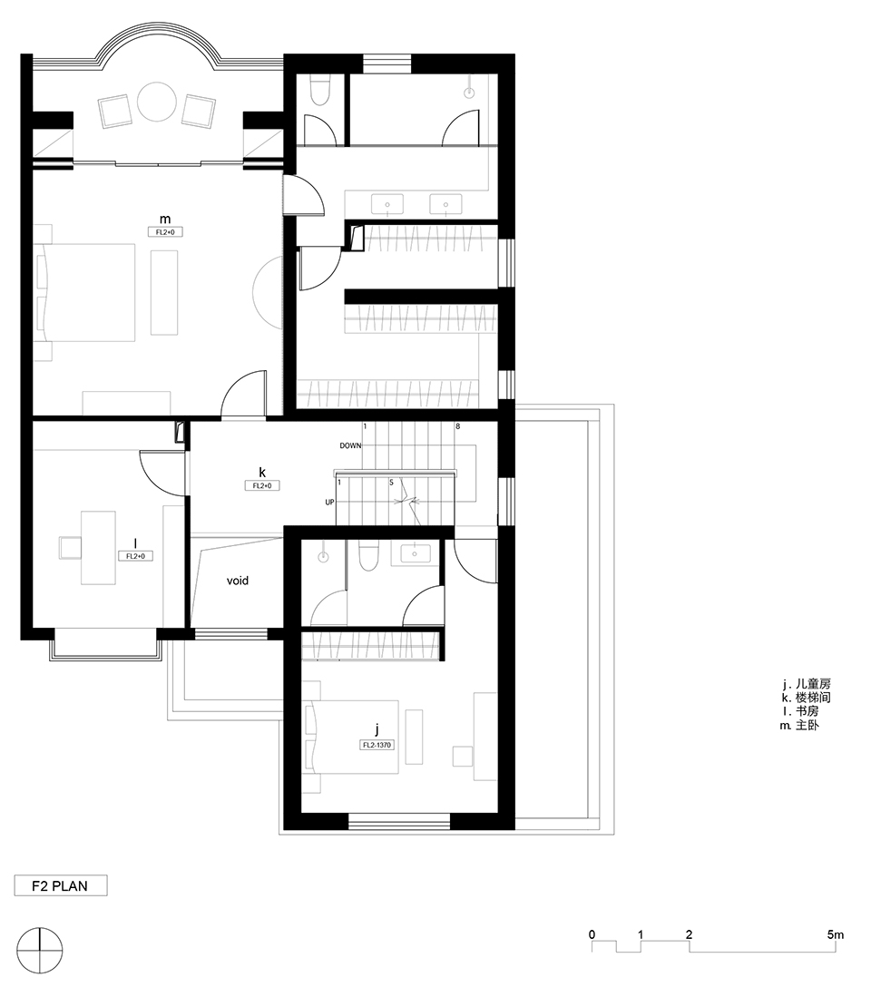
▽二层平面图©KiKi建筑设计事务所
▽阁楼平面图©KiKi建筑设计事务所
▽改造前后局部剖面图©KiKi建筑设计事务所
项目名称:衔古筑新
项目位置:中国北京
项目类型:住宅
设计公司:KiKi建筑设计事务所
主持设计师:关佳彦
设计团队:穐吉彩加,王天苹
植物设计:荒野造景
用地面积:120.2501349㎡
建筑面积:450.2501349㎡
设计周期:2021.07.01 –2021.12.01
施工周期:2021.12.01–2022.12.01
材料与品牌:微水泥-意大利Gobbetto(高钡特)/ 地砖-Terrazzo / 吊顶-铝板/ 橱柜-TJM 日本全屋定制
摄影:湛影工作室
客服
消息
收藏
下载
最近

































