查看完整案例

收藏

下载

翻译
Firm: ARQUITECTONICA.ESTUDIO
Type: Transport + Infrastructure › Bus
STATUS: Built
YEAR: 2020
SIZE: 1,000,000 +
BUDGET: Undisclosed
TERMINAL METROPOLITANA EL ALTO (TMEA)
El Alto se funda como ciudad, hace 37 años, carente de infraestructura de servicios y equipamientos. Su población, conformada por migrantes de comunidades altiplánicas, ha habitado al margen de políticas de desarrollo urbano, haciéndolos dependientes de la ciudad de La Paz.
El acelerado crecimiento demográfico de los últimos 20 años ha evidenciado el estancamiento en su desarrollo y habitabilidad urbana, motivando así a juntas vecinales, representantes del millón de habitantes alteños, a demandar condiciones dignas para vivir y equipamientos que otorguen autonomía a la ciudad, bajo el grito social “El Alto de pie, nunca de rodillas”
En 2007, se plantea la Terminal Metropolitana de buses como un equipamiento ausente y urgente, para poner fin a la improvisada ocupación de varias calles autodenominadas “terminal”; en 2021, finalmente, se materializa esta pieza urbana brindando oportunidades en el territorio para distintos grupos socio espaciales.
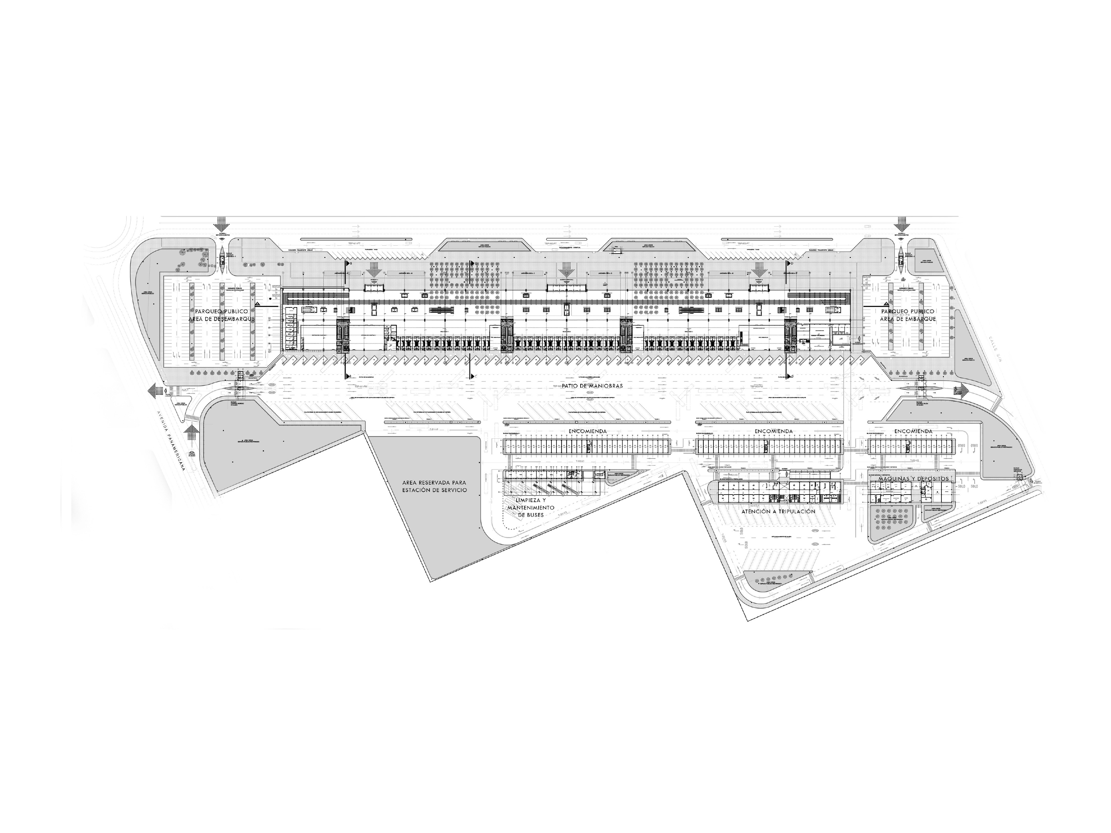
El Complejo Terminal, ubicado entre el Aeropuerto Internacional de El Alto y la red de teleféricos que vincula La Paz y El Alto, resuelve la lógica del transporte terrestre- interdepartamental e internacional- en planta baja de conjunto -nave principal, vías y edificaciones complementarias-. mientras que, a partir del primer nivel, el edificio, aporta a su propia sostenibilidad y promueve la integración entre grupos foráneos y locales, desde un programa de usos diversos: ocio, desarrollo cultural, productivo y medioambiental; logrando además de una terminal, un centro de encuentro.
El emplazamiento del complejo, adaptado a la topografía del lugar, dentro del irregular predio, se acomoda en bandas paralelas, siguiendo una lógica de transición desde espacios y circulaciones peatonales públicas hacia áreas restringidas y de tráfico rodado.
La nave principal se convierte en un “rascasuelos”, de imagen industrial, pero fabricación local artesanal, con 42 ejes transversales y 3 longitudinales. El interior se estructura por cuatro volúmenes de impacto visual -núcleos de servicios e instalaciones.
El 2% de pendiente natural constante, imperceptible para el peatón, se evidencia en el espacio cuando, procesualmente, el edificio integra plataformas a distintos niveles entre ejes C y B. En contraste, entre ejes A y B, hay un vacío presidido por un paseo elevado-pasarela-, que va ganando mayor altura.
La pasarela se desarrolla sobre el hall entre árboles y núcleos de circulación, promueve actividades espontaneas, siendo escenario y palco. Por momentos se vincula a las plataformas, posibilitando un sistema de circulación universal en toda la terminal.
La fachada de 605 metros lineales marca un inicio, con un muro colgado, presenta un desarrollo constante de paños vidriados complementados por dos masas arbóreas de gran impacto, como material de proyecto, que del exterior se extienden al interior y el final volumétrico es marcado por un cuerpo cúbico opaco de mayor altura; acompañando al desarrollo del edificio, la cubierta de aleros marca la línea horizonte.
El paisaje lejano de la Cordillera Nevada impacta desde los interiores del edificio y es motivo de la generación de dos pasarelas mirador que sobresalen a la fachada posterior.
La TMEA propone una alternativa arquitectónica para la ciudad. El Alto de Pie.
客服
消息
收藏
下载
最近





















