查看完整案例

收藏

下载
食酒堂坐落于美丽的滨海城市海口.海口湾,毗邻海边。一栋三层建筑,由Ly设计事务所从建筑外立面改造、到室内及后期配饰整体打造。食酒堂取自道家的“一为始,九为终”这句话,取和谐:“食酒”——意为有始有终,同时“食酒”也表达了对于精酿啤酒的自我理解,和对消费者所表达的一种期望,喝出其中的千滋百味。
▼建筑外观
▼细部
关于酒、美食、时间、邂逅、与你相遇的种种可能,有过各种美好想象。于千万人之中遇见你所要遇见的人,于千万年之中,时间的无涯的荒野里,没有早一步,也没有晚一步,刚巧赶上了,那也没有别的话可说,唯有轻轻地问一声“噢,你也在这里吗?” 引用张爱玲的这句话来体悟再好不过了。
▼立面近景
食酒堂是一家以精酿啤酒为主配以美食为副的酒馆,把对自由、极限、多元、创新的向往,加入啤酒的酿造过程中,是整个设计的核心。建筑外立面由啤酒花和麦芽的元素提炼、御用到外墙形成大小不同的灰色几何体组合、再经过分离重构而成,形成通透的光影效果和别具一格的整体造型。
▼从室外望向首层空间
▼首层空间概览
时光易逝,光阴如梭,总有一些画面会定格在你的大脑记忆力,永远留存,进入食酒堂首先感受的是设计师设计了一系列用清水混凝土和花梨木做成不同高矮的墙体和矮凳造型、这些都可让客人随性座或靠。是的,没有所谓的大门,因为我们把整个墙用钢和玻璃结合起来设计成了一道折叠门,您可自由地行走于室内与室外,站在户外光看这面酒墙,就足以赖不住想喝一杯的冲动,金属面上透亮着材料的质感。述说这段品质的开始,消逝的线条像是抓住了时光流逝的前行轨迹。
▼9米长酒墙用纯铜板打造
9米长酒墙用纯铜板打造,分别装有36个酒头链接到背面的酒库,可以随时喝到各种口味,如花香、花果、香草味、焦糖味、咖啡味、甜中带苦、苦中带香、每一口都有不同滋味层层递进,让人回味无穷。真正爱酒之人,在乎的一定是酒本身的迷人风味,如果你真的爱喝啤酒,总有一款精酿啤酒会成为你的心头好!
▼酒墙细部
墙台在酒光之中,平行渐变在眼前的线条,像是聆听时光里的那些浪漫,你有故事,我有酒。
▼混凝土和金属元素的搭配兼顾了粗犷和细腻之感
延动线进入楼梯间,将精酿的发酵罐陈列展示,可以感受的发酵的过程,和它的奔放,在空气中酝酿,随着光的指引,高冷专属的黑色钢板楼梯在柔黄的灯光氛围下从一楼链接至三楼,展现出空间的活力与热情。当人们通过楼梯间上下穿行的途中,也会不经意间地透过这些建筑洞口一窥室内外风景。在保留了原有建筑水泥面的凿面,加上精细的金属条镶嵌,粗犷又细腻,就如同身体和灵魂在酒精作用下的感受。酒精液体从古铜金到漆黑,泡沫颜色从洁白搭配到棕褐色,香气从果香到烘焙香,味道更是酸甜苦咸样样具备。
▼黑色钢板楼梯在柔黄的灯光氛围下从一楼链接至三楼
▼二层楼梯间细部
空间二楼三楼延续黑、灰色系和铜条金属材质配以皮质沙发,极简,没有一点多余的东西,就像精酿啤酒的本身呈现的方式,自发性的自然,直接的,给当代人一个放松的空间,享受一个原始的状态。透过落地窗感受着椰风海韵,在都市之中,寻觅一份静谧、淡然的状态。
▼二层延续了黑、灰色系和铜条金属材质的搭配
▼透过落地窗感受椰风海韵
▼室外露台
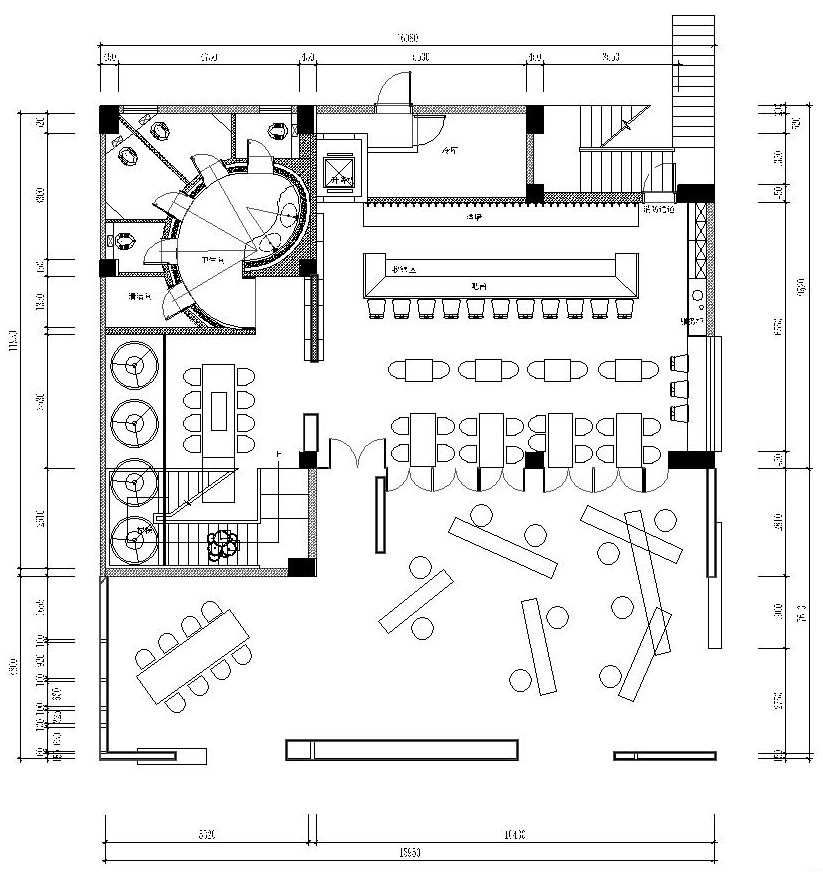
▼首层平面图
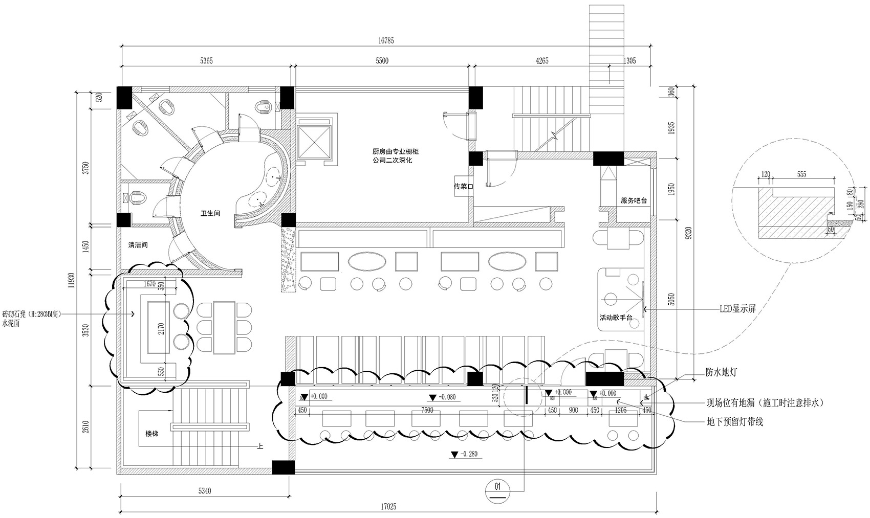
▼二层平面图
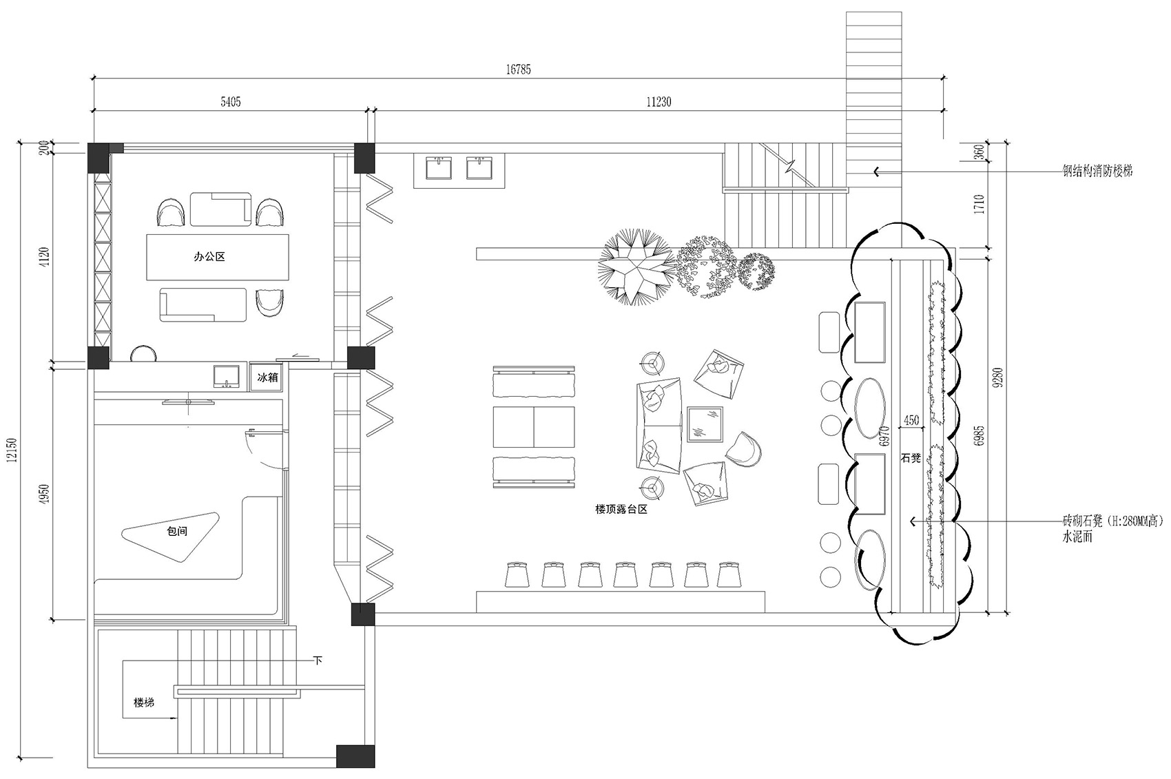
▼三层平面图
▼吧台立面图
▼酒吧立面图
▼外立面墙面铺贴示意
项目名称:海口 食酒堂精酿吧
设计公司:深圳Ly龙丽仁室内装饰设计有限公司
设计团队:龙丽仁 马莉菠 马文涛
面积:576
项目性质:精酿啤酒吧
设计时间:2017年 2月
竣工时间:2017年 10月
摄影公司:深圳市释象万和文化传播有限公司
客服
消息
收藏
下载
最近













































