查看完整案例

收藏

下载
【项目名称】:66号公路
【项目地址】:丹阳市 金鹰国际购物中心6层
【项目面积】:2800平米
【设计风格】:简约后现代
【房屋结构】:商用平层
【设计单位】:大漠设计工作室
【软装陈设】:大漠软装陈设
【主要用材】:铁锈漆、清水混凝土、碳纤维吸音板、钢架、软膜天花、仿古地板、专用地胶...
二月的某一天,一位气场强大的女士来到我们工作室,几句交流后才知道原来是南京英派斯健身的杨总,而其办公地点一直就在我们工作室楼下。英派斯健身在南京有多家分店。本次杨总委托我们设计项目是在丹阳金鹰的新店。项目面积达到2800平,在风格上杨总想要摆脱原有的英派斯的传统印象,简单但也要有特别的风格。本次的设计涉及技术方面很广,用材很多,对于我们来说也是一种新的考验。
在设计的过程中我们以美国的66号公路作为设计的灵感,在空间的顶部以白色的长条灯带环绕全场,提升整个空间的层次感与动感。地面通道以仿公路的专用地胶设计与之呼应,并贯穿整个空间,使得体验者如同真正行驶在66号公路上一样,享受着锻炼的快感与速度的激情。
66号公路——这曾经是一条淘金者通往梦想的道路,以此为设计主题也表达着我们对健美身材和健康身心的理想追求之路——矢志不渝、坚持到底!
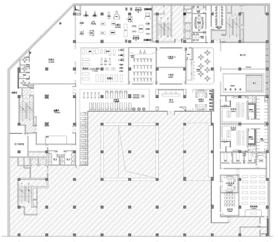
▲ 平面布置图
▲前厅的设计用浅灰色地胶和烤漆钢丝网的天花对比,使整个空间更有层次感,新颖的色彩光影与仿真植物墙的搭配,使得整个前厅显得活力十足,充满生气,而大面积铁锈背景墙的硬朗设计给则给人以运动的力量感。
▲大厅的两边纵深都很广。
▲自由力量区的白色的悬浮灯光吊顶与地面的仿公路专用地胶设计,贯穿全场,呼应主题、交相辉映,动感十足。
▲ 有氧区的吊顶设计灵感来自于动感的电流和生命的DNA螺旋,让跑步机是体验者感受到速度与激情、生命与力量。
▲ 漂浮的灯光吊顶与公路设计,也起到了的空间划分的功能,而黄色的公路线也还有对整个空间的人流起到导向作用。
▲大操房,在室内空间的设计上选用了简练而一致的设计手法,而吊顶的造型灯带既个性化又使得整个空间明快活泼。
▲私教区的空间宽广,浅灰色的地面配合各种功能图案相得益彰。大面积的落地窗,视野好、光线足、给私教体验者以尊贵舒适的使用感受。
▲前厅过道采用明黄色的地胶和墙上的绿植相互呼应,空间顶部的白色灯带也加强了空间的纵深感。
▲动感单车——顾名思义,动感激情就是主题。我们以酷炫的灯光,动感的流线给人以强烈的视觉冲击,再加上两侧的镜面设计使整个空间显得更加的宽敞,让体验者一进其中,便热血沸腾,激情澎湃。而中央台的66号也正好点明了本次设计的主题。
▲等候区采用了做旧仿古地板和墙面的一体化设计,配以暖色的灯光,营造出轻松、愉悦的环境。
▲ 随着66号公路,我们迈向理想的彼岸。
▲
小操房与格斗区,绿色人工草坪代表了舞蹈的柔美,红色的钢架吊顶代表了搏击的力量之美。
▲
休闲水吧区 水吧台运用了钻石的切割设计,粗犷的水泥板墙面又和整个风格相呼应。黄色的钢丝网吊顶,则活跃了空间的气氛。
▲
黑色的钢丝网隔断,代表了束缚的牢笼,而力量和搏击可以打破它。
▲
诗与远
方。
▲大的视角看过去,整个空间动静分明,大气十足。
▲漂浮的感觉,油然而生。
▲高温瑜伽房,典型的东南亚风格,采用木制地板和草编席的天花顶面,两侧采用镂空木制隔断,加上东南亚标志性的紫色帷幔,沉稳中透露着贵气,中央背景墙的壁画则营造出拙朴的禅意。
▲影音室——时尚的灯光,专业的顶、地、墙的一体软包设计,既保证视觉效果,也保证的专业的视听质量。
▲VIP 休息室,大片的蓝色护墙板,不失高贵,又营造出浪漫的氛围。
THE END
客服
消息
收藏
下载
最近
























