查看完整案例

收藏

下载
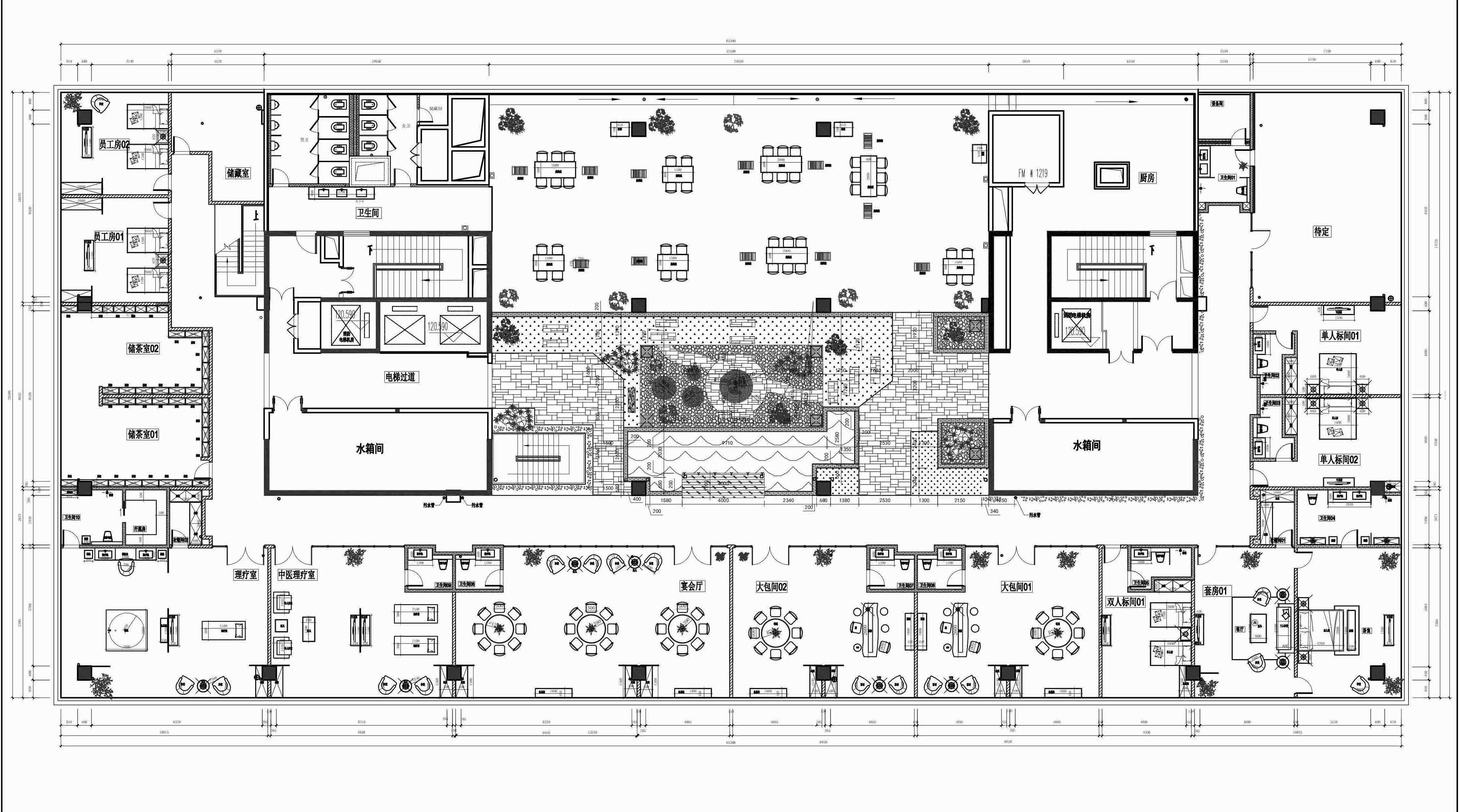
项目名称:顶层私人会所
项目地址:中国 郑州
项目面积:2000平方米
主案设计:李信儒
空间表现:徐堃
参与设计:
秦经杭
黄德宇
设计团队:墅创国际设计机构
这是一个位于写字楼顶部的私人会所,一百多米的高度带给的我们更多的可能性。这样一个高层的设计的灵感主要来源于中国传统四合院。四合院,又称四合房, 是中国的一种传统合院式建筑,其格局为一个院子四面建有房屋,从四面将庭院合围在中间,故名四合院。
传统的四合院大都是地面建筑,而在楼顶做四合院是一个极为大胆的想法。在格局上采用的是四合院的形式,但在外观以及材料的表现形式上则跟传统的四合院有了一定的区别。
为了保证室内的采光以及通透性,大面积的采用了玻璃门的形式,让庭院跟室内可以产生更多的联系。墙面摒弃了四合院传统的青砖以及白墙的形式,用了更加贴近自然和环保的防腐木,防腐木与青瓦的组合少了一分庄重却多了一分自然。青石板的地面则为空间增加了些许的朴素与质感,中间庭院水景跟植物的配合是整个空间的重点,这也是四合院的精髓之处,室内的人透过玻璃就可以看见庭院的景观。室内部分则是采用简洁明了的方式进行处理,白色的墙面配合上顶部的木饰面,房间一侧为通体的落地玻璃,向外望去,100米的高度可以让视野更加的开阔,顶部预留的天窗则是为了更大限度的利用大自然赋予的光线。
简洁的设计语言,不简单的使用感受,是设计师所追求的,在符合客户需求的同时,最大限度的追求舒适环保,是以后设计的发展趋势,在此基础之上吸取前辈们的经验加以时代的创新才会产生美好的作品。
C
louds
(
Zhengzhou private high-end clubs
)
Project name:
Top Floor Private Club
Location:
Zhengzhou, China
A
rea:
2000 square meters
The main case design:
Li xin
ru
Space performance:
Xu kun
Participate in the design:
Qin jinghang Huang deyu
Design team:
Shu chuang international design agency
This is a private office located at the top of the office, more than a hundred meters of height to bring us more possibilities. Such a high-level design inspiration mainly comes from traditional Chinese courtyard. Courtyard, also known as Sihuan room, is a traditional Chinese courtyard architecture, the pattern of a courtyard surrounded by houses, surrounded by courtyards in the middle, named courtyard.
Simple design language, not simple to use feelings, is the pursuit of the designer, in line with customer needs at the same time, the maximum pursuit of comfort and environmental protection, is the future design trends, based on the lessons learned from their predecessors to The era of innovation will produce beautiful works.
客服
消息
收藏
下载
最近





















