查看完整案例

收藏

下载
PREFACE 前言
做私宅设计,最重要的理念是什么?繁复的装饰、堆砌的元素,还是华丽的氛围?不,都不是。
作为一名“无我”理念的设计师,解决好委托人的诉求,处理好空间要表达的情绪,为“家的主人”提供“家的美好感受”,才是安小松做私宅设计的重中之重。
本案是一幢两层的私家别墅,业主是一对 90 后的海归夫妻,回国后育有一个可爱小男孩并独立抚养。
受些许美国自由文化的影响,业主夫妻追求简单自由的居住风格,喜欢宅家享受三口之家的乐趣,喜欢清雅的冷色系和极简的设计格调,对生活质感也有很高的追求。
设计师以业主的气质和品味为出发点,在复式空间中打破常规,采用平层铺设,调整动线功能的同时隐藏了结构弊端,以人的动线对整体空间进行了优化处理,用简洁细致的韵律节奏为业主营造出灵动有致、纯粹自由的生活空间。
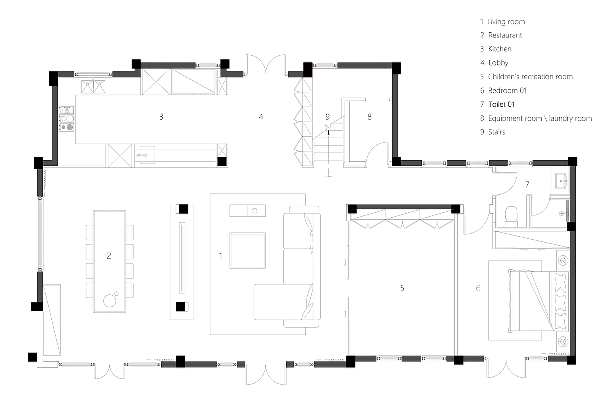
01 客厅
居家设计的格调往往伴随着光的氛围,入户时分,扑面而来有关家的气息和光影,是缓解所有外界疲倦的一个温情相拥。
通透的玻璃门,大方迎接室外所有光源,汲取自然气息的同时,也赋予整个客厅柔和舒适的时空变化。
黑、白、灰为主色调空间中,纯粹的艺术光感持续传递着优雅与简约;沙发与地毯以几分柔软,承载起空间的温暖情境。
整体空间的灯具设计中,摒弃了主灯的华丽设计,采用了线状与点状灯的极简风格,干净利落。02 餐厅
一楼的原本的结构柱位置,改造成了半通透的影视墙体,既强化了空间秩序感,又提升了独一无二的气质,甚至可以成为小朋友骑着扭扭车奔行的乐园。
餐桌椅的选择呼应了空间的轻盈舒适,整幅落地的玻璃窗,纳青松入画、光景依依。
03 厨房
热爱生活的人,怎么可能不喜欢人间烟火?察觉到业主这一需求后,设计师对厨房进行了改造,让家的烟火气息有了更为踏实妥帖的落地。
去掉了一层位置较为尴尬的原始公用卫生间,加大了厨房面积并设置了早餐吧台。让每一个阳光洒进来的清晨,都可以在吧台给自己冲一杯咖啡,准备一顿喜欢的早餐。
半开放的厨房,以黑色调为主,沉稳隽永的氛围中,借助从客厅与餐厅通透而来的光线,有了更多灵动的气息。
吧台的设计极具生活感,吃简餐、泡咖啡,或者只是洗手作羹汤时的陪伴,以及回首客餐厅里家人的欢谈。
04休闲区
客厅另一处的结构立柱,设计师也做出了完美改造,以电镀膜推拉门为隔断,围合起一片欢乐的玩具天地,便于收纳也留给小朋友更多自在。宜动宜静的开放空间中,既可以全部开敞,客厅休闲的同时陪伴孩子共度开心时刻;也可以暂时封闭,以供会客时保持简洁清朗的空间感受。
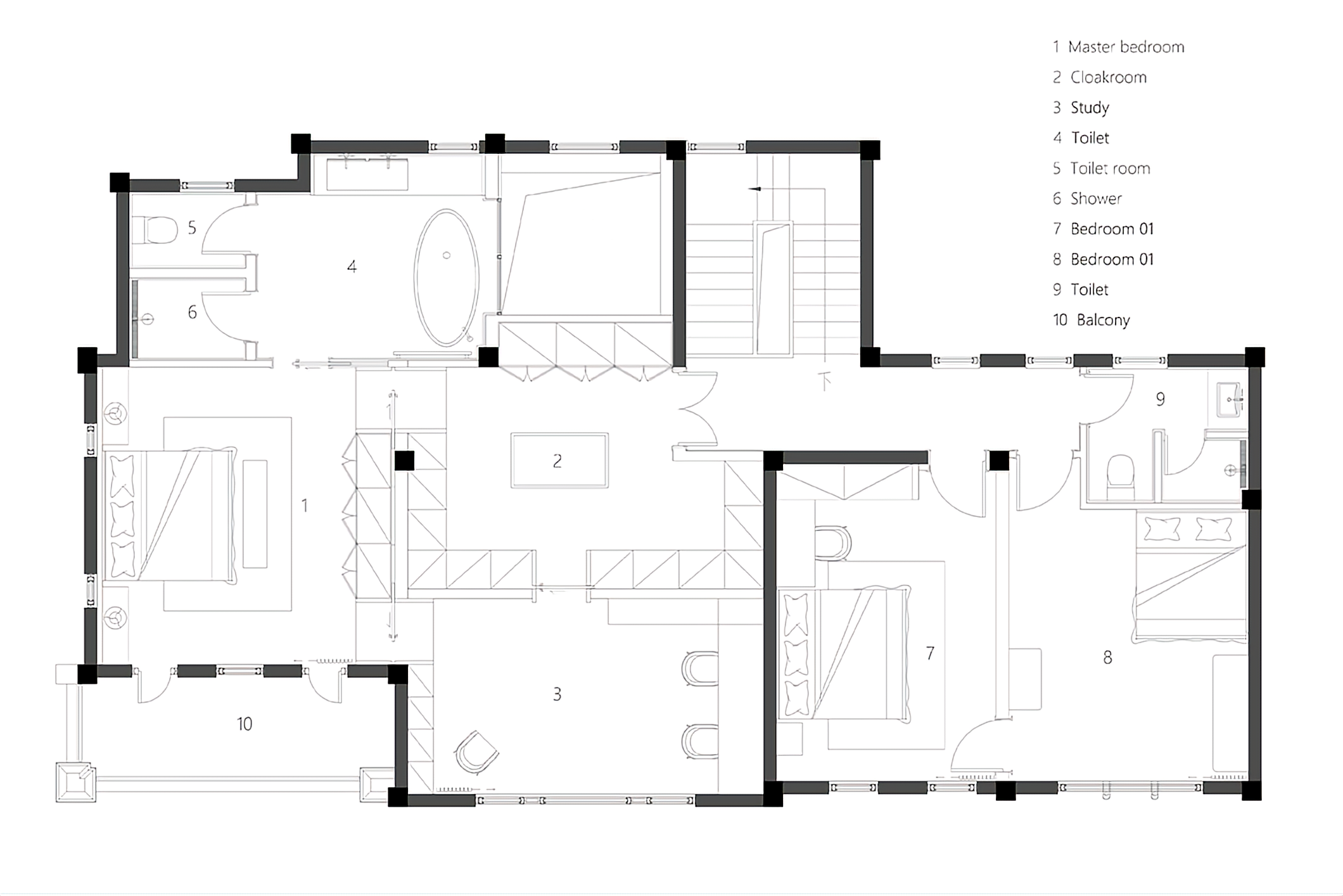
05楼梯
入口旁的玄关之后,便是楼梯空间,以内敛的手法,汲取室外光的美好,将照面光线隐于阶梯而上的斑驳,自由与艺术的气息交融而至。06 走廊
沿楼梯而上,二层的走廊设计流畅简洁,光源凭线而划,颇有将天花板与墙壁切分的艺术感。黑与白的对立,展现着无限的开放与自由,传递出阔达而自由的现代先锋气息。
07 衣帽间
二层悬挑空间其余的填平部分,一起改造成起居室与衣帽间,与主卧形成了洄游动线,提升空间活力。
衣帽间吊顶的整片光源柔和细腻,干净的线条感回应着业主对极简风格的挚爱,并将这份体验,寄托于每一处细节的感知中,成就起梦想里家的完美模样。
08主卧
起居室里,专门为小朋友设计的小小屋门,欢声笑语的穿梭,带来蓬勃生机。
主卧的光影饱满而生动、房间氛围化繁为简,只呈现最核心的本质。整个床体线条简洁,材质澄净,在素颜原木色系的木地板之上,一片安然理想的静谧油然而生。09 主卫
主卧室的卫生间通过悬层的部分填平进行扩建并做了干湿分离,墙面与地面采用暗色纹理的大理石一铺而就,每处细节都将整洁舒畅做到了极致。
回应着女主人的需求,设计师将浴缸位置外置与洗手台之后,并将一侧玄关处的墙壁顶部改建成电镀膜玻璃外墙,满足了一边沉浸水意一边与爱人聊天的愉悦,也让空间不再压抑沉闷,变得更为通透轻松。卸下重担,回归本心,这才是家能够给予的自由。
项目名称 | 纯粹的自由
项目地址 | 济南玺园别墅区
项目面积 | 680 平(包含院子)
设计公司 | 岸川设计
主创设计 | 安小松
开始时间 | 2020 年 1 月
完工时间 | 2021 年 12 月
文案编辑 | 清歌传媒
项目摄影 | 奂镜创意摄影
主要建材 | Tech/size 德赛斯岩板 萨沃宫艺术壁材 苏木子木艺工坊 德国汉诺地板
安小松
岸川空间创始人
设计总监
岸川空间设计由安小松先生和崔琳苑女士创立于济南,空间美学倡导者,致力于与委托人的深度沟通,解决空间要表达的情绪。坚持不定义风格,把对生活的理解融入每个项目,关注使用者的感受,只创造专属空间的独特与美。岸川设计始终保持对生活和设计的热爱,力求释放全部真诚与热情去完成每一份委托。
客服
消息
收藏
下载
最近




































