查看完整案例

收藏

下载
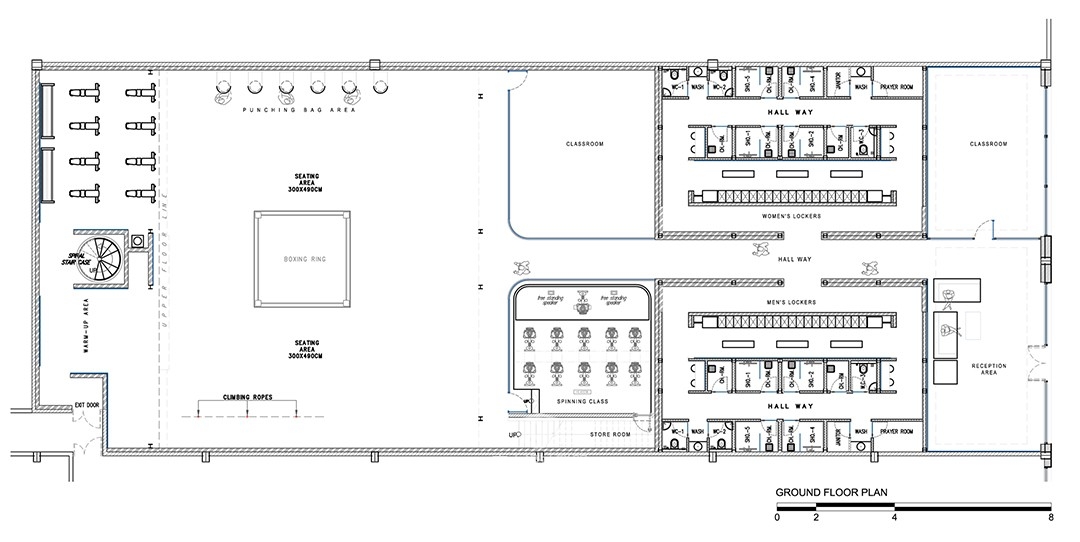
作为这片区域中第一家商业拳击健身房,“洞穴”将拳击运动和科威特进行了现代化的组合。这个健身房由接待空间、半开放式健身大厅、拳击竞技场和一个较高的综合区域组成。这个空间的核心设计点是强调动态的自由流动和出人意料的设计元素。
到达主要的练习区域之前,会员需要先穿过一条相对狭窄的走廊,经过更衣区,再进入主要练习大厅。与走廊相反,练习大厅很宽敞,中心设置有高于地面的拳击场,被9盏灯照亮(这一点对于设施的使用来说很重要),非常引人注目。练习大厅&教室均是为多种训练活动而设计。空间的夹层设计有一个额外的练习区,具有面向拳击场的清晰视野。
建筑材料的选择受到简单直接、摒弃过多装饰的传统拳击运动场所的启发,采用混凝土块、瓷砖、钢铁和原生木材质,来营造一个清爽的日间氛围,与通常这类场所的夜晚氛围相区别。北侧设置有天窗,让自然光线充分进入。走廊中采用曲线玻璃转角,创造出通向入口、更衣室和主要训练场地的清晰路线引导。
客服
消息
收藏
下载
最近























