查看完整案例

收藏

下载
“喜鹊之家”是DGN Studio为一对纺织设计师和数字设计师夫妇设计的家庭住宅,项目位于伦敦东部,由一座经典联排住宅改造而成。在以优质的材料为住宅进行扩建与翻新后,室内空间变得通透明亮,证明了建筑能够在巧妙的设计下不断发展并适应居住者的需求。
▽项目概览© Tim Crocker
业主夫妇是一对中世纪家具的狂热收藏家,并且在自建住宅方面颇具心得,在此前提下,他们找到了DGN Studio,希望设计团队能够帮助他们改建自宅北侧的底层空间。在深入了解事务所的设计经历后,业主夫妇将委托扩展到对住宅上层空间的翻新,他们希望建筑师能够以与改建部分相同的设计语言对上部楼层进行翻新,同时将他们的古董家具收藏结合在空间的设计中。
▽改造前© DGN Studio
▽改造扩建后的后侧立面© Tim Crocker
▽后花园© DGN Studio
设计首要步骤始于对空间的重新规划,以及为住宅引入更多自然光线。更新后的底层空间更富有凝聚力,并形成了从生活、到餐饮、再到烹饪的无比顺畅的空间流线。设计团队打破了住宅多个小房间的传统式布局,将平面的中心向外界环境打开,并在入口植入了一处宽敞舒适的生活空间。该空间不仅通向新的厨房和餐厅空间,更是继续向住宅后部扩展了3米,将家庭生活延伸至后花园。
▽位于住宅前部的客厅© Tim Crocker
▽壁炉© Tim Crocker
▽室内开窗连通住宅前后部分© Tim Crocker
与花园连接的生活空间可谓是整个项目设计的核心,扩建出来的部分为建筑后侧立面增添了混凝土肌理以及深色橡木制成的窗台座椅,此外,扩建体的玻璃面板可以完全打开,为居住者提供了从餐厅到花园的流动视觉体验。从外部看,住宅后侧立面的设计提供了一定程度的视觉深度与隐私。富有表现力的镀锌钢结构和深色木制窗饰,与现有的花园房黑色立面紧密相连。细长的钢柱则打破了立面的节奏,呈现出一抹亮色,立面的顶部则是厚厚的铅护墙,护墙上设有凸出的小型悬垂结构,能够为下面的长凳遮挡雨水。
▽扩建部分概览© Tim Crocker
▽扩建部分直接连通至花园© Tim Crocker
▽天窗引入充足自然光线© Tim Crocker
庭院的设计旨在创造一处低维护成本的室外空间。砾石覆盖着的回收钢网板构成了花园地面,此外,业主夫妇还将从啤酒厂回收的麦芽窑瓷砖重新利用在花园中,作为新旧结合的精心叙事线索。设计团队从业主对不同材料与肌理的拼接中得到了灵感,并将这种设计语言编织在整个住宅的改造翻新中。在新的扩建部分中,DGN Studio利用矿物涂料来处理回收的伦敦砖,进而为室内营造出温暖柔和的氛围。此外,设计团队还在入口层与扩建部分的地面之间设置了三级台阶,利用地形的落差增加了天花板的高度,同时在天花板中置入玻璃天窗,以引入更多自然光线。
▽从餐厅看厨房与前部空间© Tim Crocker
▽餐厅与木制置物柜墙© Tim Crocker
扩建厨房中,大型细木工件创造出充足的存储空间,满足了业主对于厨房经济性与多功能性的要求,所有的设计都是围绕业主夫妇已经拥有的物品展开的,例如:烤箱和灶台。在材料方面,不锈钢台面以及防溅板与灰色橱柜和开放式置物架形成了鲜明的对比,同时这种对比还进一步延伸到厨房操作台上方的不锈钢顶柜中,这个隐藏式顶柜为居住者提供了更加充足的储存空间,能够轻松满足大型家庭聚会或社交活动的服务需求。此外,嵌入在墙壁中的白蜡木肌理将厨房与住宅前部的客厅联系在一起,使整个底层空间形成统一的空间氛围。
▽厨房© Tim Crocker
▽厨房细部© Tim Crocker
住宅上层空间同样经过了重新规划,将原先的三间卧室改造为两间卧室和一间家庭浴室,如果业主需要,上部楼层在未来还可以容纳第三间小卧室。由橡木框架支撑的芦苇玻璃屏风围合出全新的浴室空间,门上方的格栅将光线引入顶楼。微水泥的肌理由地板一直延伸到墙壁,浴室也是围绕客户收集的物品而设计的,包括:马桶、大水槽,以及浴缸等。原浴室外狭窄的走廊如今被改造为开放明亮的生活空间,可容纳沙发或书房,为曾经单一的流通空间赋予了实用性的功能。上部楼层中采用的木质地板,由英国东北部和中大西洋地区历史悠久的谷仓建筑中回收而来,温暖且富有质感的木材肌理成为了空间的流畅过渡,将居住者引向熟悉的、且仅进行了最小干预的卧室。
▽改造后的二层浴室© Tim Crocker
▽浴室细部© Tim Crocker
▽改造后的卧室© Tim Crocker
本项目的成功得意于建筑师、业主以及承包商之间长期的良好合作关系,以及设计对于项目中的各类收藏家具与物品的敏感态度。DGN Studio的设计颠覆了传统的住宅改造流程,以一种更直观、更灵活的方式回应了场地的条件与业主的需求。可以说,“喜鹊之家”的成功是多方紧密合作的成果。
▽夜景© Tim Crocker
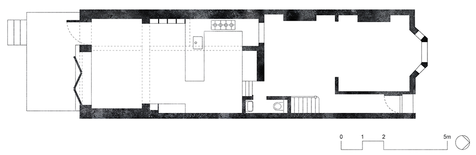
▽改造后底层平面图© DGN Studio
▽改造后二层平面图© DGN Studio
▽改造前后立面对比© DGN Studio
▽改造后剖面图© DGN Studio
客服
消息
收藏
下载
最近





































