查看完整案例

收藏

下载
2023 年春天,山地土壤受葭园设计委托,在已建成的两层以规则形框架结构围合的建筑空间内,植入以「器物」为主的生活方式和展览体验空间。该项目的设计取意葭园品牌中的“园”字,以传统文化中极具观赏性和体验性的“游园”为出发点,将整体空间以“外园/入园/游园/留园”为层层递进的序幕进行叙事。
感性设计 Emotional Design Inspiration
在数位时代快节奏的生活中,我们对新时代变化具备敏感度,但也时常会对日常周边景物感知迟钝。在项目设计前的很长一段时间内,我们时常会想象“城市的地面被钢筋混凝土和沥青所覆盖,可以说是一个被凝固、已经死亡的地面”。如何感知人工建造和有机自然,随着时间推移地面出现清晰的裂缝以及非人工干预的自然生命体给了我回答。
▼建筑立面
葭园 craft 品牌致力于探索和传播全球手工艺品,发掘和细探日常器物的美感以及与环境的关系,推动手工艺在当代社会下的发展和认知。在概念设计伊始,山地土壤一直思考如何为项目构筑一个独特而又具有生活感的“家园”,空间、手工艺物件与人的行为可以产生微妙的联系。这里是品牌展览空间,也为所有热爱手工艺的人们打造一个平等、自由探索的艺术空间。
▼概念手稿
▼概念意向
思考生活化景观是山地土壤为项目寻找的一个突破口,将无法拷贝的自然进行设计翻译,对“日常生活地景“进行提取从而获得空间形态。
▼室内概览
空间路径 Spatial Paths
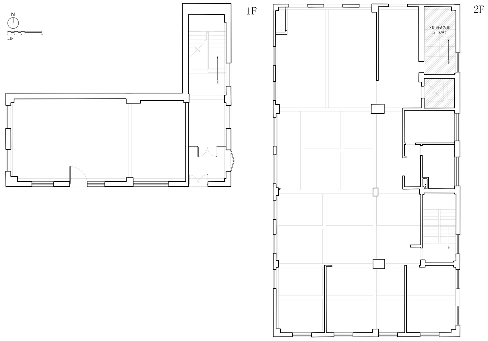
葭园主题展览空间位于杭州市西湖区郡原公元里,整体建筑面积为 509 平方米,两层的空间四面开窗,以极简的框景形式引入自然光线和周围层叠的自然绿意。
▼一层概览
▼展架
▼接待台
1F 空间为葭园主入口,亦为“外园”,是整体空间序列的起始。俯览全景,围绕平面中轴以环形动线为主导,再经由侧方婉转小道拾级而上进入园内。
中心陈列主展位的设计上,设计师简化繁杂的道具造型,提取植物叶片的基础形态。在“叶片”的下方以山石为地景,周边辅以莱姆石,留取其自然凹凸肌理,为室内一隅置入生态感的物景。在纵向垂直结构上,我们将层高进行延伸,使得一楼和二楼的空间重叠兼容。裸露的原混凝土结构柱被完整地保留,柱体形式作为连接空间上下关系的建筑骨骼。
▼楼梯
二楼的公共区域分别由三个空间层次组成,在平面布局上我们把人工与自然协作的地面裂缝作为整体空间的结构型特征,再由墙体降格将区域划分为“入园/游园/留园”三个版块。
▼二楼概览
▼精心设计的墙体
游园体验
Traversing Garden Experience
入园:区域与一楼紧密相连,形成一个建筑与形式感的“对话空间”。利用平面悬挑形态的半圆弧向上延伸,再置入叠加展陈与收纳功能,入园的中心区块则由高位陈列为主导,是空间的中心聚焦点。
▼二楼空间
游园:二楼的中央版块,陈列台面的设计从地面“裂缝”里生长出来,错落有序,形成视角高差的同时,也可适应大小高低不同的器皿摆放。地面材质使用了水洗石处理,我们用当代园林的鹅卵石作为设计参照,将户外材质转化至室内空间组成部分,形成园内园外模糊的界限,更好地将自然气息弥散在室内。
▼展台设计
▼墙体设计
▼光影特写
▼巧妙的景色
留园:区域后期功能使用主要以大型艺术装置、线下容纳多人的艺术交流以及休憩对谈为主。我们围绕此生活方式将空间内的各项机能自由组合,再嵌入吧台以及现代化的功能设备打造出一个灵动且自由的互动空间。
▼墙体与展台组合
▼展台特写
▼温暖舒适的色调
▼材料肌理
▼1 层轴测图
▼2 层轴测图
▼平面图
项目名称:葭园主题概念空间
项目类型:多功能复合展览空间
室内设计:杭州山地土壤室内设计
完成年份:2024 年 1 月
设计总监:董甜甜
项目地址:浙江省杭州市
建筑面积:509 平方米
摄影版权:Wen Studio
灯光设计:华豪照明
施工公司:浙江亘盛建设集团有限公司
主要材料:艺术涂料、混凝土板、天然石块、莱姆石
客服
消息
收藏
下载
最近






































