查看完整案例

收藏

下载
以“美学会所”为概念
Take "aesthetic club" as the concept
设计概念
该项目是东尼·熙可造型的别墅店,以“美学会所”为概念,营造动人心弦又具有精神归属与诗意的环境。深度挖掘整体的层次韵律与功能秩序,全面提升品牌形象,优化服务品质与体系。
改造前后对比
改造后的空间如同胶卷,在旧与新的交汇点,留下珍贵的视觉印记,通过元素的交融和碰撞,描绘出独属于品牌的视觉符号。打造错位、对比、叠穿的观感,让主体与周边环境互为衬托,和谐共存。
展演可塑且多样的美业面貌
别墅形式及庭院优势,成为本次项目的启发点,结合“美学会所”概念,引导展现空间尺度上的层次感和秩序感。印象派大师莫奈曾言:“光是我唯一的画笔。”将原建筑门窗全场封闭,通过光精准传达空间场所的精神和诗意。
以新式禅意定位水吧区的意境,糅合“T”字布局和镂空语素,描摹出明晰流线,定制覆膜灯箱演绎不同光色的艺术魅力,衬得古朴山石温文尔雅,呼应着红洞石,彰显大自然的创造力。深灰体块以分界为目的,搭配金属球,向过渡场域注入了前卫感。
开启一段舒心之旅
将客户体验放在第一位,规划专属的等候区。秉承人性化设计具有的安适感与互动性,建构多重的弧元素,交织出线、面、体、光共生的纯粹气息,有益于放松身心。确立采光方位,利用框景手法拟态阳光普照的氛围,高大绿植将生机弥漫开来,净化了等待时的烦躁。
空间格局与理发的过程息息相关,打造“中间空,两边实”的陈设关系,加之镜面反射的特性拓宽了空间,如同天井一般的光效增强了场域的呼吸感,将美学、节奏、工程学与简约叙事串联,营造出“隔空交流得自在,专注造型享愉悦”的体验。
汲取传统借景形式的内蕴,筑构低矮隔墙,令外域的构造意趣直接跃入染烫区,消弭了空寂的感觉。通过色调与质感的变化,讲述不同区域的艺术感,实现相辅相成的和谐之境。纹理自带buff,与十字天花共创出戏剧化的场景。
简之精髓,由本真演进,综合审美格调与商业诉求,推动心中所念之景幻化成形。铺垫留白之境,用体块具象化描摹原本无形的光,搭配原矿石材,与一层水吧区轻松呼应。以重色板块拟态了身坐廊间的感觉。
洗护区主张自然浪漫主义,通过精准布光,混响空间叙事。打造方正的几何空间收藏最强光能,于前于后,温柔指引,悄然限定功能区范围,于左于右,形成迷人情调的开篇,牵引出独到的意境和氛围。
黑调隔断为“屏风”的转型之作,考虑目视高度与大开间被切分后的拥堵感,融入方圆呼应的镂空结构,炼就一体多元的布局效果。突破室内装饰的细节束缚,着重表现动与静、止与行、推与纳,将美业服务升华至美学滋养。
穿透低层次的打光效果,创造明亮又温和的环境,呵护心态与情绪。勾勒顶部的中轴线,改变线条的粗细与交织角度,呈现光与人和空间嬉戏的感觉。座椅的排布序列对应轴线,旨在通过秩序优化小场域的空间感。
如同电影大师费里尼所说:“电影是一种视觉诗歌。”设计师致力于创造一种视觉的诗歌,让人们在其中感受到美的力量。铺设宽幅镜面,给予顾客即时的美貌反馈,最大化镜像场域的细节,从而达成空间延伸,动静相宜,使人忘却时空,享受逐渐变美的过程。
品茗不仅是一种生活的艺术,也是一种修身养性的方式。空间的真实感,源于人的主观感知,延续了红洞石的暖意,与中古家具暗合出雅韵和仪式感。以光抒情的氛围,阐明了美学意义与至高追求。
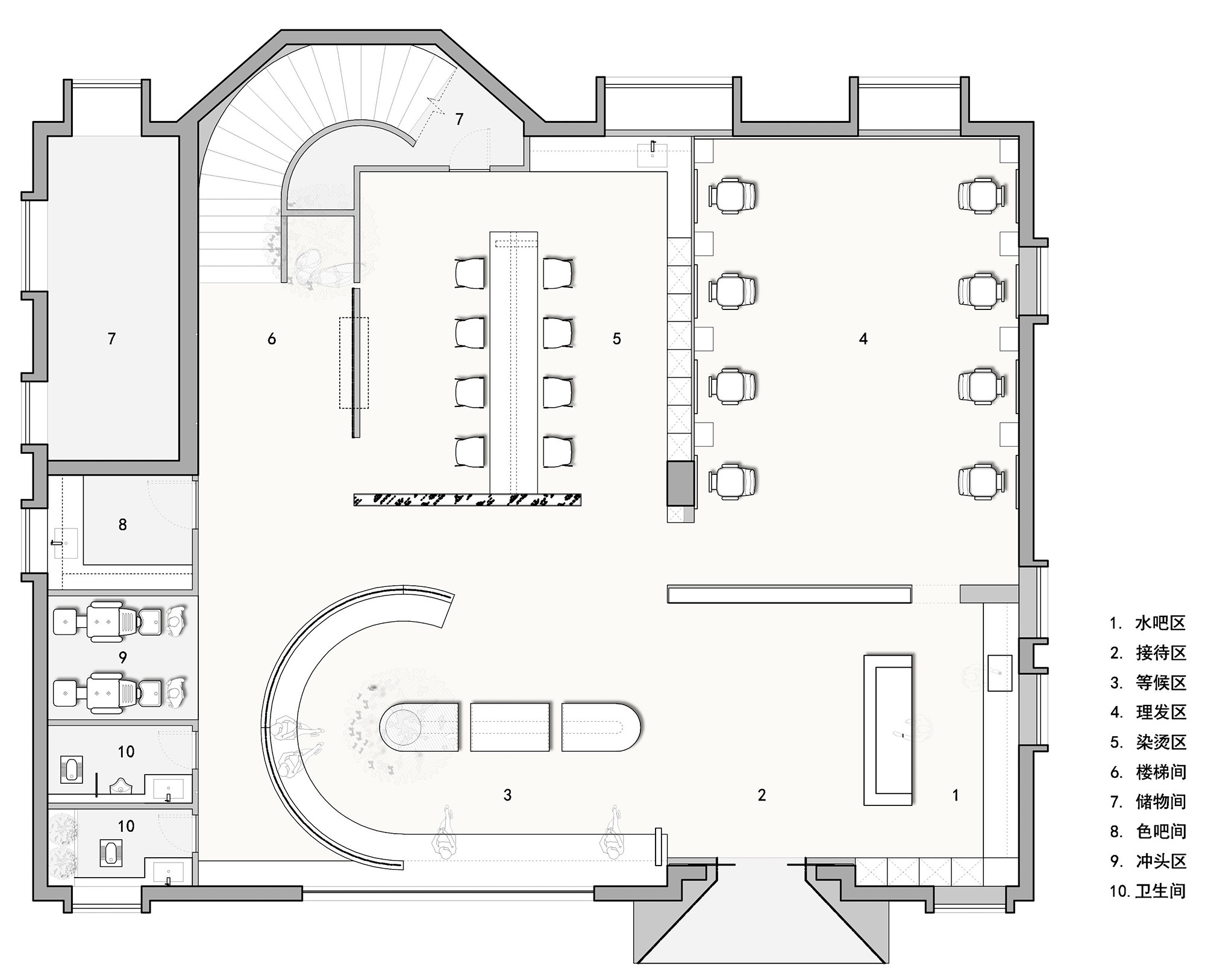
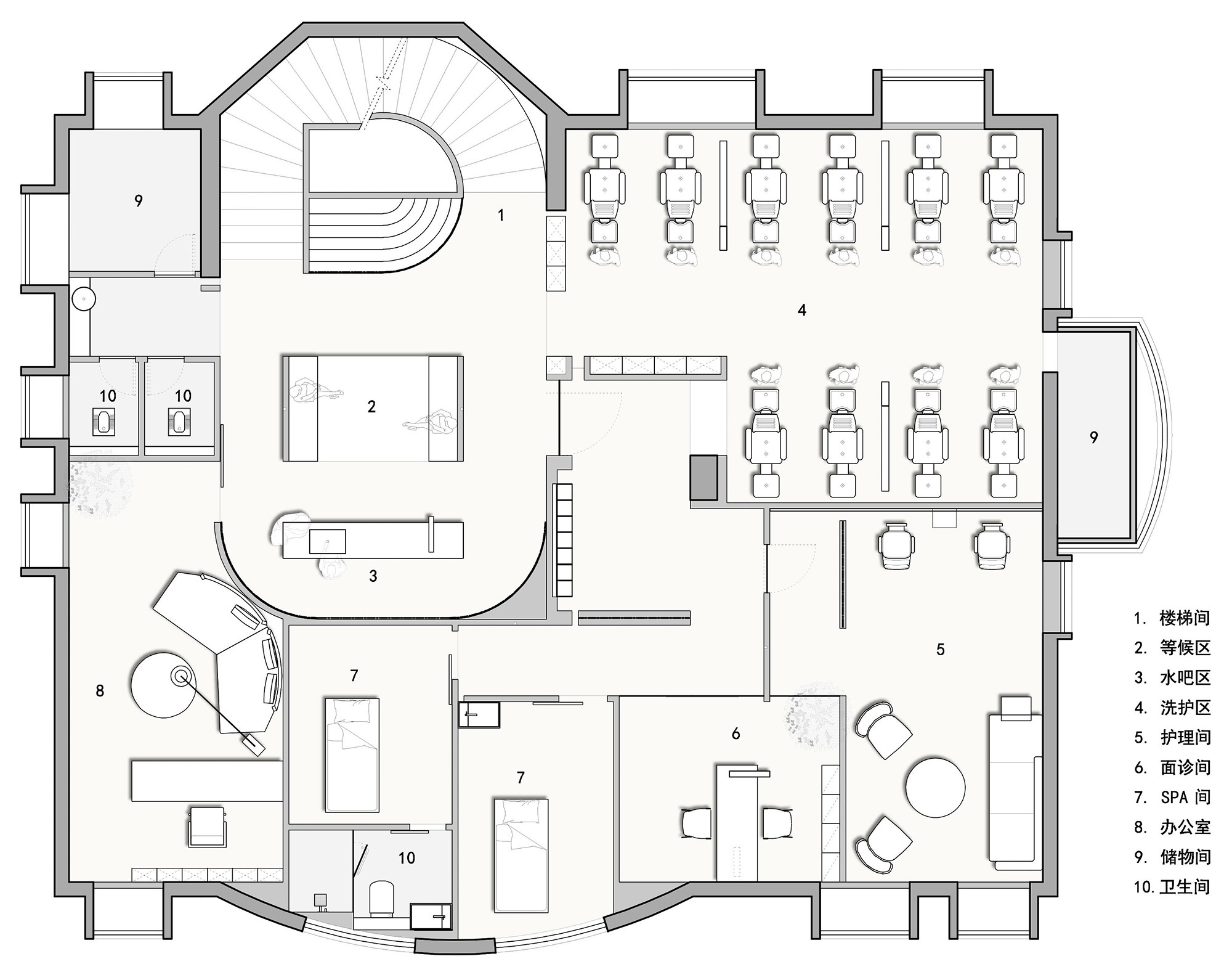
平面图 | ©文因兀设计
项目信息
项目名称| 东尼 · 熙可造型(别墅店)
项目地点| 广东汕头
项目面积| 700m²
设计机构| 文因兀设计事务所
主案设计师| 刘恩光
设计团队 | 叶慧 张江平 王雪君
陈设机构| 山竹软装
施工团队| 追光建筑
文案策划| 修合文化
项目摄影| 逐一视觉
客服
消息
收藏
下载
最近





















































