查看完整案例

收藏

下载
浓缩、转译漫步城市的浪漫
东西并存的喧腾
古今相偕,杂而有味
翻转合院及洋楼留白架构,闹中取静
翻阅岭南城市风土,因商港之便早早传入外来审美,建筑景观有东南西北多方族群脉络,传统合院聚落与西式垂直楼房的骑楼连廊,相伴为邻,兼容并蓄。热腾不止的饮茶食宴、灯会游园、观戏听曲,丰富城市生命力,更赋予建筑连结情感的深刻意涵。
水相设计欲将城市印象浓缩为空间体验,认为与其复刻建筑元素,不如改从中、西式建筑的「留白」思考优化空间层次的要诀。柜台后方斜切大尺度立面在简净场域划出视觉主轴,两道斜墙构筑入口迂回,控制动线之余也保留内部环境隐蔽性。
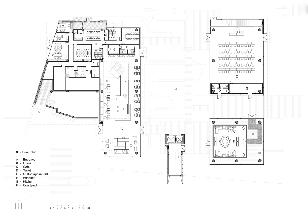
以此为核心,设计师将天井和连廊两种形式叠架出室内回游动线,二层入口迎宾、展示资料以回字结构布局,中心环绕贯穿一二层的天井,明亮地串起两层楼面关系。
古代合院对称布局,多透过天井拉开厅厢距离;西洋楼宇常见一层内缩释出骑楼或连廊,向街角敞开共享空间,二层以上才全为室内所用。这些都是庞杂城市生活里,因追求生活美感而出让的空间哲学。
记忆里的砂红,以新语汇写入空间
入口右侧长型天井下则另有风情,一层是对外营业的咖啡厅,主墙向上延伸完整立面,连同造型如劈裂岩块的内梯、吧台工作区,全以砂红轴线塑造视觉份量,相较于室内其他中性、低彩度环境,色泽温暖但带着丰富纹理的材质,重重烙印出视觉记忆。
透过轴线与雕塑布局,合院与洋房骑楼的建筑经验成为整合场域水平、垂直关系的桥梁。无需详尽重现各时期建筑雕饰才能再现广府情怀,俐落阔朗的现代场域,也若有似无地模拟天井采光、厅堂层次、屋檐避雨,淡雅连结传统日常。
红砂岩属岭南特产,作为传统建筑重要构件已成广州潜意识,循此文化线索,设计师挑选中东地区的红洞石,一方面重现砂红色泽,借天然纹理叙述时光淬炼的价值;另一方面,向西取材的跨地域性,也呼应广府兼容开放、脉络多元的历来城市面貌。
兼容多元的传统浓缩为抽象意境
展演厅位于垫高台面座落轴线中央、承接四方目光,跨距不等的踏阶环绕出戏台气氛;一旁两道矮墙划出轴线,分隔资料展示区及衔接至洽谈区通道,类似演出转场的后台路径,参观时宛如迂回切换于幕前幕后。
除了材质,文化活动亦是连结人们经验的重要环节,传统节庆入夜后城市张灯结彩则闪耀着不同柔情,宫灯、灯笼映照欢庆之趣。春江秋池,人影绰绰,灯火散作满河星,尽是引人怀念的人文风景。
设计师撷取意境,将象征物件转为轻透俐落的玻璃灯柱,映衬水景倒影,让似曾相似的河畔赏灯、镜花水月牵引更生动的想像。
灵感、取材象限横跨地域
连结文化习性与现代审美的翻转手法,亦见于二层半独立茶室,结构上略浮于地面强调独立性,周围再以茶色玻璃夹纱隔开视线。虽是东方茶席概念,但改变光线色调的滤镜效果,却是西洋彩绘玻璃的变体。
与主动线拉开距离的私宴厅,座落在天井另侧角隅,屏蔽灵感来自花墙的镂空砌砖法,但改以木制格栅创造疏密层次,兼顾采光及隐私。周围水景围绕,需行过蜿蜒步道进出,仪式行为易联想到园林曲桥,往昔诸多设计不都是为了赋予距离美感。
藉由叙事的择与译,历史风俗借建筑材质色彩或轴线布局,转为符号性更强的纯粹元素,和谐捏塑出赏粤当代路径。重新检视广州可见可感的记忆,汇整为现代审美底蕴,待人细细觉察,缓缓回味。
项目名称|长隆万博悦府
项目地点|广州
室内面积|2164m²
空间设计|李智翔、葛祝纬、林其纬、陆安妮、黄雅琳 /水相设计
艺术装置|羽果设计
项目业主|华润置地广州公司
业主团队|程晓曦、江久怀、吴浩、周扬、刘鑫、陈惠娟、陈天、林振敏、杜盛勇
空间格局|接待区、洽谈区、品牌展示区、品茗区、咖啡厅、中庭、宴会厅、办公室、卫生区、多功能区
设计时间|2023.03~2023.06
施工时间|2023.06~2023.10
主要材料|花梨木、红洞石、圣罗兰黑金砖、凿面大理石、茶色夹纱玻璃、马鞍皮革
项目摄影|一千度视觉
水相设计
Waterfrom Design
成立于2008年的水相设计跨足室内与建筑领域,秉持设计应如『水』的初衷,纯净、有机又多变,本质上保持其原有的简洁性,意念上展现无框架的可能性。致力关注于空间的故事脉络及时间光线,创造一个具有情感沉淀及讯息想象的空间。
客服
消息
收藏
下载
最近




























































