查看完整案例

收藏

下载

翻译
Firm: HUTS
Type: Residential › Apartment Private House
STATUS: Under Construction
:
SIZE: 1000 sqft - 3000 sqft
BUDGET: $500K - 1M
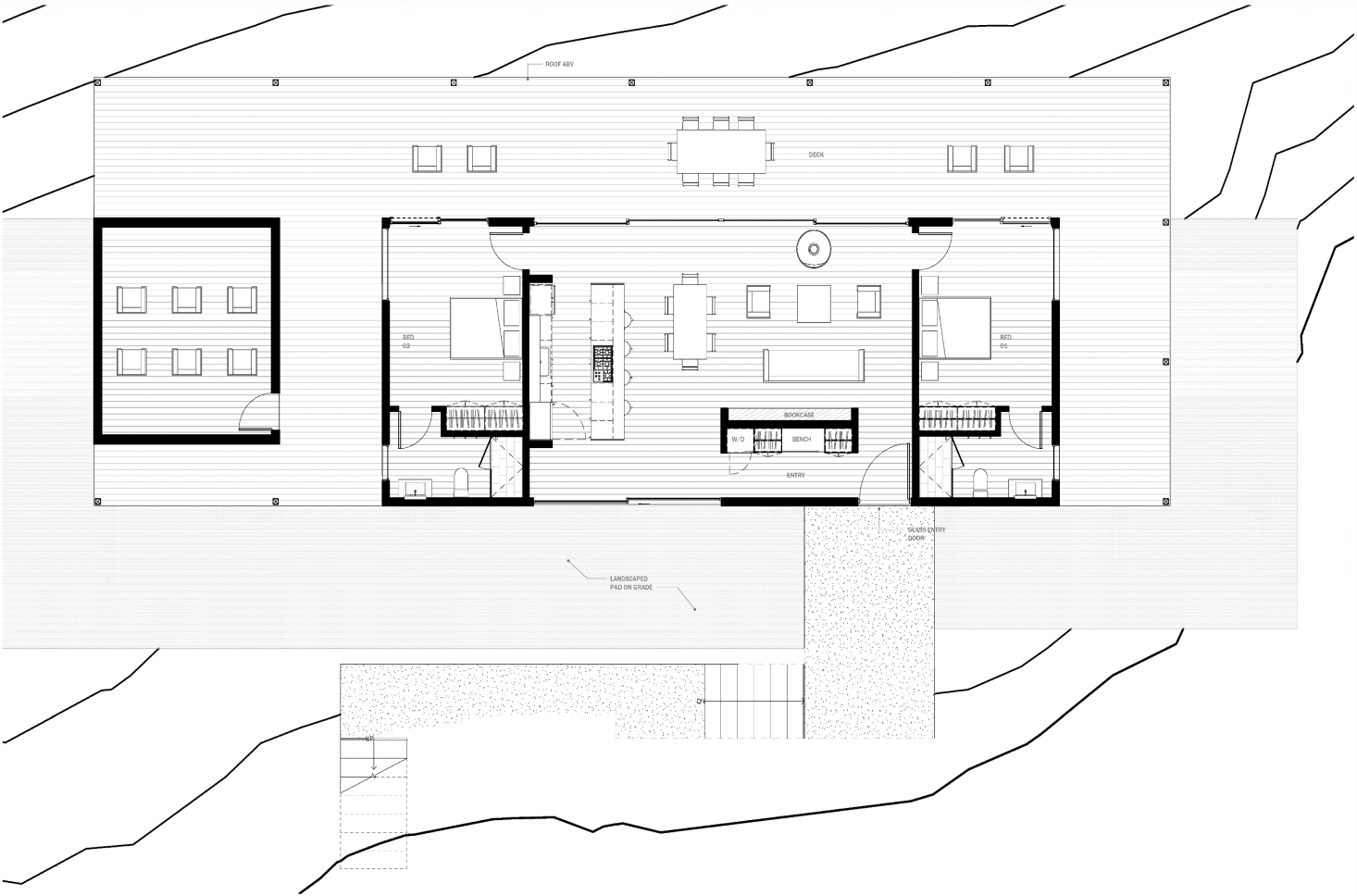
Designed for a content-focused chef, this house is one part vacation home, one part film studio and one part short-term rental experience. This fully custom property is designed around the kitchen - its views over the Delaware River and its natural light for filming. With the kitchen at the center, the home features two bedroom wings, a full wrap-around covered deck, and a secret movie theater.
Consultants: Da-Ko Architects, KTA Engineering
客服
消息
收藏
下载
最近









