查看完整案例

收藏

下载
与城市共鸣
被誉为“北国春城”、又名‘森林城’的长春,城市绿化率达到78%,居住环境优美,也有着深厚的近代城市底蕴。本项目坐落与国家级风景区净月潭,周边学府森森,羽果设计依据城市文化脉络与环境气息,以歌剧院为故事主题,汲取其艺术文化、精神作为空间的软硬装设计灵感,融合当代设计笔法,予以空间符号式的创意呈现。
长春有着深长春有着深厚的近代城市底蕴厚的近代城市底蕴
01
接待区
Reception area
▲接待区效果图
接待大厅采用自然质感的原木色,雕塑表面,以简易的工法,从点、线、面三个维度重组空间线条关系。古铜色拉丝不锈钢,光源点缀。简约伶俐的线条和硬朗大理石材质,呼应长春的工业气质,艺术品的软饰开启歌剧院帷幕。
02
沙盘区
Sand pan area
沙盘区采用剪影和印章的概念,顶部以三角的汇集开启,引申至跃动的‘大屏幕’,蓝色彰显着律动,设计选材上,质感的意大利金大理石地板、米色泥客石墙壁典雅空间气息。源于艺术家雅克·范登阿比的艺术品,大提琴或独奏、或辅音,以静的姿态启迪着动态的无限想象。
03
洽谈区
Negotiation area
洽谈区上方延续大厅和沙盘区的木饰面设计,以及辅有的隐藏式照明,直线延申视觉错觉,橘色的座椅予以温暖又呼应原木色,动态雕塑摆件以及挂饰体现出歌剧院音律中的艺术美感。
自然光线的温润,木质呈现有力的变奏而产生极佳的视觉艺术效果。同色系的橘色花束,线条穿插运用到空间中,勾勒出奇妙的序列感,利用光影将其完美演绎。
辗转一侧,一隅以温,在无垠的静谧中追寻设计之美。
空间大面积深色落地窗,线条缓缓有序的流动之感,钢琴独奏的深色系舞台,如歌剧院质感而庄重,简化的符号语言讲述空间的精神与情感。
顶部依然是有力的变奏汇集的焦点,也如歌剧院所具有的生命力的张感呈现,圆弧形的灯罩散发着温暖的色泽,雅韵氛围。
汇集空间的凝聚力,不同角度的赏析之美,美学概念予以光的呈现,或对称、或重合,更添艺术之美,述说着设计师力求完美之心。
安详之光,无限治愈,阳光透过落地玻璃窗,线性的黑色灯罩,翩翩起舞的雕塑。平凡之光,静谧安然,却可以让所有的艺术品变得真实。
04
水吧台
Water bar
简约中透露出简洁工业感的大理石水吧台,古铜色拉丝不锈钢镶嵌增添质感,花艺、灯罩、艺术雕塑都是精巧的点缀靓点,潜移默化中铺垫着细腻的感受。
材质、色泽依然选用空间主调,直线的秩序、褶皱的焦点美感,光线之源等默契呼应,起承转合之际,始终能捕捉到彼此细腻的渗透,有效加强了空间的层次感及探索性。
提取音乐中的音符为元素演变成雕塑形态落位到空间中,黑色长脚凳克制而冷静,以抽象的笔触描绘出具象的有序与变化的壁挂,瞩目且增添一抹空间流淌的雅致写意。
05
归家大堂
Home hall
流畅的弧线映射歌剧院的大厅顶部,见光不见灯的隐匿之美。壁画是简洁的音符,笔墨随意挥洒着,大理石低调冷静的质感,壁光折射,视觉感加持,空间设计的动态理念渗入观者感知。
▲归家大堂效果图
大堂运用线形手法赋予挺拔的姿态,给人一种歌剧院的气势磅礴的感受,设计师在构建层次感的同时,对各设计要素进行有效合理的搭配,保持各材料肌理质感的变化性与延续性,空间造型的配合与变化等。玻璃砖隔断映射光影,淡雅的石材外观、原色木饰面、拉近来者的亲近感。
空间的灵魂是人与自然的关系,把静态空间形成引人入胜的动态空间-也是设计之本。IF DESIGN将设计专注于空间、体验、与自然三者的关系中,在一形一构中审慎地进行象征表达,呼应自然的璞真、雅致、清幽之感,唤醒城市人文记忆与活力,陶醉于艺术的那份优雅。
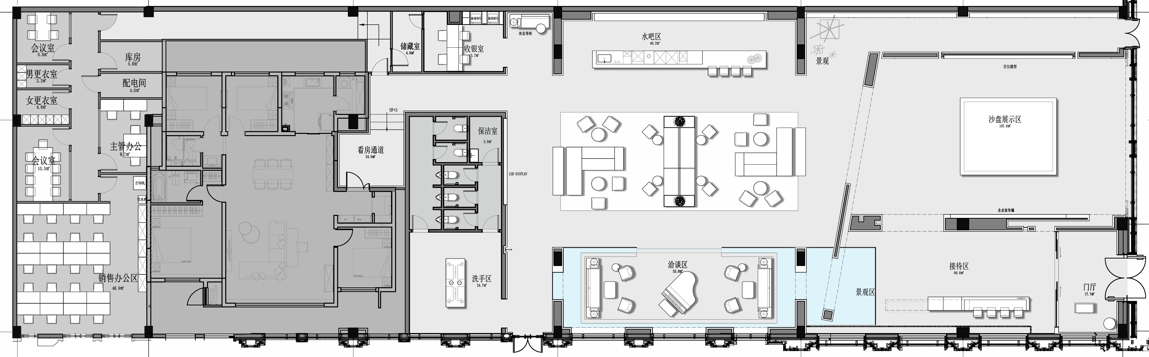
▲平面布置图
项目名称:龙湖·长春水都售楼处
甲方信息:龙湖集团
项目面积:800㎡
项目地址:吉林省长春市南关区
硬装设计:IF DESIGN羽果设计
软装设计:IF DESIGN羽果设计
项目摄影:一千度
IF.DESIGN 羽果设计一贯坚持“美学/生活/新生”的概念。
不断跨越边界,保持设计的前瞻性与创新性。
尊重客户特质及文化多样性,
为美好生活注入永不满足的进取力量。
IF design has consistently adhered to the concept of “aesthetics/life/new life”. Continuously cross the border to ensure the forward-looking and innovative design. Respect for customer traits and cultural diversity, and inject a never-ending enterprising power into a better life.
客服
消息
收藏
下载
最近

































