查看完整案例

收藏

下载
冥想小教堂坐落在韩国江华宁静的山水之间,由Lee Eunseok 和Atelier KOMA建筑事务所设计,这座混凝土结构的设计并非是充满活力的社区内的传统礼拜场所,而是一处远离城市生活,安静偏远的林中“避难所”,供独行的旅行者祈祷、休憩。
教堂的建筑形式以表达其目的,简单的体积置于广阔的自然环境之中。这个升起的盒子象征着“与世俗世界的分离”,通过最小的序列和垂直扩展创造了一个虔诚的空间。与延长路径供悠闲漫步的方法不同,该设计允许游客快速到达开阔的天台,独自伫立沉思,与大自然建立直接联系,基于信仰去理解“创造与被造”。
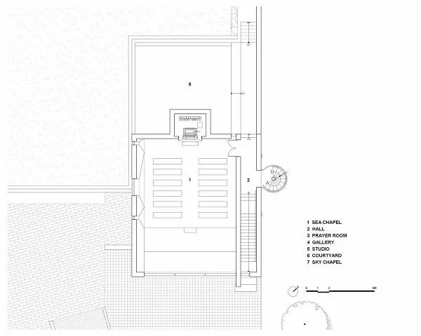
教堂的内部分为四个表面,设计将其专门用于一个特定主题——海洋、声音、光线和背景。前墙开有大落地窗,可以欣赏到远处的风景和西海的景色。后表面放置着管风琴,这是一种与朴素的混凝土形成鲜明对比的复杂乐器——在建筑师的社交媒体上聆听管风琴的声音。十二个漏斗状的彩色玻璃窗填满了侧墙,以其有机线条和绿色色调象征着大自然——与中世纪教堂不同的是抽象的绿色图案。入口墙是空的,但在日落时分,它变成了金色光线的屏障。
项目图纸
项目信息
项目名称:冥想小教堂
设计:Lee Eunseok + Atelier KOMA
地点:Ganghwa, South Korea 韩国江华
完工时间:2023 年
摄影:© Kim Yongseong, Urban Azit
客服
消息
收藏
下载
最近


























