查看完整案例

收藏

下载
胡同中的公共空间
Public space in hutong
本项目位于北京香厂新市区历史文化街区之中,原有建筑为两层平顶现代砖混结构建筑。原有建筑属于危房,因此将其完全拆除后进行此次更新设计。该建筑南北两侧为北京传统四合院式建筑,西侧则是刚刚经过更新的北京民国时期的里弄式建筑“华康里”,东侧是一个小胡同,而胡同的东侧是天桥集市。由于项目地点处于古都风貌保护区之中,因此部分建筑采用传统北京民居的木结构古建方式。而连廊与可上人屋面的部分则采用现代平屋顶的形式。平屋面的现代形式主要分布在东西两侧,以连接“华康里”和天桥集市。而传统坡屋面则分布在南北两则与紧邻的传统四合院式建筑连为一体。在这里两个传统被共同呈现:香厂新市区的现代化建筑与天桥的传统建筑。
This project is located in the historical and cultural district of the new urban area of Xiangchang in Beijing. The existing building was a two-story and flat-top building with block structure. It was demolished because of its dangerous condition. The neighbors in north and south are the traditional Beijing courtyard houses. In west of the site, is the “Huakangli” built in the period of the Republic of China. In east of the site, is a small Hutong with Tianqiao market beside. Since the project location is in the ancient capital style reserves, part of structure was designed as traditional Beijing courtyard house with wooden structure. The parts of the corridor and terrace are in the form of modern flat roof which connects “Huakangli” and Tianqiao market for public. The traditional slop roof is distributed in north and south of the site integrating with same architecture language of the neighbors. Here the two traditions are jointly presented: modernization by Xiangchang’s new urban area and traditional Beijing courtyard house.
▼庭院概览,courtyard overview © 金伟琦
▼现代化建筑与传统建筑,modernization and traditional Beijing courtyard house © 金伟琦
时间的质量
Quality of time
整个场地是一个接近15米乘15米的正方形地块。北京传统的四合院式建筑的出入口通常分布在南北向,而这个项目由于南北两侧都是与邻居的共用墙,因此出入口只能分布在东西向。这也刚好对应了其未来作为的胡同博物馆的使用功能。在南北向上,居主体位置的是古建做法的北房,南房则是一座尺度稍小的古建。传统的南北轴线得以体现,一个稳定而静止的空间体现了超越时间的永恒性。在东西向上,主要的出入口被设置在东侧,西侧的出入口因外部条件所限暂时未被启用。在东西向上分布有一个由砖建成的院落和一个以水池为主体的花园。形成了前院后园的格局。在这里,南北向静止的轴线被东西向流动的时间线所代替。一组连续的钢结构与落地玻璃的透明空间随着东西向的时间线而缓缓展开。砖院与水园彼此交错,公共空间的功能在时间中呈现,时间使空间具体化,并变得生机勃勃。对于到访的观者,也许空间的质量与生命无关,但是时间的质量却与其息息相关。
The entire site is a square plot nearly 15 meters by 15 meters. The gate of Beijing traditional courtyard house is usually distributed in the north-south direction. Because the common walls with neighbors on both sides of the north and south, the entrances can only be designed in east-west directions. This also corresponds to its future function as a Hutong museum. In north-south direction, the main body is the north house with additional slop rooftop, and the southern house is a slightly smaller then the northern. The traditional north-south axis is reflected, which represent eternity beyond lives. On west-east direction, the main entrance is set on the east elevation, and the gate on the west elevation are temporarily unavailable due to external conditions. There is a courtyard built by bricks and a garden with a pool as the main body in west-east direction. Therefore the pattern of front courtyard and back garden are created. Here, the stable axis of north-south direction is replaced by the timeline of west-east flows. A set of continuous steel structure with glass curtain slowly unfolded with the timeline of west-east direction. The brick courtyard and the water garden are intertwined with each other. The function of the public space is presented in time, and time makes the space concretely and become vibrant. For visitors, the quality of the space has nothing to do with life, but the quality of time is closely related to it.
▼入口,entrance © 金伟琦
▼水池为主体的花园,a garden with a pool as the main body © 金伟琦
▼现代可上人平屋顶与连廊, corridor and terrace in the form of modern flat roof © 金伟琦
▼廊下视角,view under the roof © 金伟琦
▼水景一角,a corner in the water garden © 车飞
去构形
De-configuration
这里既不是一个传统建筑的静态实存也不是一个现代的流动空间,而是要创造出一个传统与现代、永恒与流变的富有深意的辩证性对话。在南北向上,这个辩证性体现在传统古建构造与现代建筑形式逻辑的彼此间离。在建构上形成当代建筑的形式逻辑与中国古典建筑柱式的若近若离的关系。
It is neither the static present of a traditional building nor a modern flow space, but to create a deep dialectic dialogue of traditional and modern, eternal and flowing. In north-south direction, this dialectical is reflected in alienation of traditional construction and the forming logic of modern architectural. This relationship is also presented tectonically between forming logic of modern architecture and Beijing classic architecture order.
▼传统古建构造与现代建筑形式逻辑, logic of modern architecture and Beijing classic architecture order © 金伟琦
▼细部,details © 金伟琦
木材的使用来自传统柱式,钢材的使用则受到模数的控制,砖在二者之间充当了充满哲学意味的辩证性对话的媒介。在接近木材时,砖以传统砌筑的方式建造。而在接近钢材时,砖则转变为现代幕墙的方式建造,两种砖的建筑学在建造中彼此相遇,并尽力去除对方的主导性。古典与现代彼此互为环境,并在时间线中“去构形”。
The use of wood comes from the classic architecture order, and the use of steel is controlled by the module. The bricks act as a medium full of dialectical dialogue between the two. When approaching wood, bricks are built in a traditional masonry. When approaching steel, bricks are transformed into modern curtain walls. The two brick architecture meets each other during construction and strives to eliminate the spatial dominance of the other. Classic and modern are each other’s environment and De-configure in the timeline.
▼钢柱与玻璃砖,steel pillar and glass bricks © 金伟琦
▼空间的实与虚,substance and empty of the space © 金伟琦
在东西向上,钢柱所定义的界面空间,从东向西,由透明玻璃砖,磨砂玻璃砖,落地玻璃与空无,四种元素组成。这四种元素与钢,木构与灰砖共同建构了开放与封闭、流动与静止的时空关系。它们在空间中相遇,并在实与虚中“去构形”。
On west-east direction, the interface space defined by the steel column, from east to west, consists of four elements of transparent glass bricks, frosted glass bricks, glass and empty. These four elements and steel, wooden structure and gray bricks together construct the space-time relationship between open and close, flowing and still. They meet in space, and De-configure in substance and empty.
▼钢,木构与灰砖共同建构的空间,space constructed with steel, wooden structure and gray bricks © 金伟琦
一分园
Tenth garden / One-Fen garden
居于正位的居室与恬静的庭园风景是对中国古典园林和生活方式的致敬。一方庭与半分池共同构成了一分园,因面积刚好大约66平米,是一亩地的一分,是以得名一分园。一分园的意义也在于庭园因与建筑的关系被“分”为虚实相异又空间互补的两个部分,东侧在南北两座传统的木结构建筑之间是灰砖铺就的庭院(一方庭),较为封闭和方正,视为实的部分,但由视觉上虚的玻璃砖围合;而西侧被现代平顶建筑和钢结构走廊所包围的水池(半分池),较为开放和自由,形成虚的部分,但由实在的钢柱廊所围合;一方庭与半分池与建筑的出入口、连廊和汀步形成了不同的路径,丰富了作为胡同博物馆的小中见大的多种体验,同时从建筑内任何一个角度望向中心的一分园都是完全不同的景色:玻璃砖墙角一枝梅花,窗外地上随风漂浮的竹影,水面上木结构静静的倒影,屋角露出的枫叶等等。
▼爆炸轴测图,axon © 超城建筑
The living room in the normotopia position and the tranquil garden scenery are a tribute to Chinese classical gardens and lifestyle. One Square-courtyard and half-Tenth pool together constitute Tenth garden. Because the area is about 66 square meters (one Fen) , that is about one tenth of one Mu. Therefore it is named Tenth garden / One-Fen garden. Since Fen also means “divide” in Chinese, The significance of One-Fen garden also lies in the fact that the garden is “divided” into two parts that are different in substance and empty in Chinese context but complementary in space due to the relationship with the architecture. On the east side, between the two traditional wooden-structure houses in the north and south is a courtyard paved with gray bricks ( Square courtyard), which is relatively closed and square, is regarded as a substance part, but is surrounded by visually-empty glass bricks; On the west side, the black-granite paved pool (half-Tenth pool), surrounded by modern flat-roofed buildings and steel structure corridors, is more open and free, forming a relatively empty part, but enclosed by a solid steel colonnade.The square courtyard and the half-Tenth pool form different paths with the entrances of the building, corridors and steps in water, enriching the various experiences of the Hutong Museum, making the small-size space large in sight. Looking out from any position in the houses or the colonnade, you can see the Tenth Garden in the center with completely different scenes: a plum blossom on the corner top of the glass brick wall, the bamboo shadow floating in the wind on the ground outside the window, the quiet reflection of the wooden structure on the water, the maple leaves exposed in the corner of the house……
▼走廊,corridor © 金伟琦
▼室内,interior © 金伟琦
▼空间细部,details in the space © 金伟琦
▼室内空间与水池,interior space and pool © 车飞
▼开放、自由的水池被实在的钢柱廊所围合,open pool surrounded by steel structure corridors © 金伟琦
▼被玻璃砖围护的楼梯间,staircase surrounded by glass bricks wall © 金伟琦
▼区位图,site plan © 超城建筑
▼原有建筑,existed condition © 超城建筑
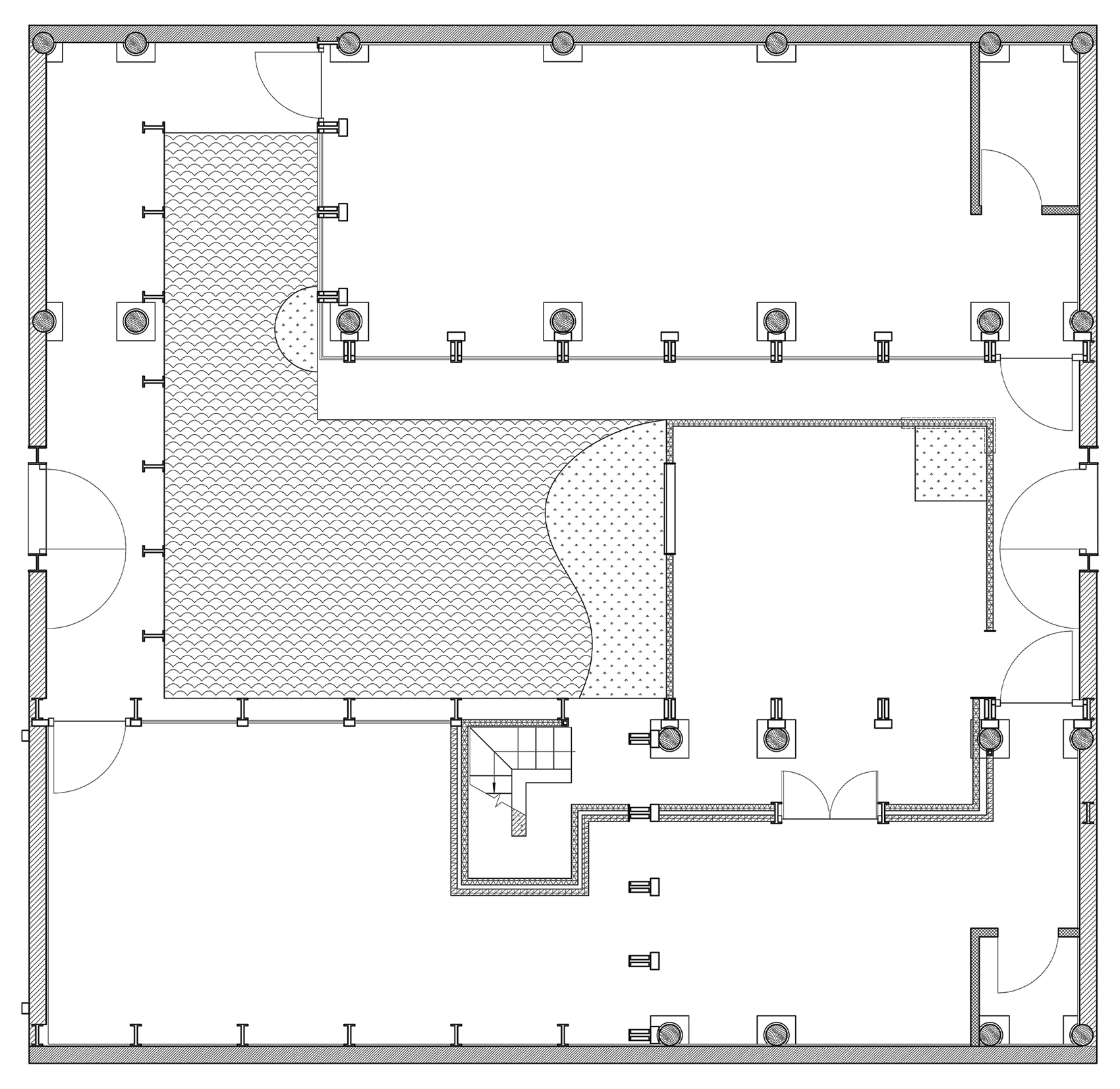
▼平面图,plan © 超城建筑
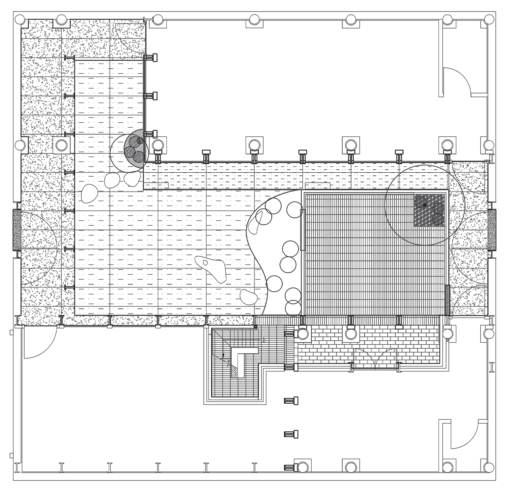
▼带铺装平面图,pavement plan © 超城建筑
▼西立面图,western elevation © 超城建筑
▼东立面图,eastern elevation © 超城建筑
▼剖面图,sections © 超城建筑
项目名称:华严路7号
项目地点:华严路7号,北京市
项目功能:胡同博物馆
设计类型:公共建筑(建筑、室内和景观)
占地面积:216.5平方米
建筑面积:160.5平方米
设计时间:2022年
竣工时间:2023年
项目业主:北京天桥衡融投资有限公司
项目设计:北京超城建筑设计有限公司
主创建筑师:车飞、章雪峰
设计团队:穆高杰(建筑)、揭以彤(建筑)、陈海凤(室内设计)、陈逾(实习生)
机电与给排水:霍金龙、肖文兴、张乔红
结构顾问:李平、万骏
古建施工专家:齐山
建筑摄影:金伟琦、车飞
project name: Tenth garden: Huayan Road No.7
Location: Huayan Road No.7, Beijng, China
Program: Hutong museum
Design Type: Public building (architecture, interior, landscape)
Building area: 160.5M
Site area: 216.5 M2
Design time: 2022
Construction: 2023
Client: Beijing Tianqiao hengrong investment Co., Ltd.
Design office: CU office
Chief architects: Che Fei, Zhang Xuefeng
Design team: Mu Gaojie, Jie yitong, Chen Haifeng, Chen Yu
Mechanical Engineer: Huo Jinglong, Xiao Wenxing, Zhang Qiaohong
Structure engineering Consultant: Li Ping, Wan Jun
Tradition construction: Qi Shan
Photography by : Jin Weiqi, Che Fei
客服
消息
收藏
下载
最近





































