查看完整案例

收藏

下载
这是一栋老化的建筑,部分是钢筋混凝土,部分是木材,已有 50 多年的历史,坐落在曼谷 Lat Phrao 1 巷内一块占地约 200 平方米的不大的土地上。 这座房子长期被忽视,见证了一场悲惨事件——房主父亲的英年早逝,促使一家人搬离。 看到这座废弃的住宅,业主充满了悔恨,他开始执行一项使命,以重振其精神,并为其饱经风霜的框架注入新的生命。
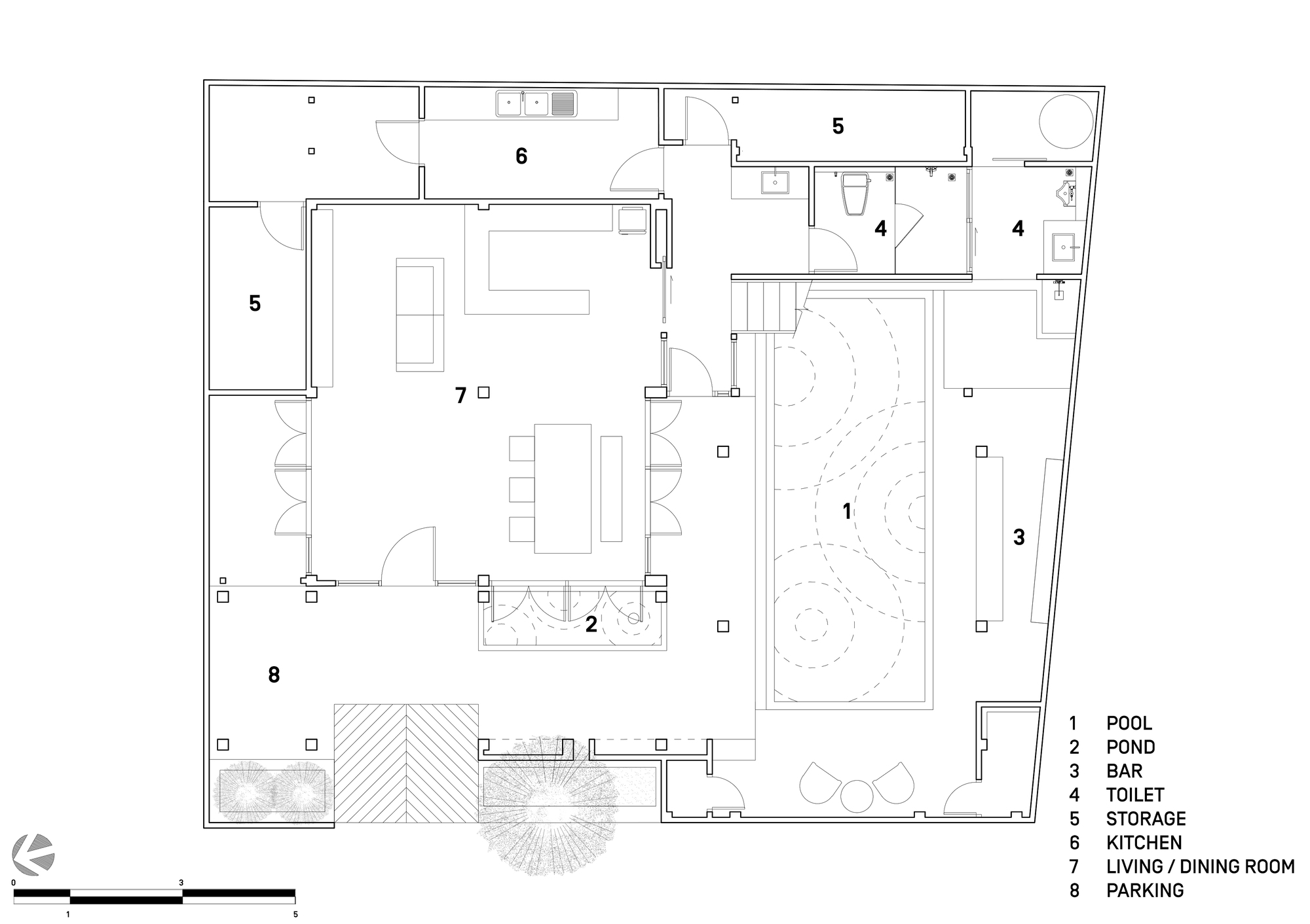
建筑师面临着在预算限制内改造房屋的挑战,因此被敦促进行翻新而不是重建。 我们的愿景是将现代风格融入到建筑中,为业主和他的配偶创造一个现代化的住所,并配有游泳池和用于举办聚会的户外酒吧。 经过检查,人们发现原来的木框架大部分都保存得非常完好,并拥有当今很少见的宽大、耐用的地板。 为了抓住保存这些珍贵元素的机会,我们决定将楼梯移到室外,并将父亲破旧的办公室改造成泳池区。
随着拆除工作的开始,一个启示出现了——由父亲亲自设计的坚固的钢筋混凝土柱和梁,坚韧地矗立着,并装饰着历史的痕迹。 受到这一意外发现的启发,设计逐渐融入了原始结构的元素,游泳池坐落在其优雅的拱门下方。 出于对隐私的考虑,人们竖起了一道保护屏障,即从前办公室的废墟上升起的一组墙。 纤维水泥板墙优雅地折叠成“S”形,同时隐藏和显露,成为焕然一新的住宅的象征性立面。
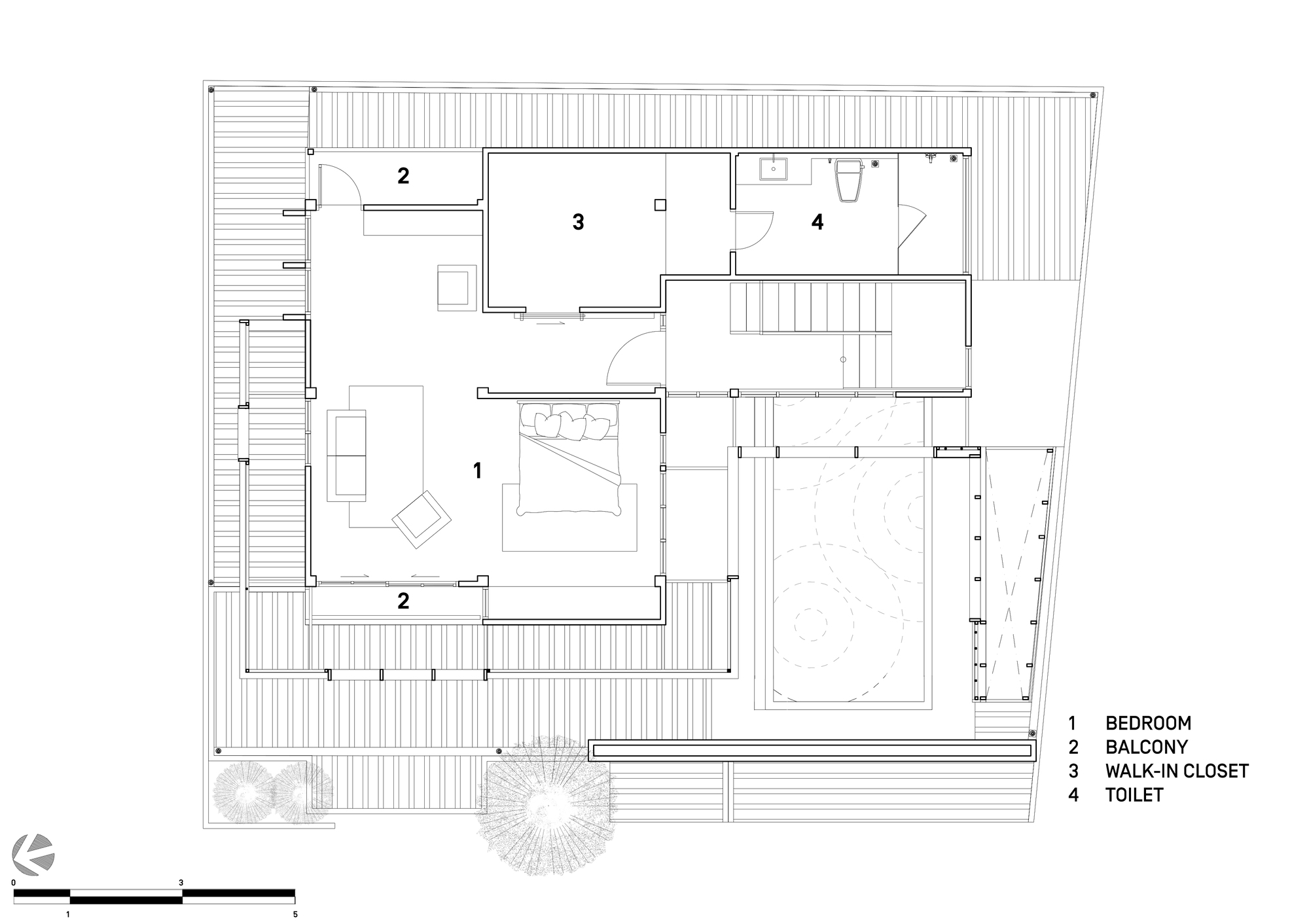
这种蜿蜒的分区划分了空间,同时促进了连通性,体现了新旧的融合。 楼下,昔日的实心砖墙和灰泥墙被一个开放、光线充足的起居区所取代,让人想起泰屯:泰式房屋下方的开放空间,无缝地融合了室内和室外领域。 楼上的主卧室体现了新墙体材料在旧结构上的并置,将传统与现代设计理念相结合。 曾经昏暗狭窄的楼梯经历了显着的转变,演变成连接楼层并弥合内部和外部之间差距的发光纽带。
如今,房主的母亲看着这座房子被建造起来,并从头开始恢复生机。 她可以走进房子,坐在游泳池区(以前是父亲的办公室),看着孙子们游泳。 她微笑着,轻松地讲述过去的故事,过去日子的记忆与新开始的喜悦交织在一起,架起了几代人的桥梁,超越了悲伤。 在这座房子里,记忆与愿望汇聚在一起,打造出一种尊重过去、拥抱未来的叙事——这是坚韧、和解和持久的家的感觉的体现。
项目设计:COLLAGE DESIGN STUDIO
项目面积: 308.2501349m²
项目年份:2024
项目摄影:Witsawarut Kekina
首席建筑师:Cherdsak Soisuwan, Puttichart Wanichtat
Interior Designers:Grande Cons
设计团队: Saichon Junjang, Kanyarat Khanthaworn
Technical Team: Parada Boontip
项目成市: Khet Chatuchak
项目国家: Thailand
设计师:COLLAGE DESIGN STUDIO
语言:英语
客服
消息
收藏
下载
最近






























