查看完整案例

收藏

下载
清华园社区中心坐落于河南省鹤壁市淇滨区清华园社区,社区内常住人口1.2万人,其中老人与儿童占比超过三分之一,是一个人口密集且老幼比例相对较高的居住型社区。
The Qinghuayuan Community Center is located in the Qibin District, Hebi, Henan Province. The densely inhabited residential community has a permanent population of 12,000 people, with elderlies and children comprising a considerable proportion, accounting for over one-third of the community.
▼项目鸟瞰,aerial view © 张超
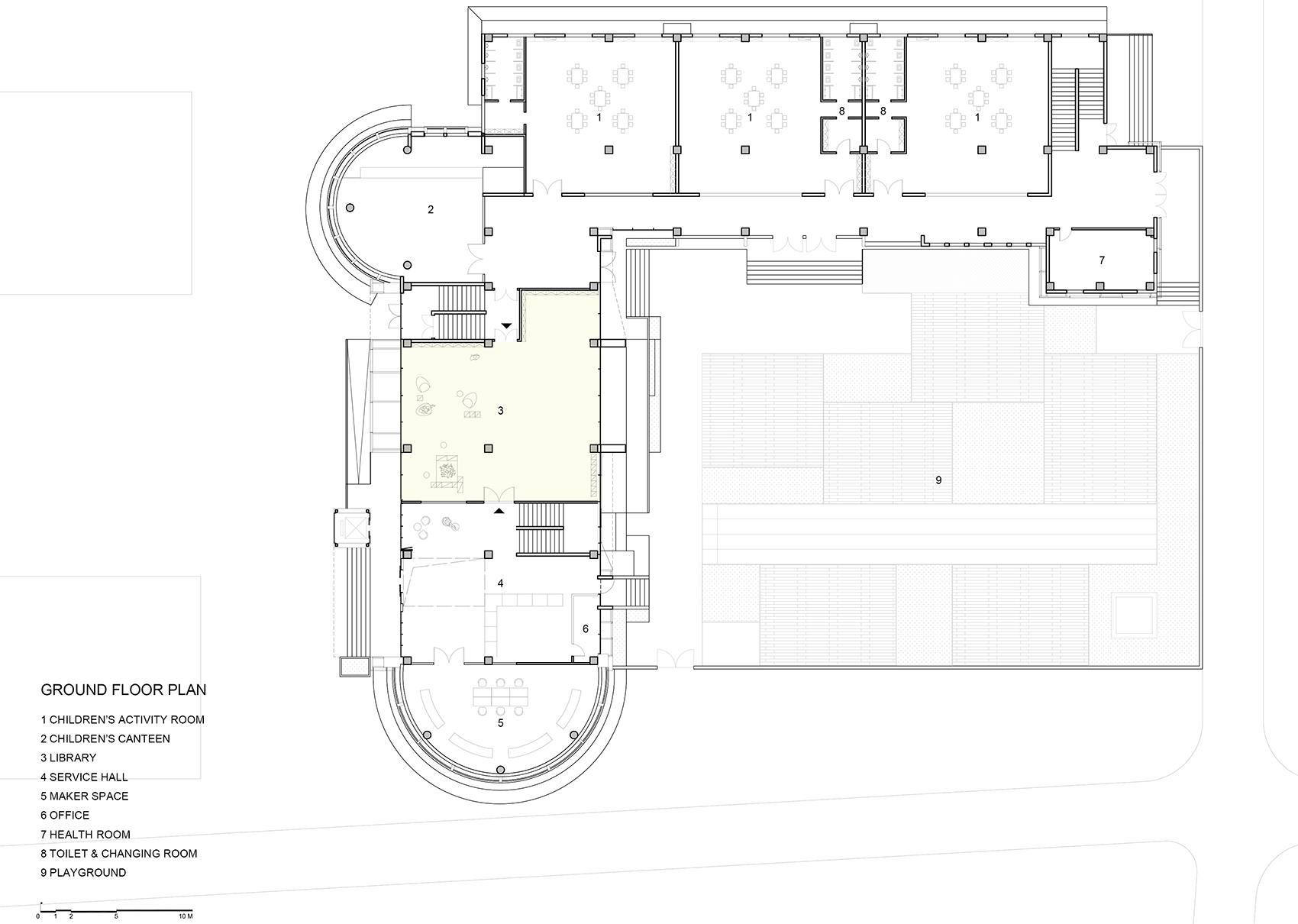
改造之前,原有社区综合服务建筑被切分成社区党群服务中心和幼儿园两个独立管理运营的单体,分别面向社区居民和幼儿开放。如此的空间分割造成了两个部分各自空间功能单一、使用面积不足,但部分功能设置又存在重复的情况——例如图书阅览室、多功能活动室等。同时,社区整体缺少老年人的日托设施,以及供各年龄层的人群互动交往、共同参与社区活动的空间。
借鉴当今前沿的混合型养老托育一体化模式及理念,本次改造设计项目力图将社区综合服务、养老日托服务与幼儿园托育功能相结合,以共享互助的方式重组空间模式,实现全年龄段居民互助互敬、共融共生的生活场景,并创建“15分钟生活圈”的社区功能复合范例。
▼轴测,axon © ATELIER XI
Before the renovation, the building was divided into two separate entities, being the Community Service Center and a kindergarten. The two departments, independently managed and operated, cater to the needs of distinct community demographics: one for residents and the other for children. Drawing on the latest model of integrated elderly care and childcare, this renovation project aims to merge community services, elderly daycare services, and childcare functions. Through spatial reorganization, the goal is to create a living scenario where people of all ages can help and respect each other, fostering inclusivity and coexistence. The project seeks to establish a community model exemplifying functional diversity within the concept of a “15-minute neighborhood.”
▼朝向街区立面,street side facade © 张超
老幼一体、分时共享
Time & Space Sharing Between Elderly and Children
建筑改造设计的重点之一是在内部创造出一个交互区域,将作为居民代际交往核心场所的公共空间(图书馆、多功能厅)架构在幼儿园和社区中心之间,实现空间的灵活管理和运营模式的切换——既可以在不同时段向两侧的使用者单独开放以确保安全,也可以在节庆等特殊时间向所有人群开放,营造老幼联谊、相互照看等共享使用的活动场景。而平时幼儿园放学时如家长没有及时接,也可以到阅览室看书,由社区管理员帮助看护孩子。
幼儿园的操场也可以在放学后及节假日时间向社区中心开放,提供社区居民运动健身的活动场地,实现空间资源的分时共享利用,提高社区室外活动空间的使用效率。
▼功能分布剖面图,section diagram © ATELIER XI
One of the key objectives of the architectural renovation is to create an interactive area within the facility. This area, serving as the central hub for intergenerational interactions among residents (such as the library and multipurpose hall), is strategically situated between the kindergarten and the community center. This setup allows for flexible management and adaptable operational modes. The space can be separately accessed by users on both sides during different time slots to ensure safety measures. It can also be opened to all groups during special occasions like festivals and community gatherings.
Furthermore, if parents are unable to pick up their children promptly during regular kindergarten closing hours, the children are encouraged to spend time reading books in the library, with supervision provided by community administrators.
▼复合利用的操场,multi-used playground © 张超
全龄交互的日常运营
Everyday Operation of All-Age Interaction
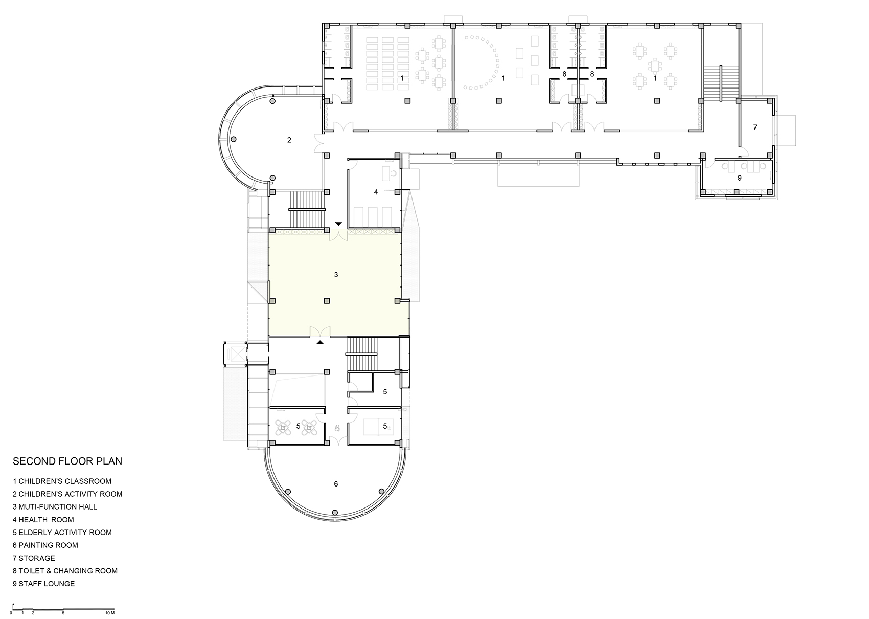
新增设的电梯连通社区中心的每个楼层,方便老幼及行动不便的居民到达位于不同楼层的服务功能。入口大厅则以通高的社区客厅形式,增加不同年龄人群的视觉互动,进而激发社区居民对于彼此分享、互相照看的共同行为意识。
The newly installed elevators connect every floor of the community center, ensuring easy access for elderly, young, and disabled residents to various service functions located on different levels. Additionally, the entrance hall is reconfigured as a double-height space to enhance visual interaction among residents of different ages, thereby cultivating a sense of mutual care and sharing within the community.
▼新增设的电梯,newly installed elevators © 张超
▼建筑入口,entrance porch © 张超
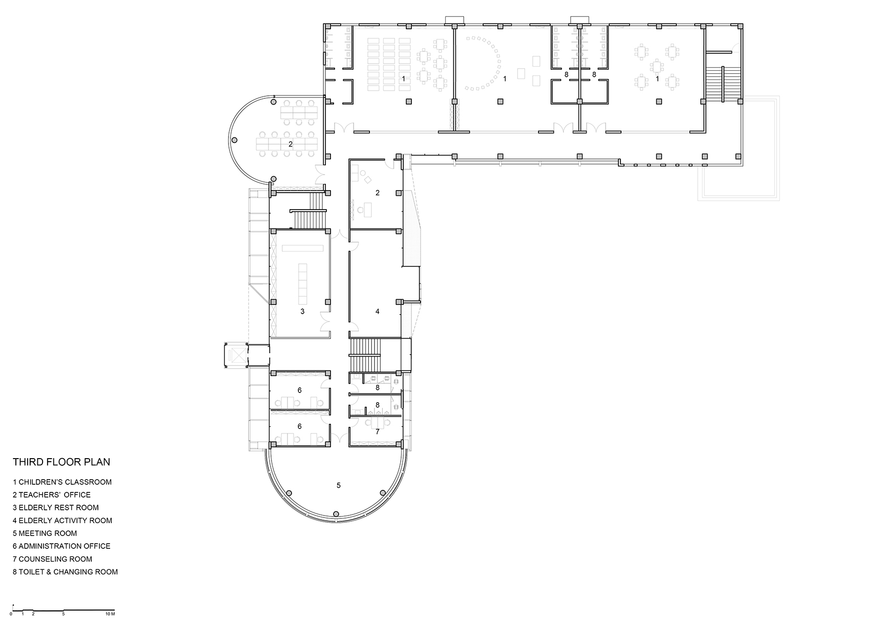
社区与社会力量联合参与到建筑功能的日常运营,在日间照料、儿童活动和卫生健康咨询等领域引进专业化社会团队进行服务。其中面向老年居民群体,引进第三方养老机构,打造社区、机构、居家有机融合的社区养老模式、并设立老年大学教学点、社区食堂、适老化健身室、棋牌室、心理咨询等丰富老人生活。多功能教室更是在周一至周五排满了乐器、舞蹈、合唱、书画、手工等不同团课供居民参加学习。
首层增设青创中心功能,引进青年创业团队参与到儿童教育等创业项目,而社区也将反向提供给青年创业团队政策扶持,帮助青年创业与社区服务的互助成长。
▼各种各样的活动,all kinds of events © 张超
The community and social entrepreneurs collaborate in the daily operation of the building, bringing in social organizations specialized in elderly day care, children’s activities, and health consultation. With a focus on the elderly residents, third-party elderly care services are introduced to establish an integrated community elderly care model with joint effort from community, institutions, and home care. This initiative includes establishing learning centers for elderly education, community canteens, age-friendly fitness rooms, chess rooms, and psychological counseling services to support the daily lives of the elderly population.
The multifunctional classrooms host different group classes, such as instrument lessons, dance, choir, calligraphy, and handicraft sessions from Monday to Friday for residents to engage and learn.
▼入口空间,entrance space © 张超
▼老年活动室,elderly gym © 张超
▼建筑立面,facade © 张超
活泼明亮的绿房子
A Lively and Bright Green Hub
原有建筑立面样式芜杂而冷峻,本次建筑改造设计则选择将社区中心立面以浅绿色金属网板整体包裹、期望未来辅以绿植藤蔓,形成青葱盎然的活力形象。而内部重要公共空间将以木色饰面与白色墙面搭配,体现出轻松温暖的颜色与质感,在夜晚灯光亮起时将社区中心内部空间活力多彩的使用氛围呈现在外立面展示给社区,成为凝聚清华园居民的社区归属感、象征清华园社区互助精神的一座明亮的社区客厅。
The original building facade styles were disparate and austere. In this renovation project, the facade is enveloped entirely in light green metal mesh panels, with the hope of cultivating greenery vines in the future, creating a vibrant and lively imagery of the neighborhood. Meanwhile, the interior public spaces are furnished with wooden finishes and white walls, embodying a relaxed and warm color palette and texture. When illuminated at night, the community center’s interior spaces and dynamic atmosphere will be showcased on the facade, serving as a bright community lounge that symbolizes the sense of belonging and mutual assistance spirit of the Qinghuayuan community.
▼浅绿色金属网板整体包裹,
light green metal mesh panels envelope © 张超
▼夜景, night view © 张超
▼首层平面图,first floor plan © ATELIER XI
▼二层平面图,second floor plan © ATELIER XI
▼三层平面图,third floor plan © ATELIER XI
▼立面图,elevations © ATELIER XI
项目名称:鹤壁市淇滨区清华园老幼一体社区中心改造设计
建成时间:2023.3
改造面积:2000平米
项目地址:河南省鹤壁市
项目委托方:河南省鹤壁市淇滨区泰山街道清华园社区
主创建筑师:陈曦
设计团队:黄圳锋、叶方南、吴晖阳、翁策楷、朱静、林子雅
养老服务设计顾问:同济大学司马蕾副教授
施工团队:鹏森建设
Project Name: The Qinghuayuan Intergenerational Community Center Renovation
Completion Year: 2023.3
Renovation Area: 2000 m2
Project location: Hebi, Henan Province, China
Clients: Qinghuayuan Community
Lead Architect: Chen Xi
Design Team: Huang Zhenfeng, Ye Fangnan, Wu Huiyang, Weng Cekai, Zhu Jing, Lin Ziya
Elderly Care Service Design Consultant: Lei Sima, Associate Professor, Tongji University
Construction Company: Pengsen Construction
客服
消息
收藏
下载
最近





















