查看完整案例

收藏

下载

翻译
Architects:Cristián Romero Valente
Area:8611ft²
Year:2023
Photographs:Juan Pablo Calderón
Manufacturers:GRAPHISOFT,Akitec,CLC Maderas,Coggiola Mármoles,European Windows,Reforma Estudio,Sien Kitchens,Topwood
Lightning:During Iluminación
Builder:C1
City:Chicureo
Country:Chile
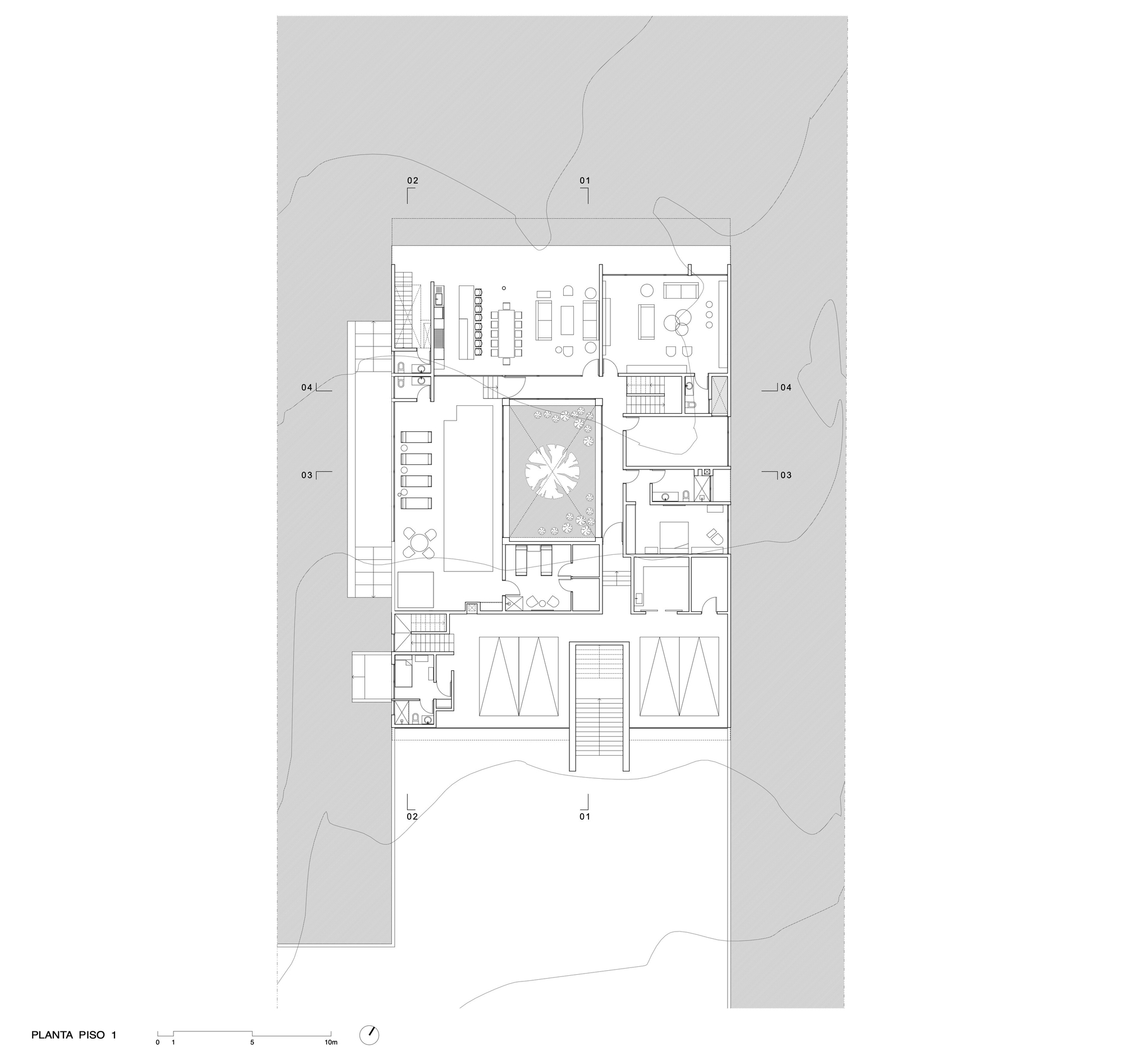
Text description provided by the architects. The MC House is nestled on a gentle slope within the Chicureo Estate, Santiago, Chile, seamlessly blending with its natural surroundings. Its main access, an ascending staircase, leads to the second floor, where one can enjoy a panoramic view towards the northeast.
The facade facing the street presents itself as a solid wall, protecting the residents' privacy, while the facade overlooking the gardens opens generously, establishing a seamless connection between the indoor and outdoor spaces.
At its core lies a double-height central courtyard, acting as a focal point and unifier of the different spaces. The first floor boasts an indoor pool, garden-views terraces, a spa, living areas, and parking.
The design of the first floor focuses on transparency and fluidity, allowing a clear view between the various environments and the central courtyard from any point in the house. This layout promotes a sense of openness and spaciousness, creating a welcoming atmosphere.
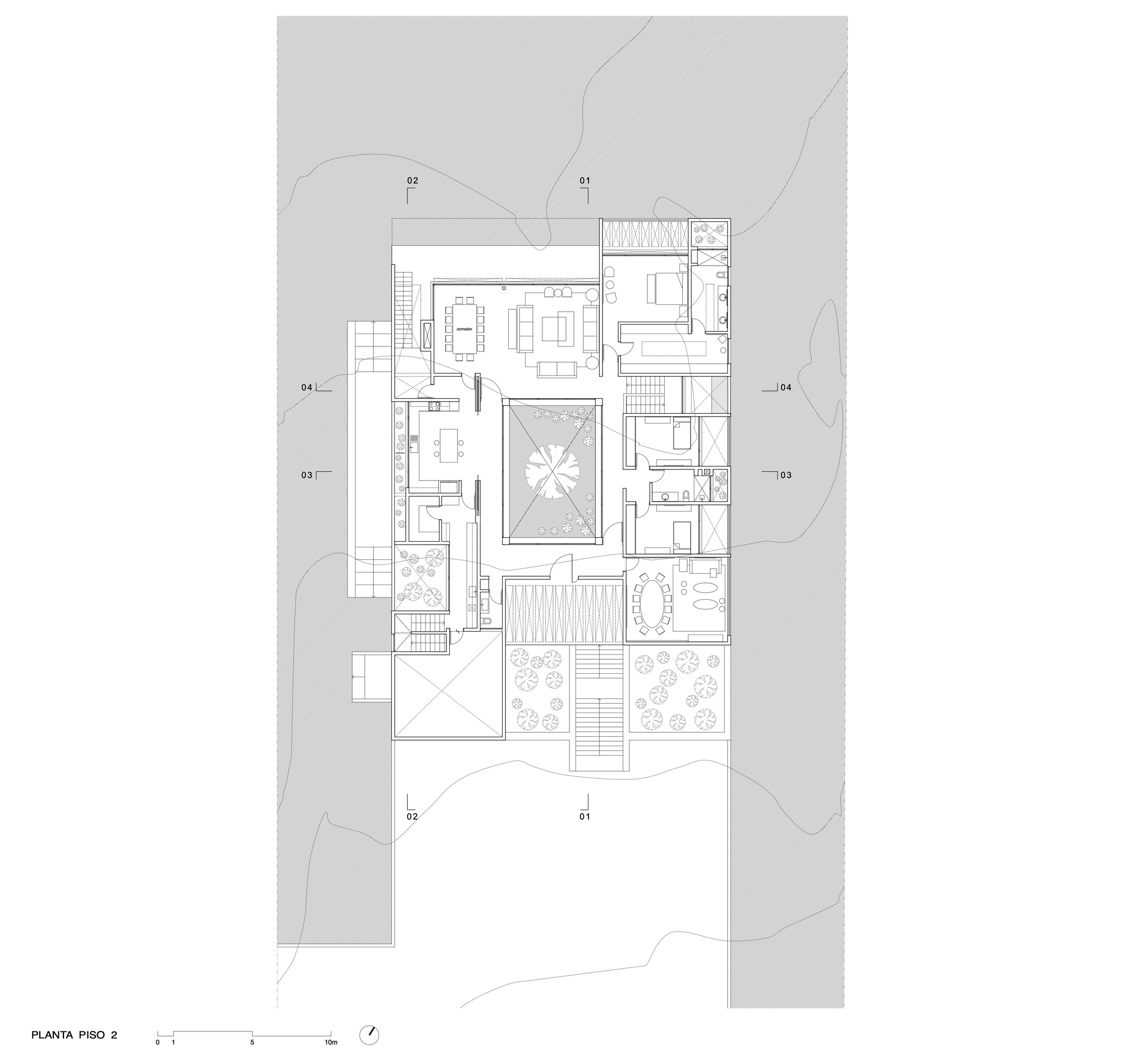
On the second floor, the most private area of the house is found, offering spacious bedrooms, a modern kitchen, and a comfortable dining area, all connected to the central courtyard.
Incorporating features such as indirect skylights, natural lighting, and eaves for shade, the house ensures a comfortable interior environment.
Regarding materials, the house was built using a combination of elements that provide solidity, warmth, and durability. The main material used is reinforced concrete, offering a solid and resistant foundation for the house, guaranteeing its stability over time. Concrete walls not only provide protection and privacy to the residents but also act as design elements.
On the other hand, the wood used in both ceilings and some interior cladding adds warmth to the spaces and a cozy environment, while the light penetrating through the central courtyard creates a changing and dynamic atmosphere that transforms the house throughout the day and night, offering a timeless design that promotes openness and tranquility.
Project gallery
客服
消息
收藏
下载
最近






























