查看完整案例

收藏

下载
项目名称:无锡中电海康物联网产业基地
位置:无锡
设计公司:中国联合工程有限公司
中电海康无锡物联网产业基地(以下简称无锡基地)由中电海康集团与无锡市政府合作打造,是中电海康的第二总部基地。无锡基地充分依托海康集团资源和优势,结合无锡工业积淀和产业基础,聚焦智能物联网领域,瞄准“3+30”战略目标,围绕 “小微特机器人”主业,聚集芯片、整机(模组)、数字化应用三个方向生态企业,形成智能物联网产业集群,建成无锡慧海湾小微特机器人技术、产业和人才高地。项目采用统一规划、三期建设的模式,项目总规划用地面积约272亩,设计规划建筑面积约35.6万平方米,包含总部办公、研发办公、科创试验、辅助配套四大核心功能。整体规划设计及一期实施由中国联合工程有限公司团队负责,以设计牵头的EPC总承包实施机制为设计的完成度提供了坚实的保障。目前一期已投入使用,完善的配套设施为未来二、三期使用打下良好的空间基础。
如何打造一个适应新型办公、科研需求;吸引人才聚集,为科学家提供优质办公环境,促进生产、生活、生态“三生”融合的产业园区成为本次设计的核心。园区整体采用中轴对称、分区组团的布局策略,打造“一轴一心三环四区”的清晰框架,形成外紧内松、南低北高的园区格局,既为中电海康实现多技术、多产品、多企业、多品牌整合提供空间支持,又为科学家提供了优质的办公、研发、休闲环境,吸引人才聚集。其中,由南至北的入口广场、活力绿坪、创新平台、核心湖景及总部办公共同构成一条蓝绿相间的“智慧轴”。核心蝶型湖景由东向西串联餐饮中心、创新平台和接待中心,构成集景观休闲、餐饮体育、研发实验为一体的“生态心”。围绕核心湖景的休闲漫步环、串联总部办公及东西两区的无风雨高效环及基地外围的快速车行环为园区构建多层级、高效能交通系统。
园区北侧汇集海康内部产业链的总部办公区、东西侧服务产业上下游相关企业的研发办公区及南侧服务科学家研发办公的创新试验区四区共同助力“3+30”战略目标的顺利落位。已建成一期包含总部办公区、核心景观区及创新试验区三区。总部办公区由一主两辅三栋办公楼组成,集合办公、会议、展览、餐饮等多种使用场景,打造使用功能闭环。东西辅楼的核心筒结合门分别设置于办公楼东西两侧,增强结构稳定性的同时,为未来推动产业链上中下游融通创新提供无限可能。立面采用折板模块组合,在造就丰富立面阴影关系的同时,蓝灰色玻璃在错动转折中波光粼粼,传递出海洋的动感与韵律,彰显中电海康“海纳百川”的企业精神。
位于入口两侧的创新试验区以为科学家打造温馨家园为宗旨,采用小尺度、模块化的开发模式,充分适应小型团队企业办公需求。创新试验区以轴线为分界各自成团,组团内部分别设置休闲广场,广场步道串联核心景观区,为科学家创造私密与开放兼顾的生态家园。建筑单体分别通过结合庭院设置架空层,面朝核心湖景设置观景阳台,为员工提供全方位的生态休闲空间。园区结合核心湖景、餐饮中心、接待中心及创新平台打造近4万平米的生态休闲公园,为园区创造优越的自然景观条件的同时也为办公人员提供了与自然交互的舒适场所。景观湖采用起伏错落的坡地水岸线,结合拱桥、码头、凉亭等景观小品,打造层次丰富、自然有机的生态驳岸,丰富员工的景观休闲感受与体验。
位于核心湖景南侧的创新平台为千级净化实验室。穿孔铝板与石材的实虚对比构建出双L型”智慧之门“的意象,沿湖侧三个放射型体块则与景观构建有机对话。景观湖东西两侧则对称布置餐饮中心与接待中心,供用餐休闲、体育运动使用。建筑体量化整为零,与湖景融为一体。传统双坡屋顶的变形演绎让无锡园林的质朴清雅与园区的现代时尚巧妙融合。游廊与格栅的加持更为人们从园区到湖边增添丰富趣味与细腻过度。为打破传统产业园区封闭封闭自建的常态,产业基地化解水位高差、连通太湖打造核心景观湖,从底色实现园区——城市——自然景观三者的高度融合,实现与城市的共生共栖。
随着城市化进程的不断推进和城市用地的功能置换,未来的产业园区将不能仅仅满足于生产办公的基本需求,而更需要以开放的姿态,面对产业生态升级、公共空间开放和日常生活多样的新需求。中电海康无锡物联网产业基地凭借打造多层级的办公配套模式、优质生态场域以及与城市紧密相良的共栖岛屿的打造,探索了面向城市未来发展方向的新型产业办公模式。在满足人们活力工作、生活、交流需求的同时,成为与城市多元联结的有机触媒,推进产学研深度融合,为海康构建全国数字经济创新发展新高地,打造无锡物联网创新促进中心贡献力量!
无锡中电海康物联网产业基地外部实景图
无锡中电海康物联网产业基地外部实景图
无锡中电海康物联网产业基地外部实景图
无锡中电海康物联网产业基地外部实景图
无锡中电海康物联网产业基地外部实景图
无锡中电海康物联网产业基地外部实景图
无锡中电海康物联网产业基地外部实景图
无锡中电海康物联网产业基地外部实景图
无锡中电海康物联网产业基地外部实景图
无锡中电海康物联网产业基地外部实景图
无锡中电海康物联网产业基地外部实景图
无锡中电海康物联网产业基地外部实景图
无锡中电海康物联网产业基地外部实景图
无锡中电海康物联网产业基地外部实景图
无锡中电海康物联网产业基地外部实景图
无锡中电海康物联网产业基地外部实景图
无锡中电海康物联网产业基地外部实景图
无锡中电海康物联网产业基地外部实景图
无锡中电海康物联网产业基地内部实景图
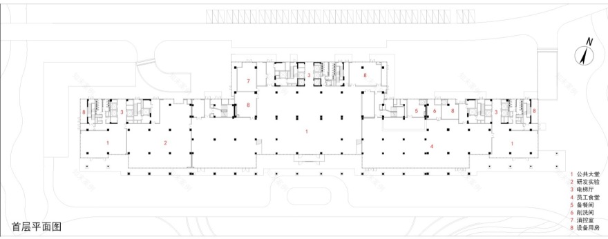
无锡中电海康物联网产业基地平面图
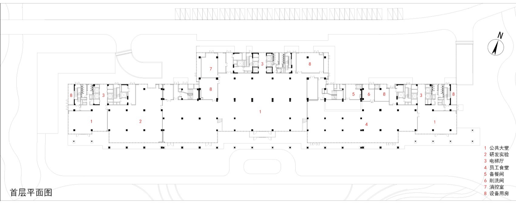
无锡中电海康物联网产业基地平面图
无锡中电海康物联网产业基地平面图
无锡中电海康物联网产业基地立面和剖面图
客服
消息
收藏
下载
最近


























