查看完整案例

收藏

下载
✦
吾索
给您创造永久的幸福
✦
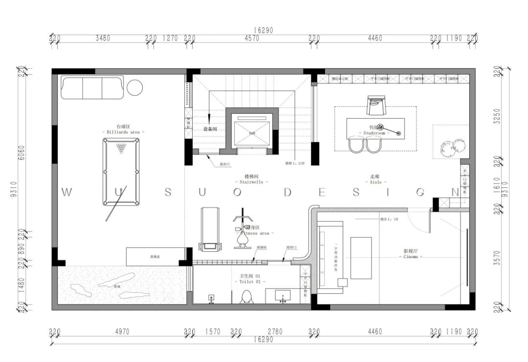
负一楼改造后平面布局
项目类型:双拼别墅
项目地址:龙岗一品
项目面积:500㎡
设计机构:吾索设计
设计团队:张恒团队
设计风格:现代
本案为500㎡的双拼别墅设计,风格定义为现代。本篇主要介绍负一楼的娱乐空间,设计师将整个空间动静分离,负一楼只做动区规划,具体分为了台球室、健身房、书房以及音影室,整个空间给人自然,静谧的空间氛围,也结合了庭院的意境表达使得空间丰富而纯粹。
负一楼台球室
健身与斯诺克之间转换游移,随人迹娱乐,空间尚高雅;兴起时,此刻尽欢娱。
悬浮书桌设置在天井的下方,无论是学习办公或是作为饮茶区使用,自然采光都让居住者身心愉悦。
负一楼健身房
屋主的健身区域设置在电梯入口处,在健身区域与客卫处用玻璃砖作为隔断,增加了空间的通透感;健身瑜伽配置藏纳高阶生活的健康要义,亦是对居住者身心的礼遇。
书房
书房是半开放式状态,通过软膜天花来增加整个空间的亮度,用绿植点缀,将采光井的光线引入室内;悬浮书柜连接岩板,让整体氛围更加轻盈通透。
影视厅
影视厅整个为封闭空间,充满科技感的灯带辅助和激光屏幕带来更佳的观影感受,功能性沙发和按摩椅给人在观影的同时身心得到最大的放松和极致的享受。
客卫
客卫做了简单的三分离使用,墙地一色的瓷砖,让整个空间更具整体性,同时浅色的哑光砖显得空间更加温润。
设计图纸
负一楼改造后平面布局
客服
消息
收藏
下载
最近














